8.2
Смотреть все фото
БЕЗ КОМИССИИ ID: 1296509 Рейтинг9.1 КлассА
Бизнес-центр «Большевик»

Аренда офиса 2014 м²

Москва, Ленинградский проспект, 15 с3

Белорусская → 776 м
~ 8 мин
Арендная плата в месяц 9 910 200 ₽ 59 000 ₽/м² в год С учётом НДС

Презентация по предложению

Собираете информацию? Получите подробную презентацию в удобном формате!

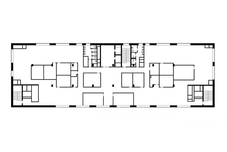
Площадь 2 014 м²
Состояние Готово к въезду
Планировка Смешанная
Этаж 1 - 2

Описание

Преимущества
  • Класс А
  • Пешком от метро
  • Кондиционирование и вентиляция
  • Свой паркинг
Сдаем в долгосрочную прямую аренду помещение под офис класса А общей площадью 2014 квадратных метров в недавно отреконструированном бизнес-центре "Большевик".

Москва, САО, Ленинградский проспект, 15 с3

Удобная локация здания:
- Автомобиль: близость транспортных магистралей, таких как Ленинградский проспект, Третье Транспортное Кольцо и других.
- Возможность аренды парковочных мест.
- Ближайшее метро: от метро "Белорусская" всего 8 мин пешком

Офис класса А:
- Помещение готово к въезду
- Вентиляция: Приточно-вытяжная вентиляция
- Кондиционирование: центральное
- Презентабельный центральный ресепшн
- Круглосуточная охрана и видеонаблюдение

Возможность заключения контракта в соответствии с 44ФЗ по госзакупкам.

Если предложение предварительно Вам подходит:

1. Мы подготовили презентацию с информацией о помещении, фотографиями и планировкой, чтобы Вы могли поделиться ей с коллегами или руководством. Попросите об этом нашего менеджера по телефону в объявлении.
2. Задайте любые вопросы менеджеру по телефону, готовы обсуждать любые предложения по финансовым условиям договора аренды.
3. Покажем помещение в удобное для Вас время с менеджером в здании, при необходимости подготовим виртуальный тур.

Звоните нам в любое время. По будням мы сможем ответить на Ваши вопросы до 19:00. В выходные или вечернее время мы передадим Ваш контакт нашему менеджеру по аренде.

Коммерческие условия

Арендная плата 9 009 290 ₽
Ставка арендной платы 59 000 ₽ м²/год
Эксплуатационные расходы Включены в ставку
Налоги С учётом НДС
Тип договора Прямая аренда
Срок договора Долгосрочный
Размер платежей 3 месяц
Обеспечительный платеж 3 месяц
Статус Сдан

О бизнес-центре

Класс А
Этажность 6
Лифты Есть
Общая площадь 86 000 м²
Паркинг Подземный
Вентиляция приточно-вытяжная
Кондиционирование центральное
Телекоммуникации Интернет/Телефония

Расположение

Подробная презентацию по предложению

Собираете информацию? Получите подробную презентацию в удобном формате, чтобы обсудить вариант с коллегами или переслать руководству!

Похожие предложения в других зданиях

БЕЗ КОМИССИИ ID: 203984 Рейтинг8.7 КлассА

Москва, Ленинградский проспект, 31А

Динамо → 818 м
~ 8 мин
Арендная плата в месяц 11 077 500 ₽ 63 300 ₽/м² в год С учётом НДС
Характеристики 2 100 м² 1 - 3 этаж Отделка под арендатора
Преимущества
  • Класс А
  • Пешком от метро
  • Кондиционирование и вентиляция
  • Свой паркинг
  • Развитая инфраструктура

Предлагаем в долгосрочную прямую аренду офисный блок класса А общей площадью 2100 кв. метров в бизнес-центре "Монарх"... подробнее

Презентация по предложению

Собираете информацию? Получите подробную презентацию в удобном формате!

БЕЗ КОМИССИИ ID: 124641 Рейтинг8.7 КлассА

Москва, Ленинградский проспект, 31А

Динамо → 818 м
~ 8 мин
Арендная плата в месяц 10 550 000 ₽ 63 300 ₽/м² в год С учётом НДС
Характеристики 2 000 м² 34 этаж Готово к въезду
Преимущества
  • Класс А
  • Пешком от метро
  • Кондиционирование и вентиляция
  • Свой паркинг
  • Развитая инфраструктура

Предлагаем в долгосрочную прямую аренду помещение под офис класса А площадью 2000 кв.м в бизнес-центре "Монарх"... подробнее

Презентация по предложению

Собираете информацию? Получите подробную презентацию в удобном формате!

БЕЗ КОМИССИИ ID: 1374629 Рейтинг7.8 КлассB+

Москва, Лесная улица, 43

Белорусская → 559 м
~ 6 мин
Арендная плата в месяц 9 158 307 ₽ 62 400 ₽/м² в год С учётом НДС
Характеристики 1 760 м² 4 - 6 этаж Готово к въезду
Преимущества
  • Класс B+
  • Пешком от метро
  • Кондиционирование и вентиляция
  • Свой паркинг
  • Несколько провайдеров связи
  • Развитая инфраструктура

Сдается в долгосрочную прямую аренду офис класса B+ площадью 1760 кв. метров в историческом недавно отреконструированном бизнес-центре... подробнее

Презентация по предложению

Собираете информацию? Получите подробную презентацию в удобном формате!

ВОЗМОЖНО ОСВОБОЖДЕНИЕ ID: 1222501 Рейтинг9.3 КлассА

Москва, 1-я Тверская-Ямская улица, 21

Белорусская → 332 м
~ 4 мин
Арендная плата в месяц 11 659 235 ₽ 67 900 ₽/м² в год С учётом НДС
Характеристики 2 062 м² 6 - 7 этаж Готово к въезду
Преимущества
  • Класс А
  • Пешком от метро
  • Кондиционирование и вентиляция
  • Свой паркинг
  • Несколько провайдеров связи
  • Развитая инфраструктура

Собственник сдает в долгосрочную аренду офисное помещение класса А общей площадью 2062 кв. метров в бизнес-центре "Четыре Ветра"... подробнее

Презентация по предложению

Собираете информацию? Получите подробную презентацию в удобном формате!

БЕЗ КОМИССИИ ID: 1280910 Рейтинг9.3 КлассА

Москва, 1-я Тверская-Ямская улица, 21

Белорусская → 332 м
~ 4 мин
Арендная плата в месяц 10 054 264 ₽ 64 400 ₽/м² в год С учётом НДС
Характеристики 1 873 м² 5 - 7 этаж Готово к въезду
Преимущества
  • Класс А
  • Пешком от метро
  • Кондиционирование и вентиляция
  • Свой паркинг
  • Несколько провайдеров связи
  • Развитая инфраструктура

Собственник сдает в прямую аренду офисный блок класса А общей площадью 1873 кв. метров в бизнес-центре "Четыре Ветра"... подробнее

Презентация по предложению

Собираете информацию? Получите подробную презентацию в удобном формате!

Посмотреть все похожие предложения
Отнеситесь рационально к процессу поиска нового офиса!

Просто ответьте на 3 вопроса, и наши специалисты сами предложат оптимальные варианты под ваш бюджет

.