8.2
Смотреть все фото
БЕЗ КОМИССИИ ID: 1297935 Рейтинг9.1 КлассА
Бизнес-центр «Большевик»

Аренда офиса 434 м²

Москва, Ленинградский проспект, 15 с3

Белорусская → 776 м
~ 8 мин
Арендная плата в месяц 2 131 200 ₽ 58 900 ₽/м² в год С учётом НДС

Презентация по предложению

Собираете информацию? Получите подробную презентацию в удобном формате!

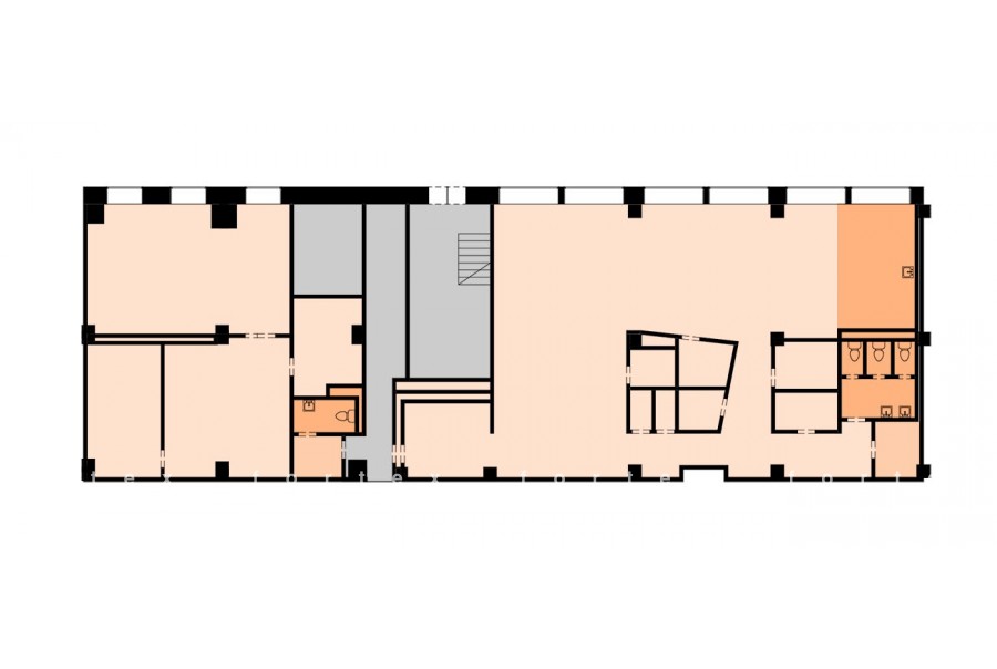
Площадь 434 м²
Состояние Готово к въезду
Планировка Смешанная
Этаж 1

Описание

Преимущества
  • Класс А
  • Пешком от метро
  • Кондиционирование и вентиляция
  • Свой паркинг
Предлагается в долгосрочную прямую аренду офисный блок класса А общей площадью 434 квадр. метров в недавно отреконструированном бизнес-центре "Большевик".

Москва, САО, Ленинградский проспект, 15 с3

Удобная локация здания:
- Автомобиль: близость транспортных магистралей, таких как Ленинградский проспект, Третье Транспортное Кольцо и других.
- Возможность аренды парковочных мест.
- Ближайшее метро: от метро "Белорусская" всего 8 мин пешком

Офис класса А:
- Помещение с отделкой, готово к въезду
- Вентиляция: Приточно-вытяжная вентиляция
- Кондиционирование: центральное
- Презентабельный центральный ресепшн
- Круглосуточная охрана и видеонаблюдение

Возможность заключения контракта в соответствии с 44ФЗ по госзакупкам.

Если предложение предварительно Вам подходит:

1. Мы отправим Вам подробную презентацию с планировкой и фотографиями в течение 10 минут после звонка, чтобы Вы могли поделиться информацией с руководством или с коллегами.
2. Задайте любые вопросы менеджеру по телефону, готовы обсуждать любые предложения по финансовым условиям договора аренды.
3. Проводим показы ежедневно, договоримся на удобное для Вас время. Можем организовать виртуальный тур по офисному блоку.

Вы можете позвонить нам в любое время. Мы ответим на Ваши вопросы по будням до 19:00, а поздно вечером или в выходные зафиксируем Ваш контакт и перезвоним в рабочее время.

Коммерческие условия

Арендная плата 2 029 670 ₽
Ставка арендной платы 58 900 ₽ м²/год
Эксплуатационные расходы Включены в ставку
Налоги С учётом НДС
Тип договора Прямая аренда
Срок договора Долгосрочный
Размер платежей 3 месяц
Обеспечительный платеж 3 месяц
Статус Сдан

О бизнес-центре

Класс А
Этажность 6
Лифты Есть
Общая площадь 86 000 м²
Паркинг Подземный
Вентиляция приточно-вытяжная
Кондиционирование центральное
Телекоммуникации Интернет/Телефония

Расположение

Подробная презентацию по предложению

Собираете информацию? Получите подробную презентацию в удобном формате, чтобы обсудить вариант с коллегами или переслать руководству!

Похожие предложения в других зданиях

БЕЗ КОМИССИИ ID: 1314472 Рейтинг7.5 КлассB

Москва, 1-я Тверская-Ямская улица, 27

Белорусская → 273 м
~ 3 мин
Арендная плата в месяц 2 399 979 ₽ 58 800 ₽/м² в год С учётом НДС
Характеристики 490 м² 2 - 3 этаж Готово к въезду
Преимущества
  • Класс B
  • Пешком от метро
  • Кондиционирование и вентиляция
  • Свой паркинг
  • Развитая инфраструктура

Предлагается в прямую аренду офис класса B площадью 490 кв.м в бизнес-центре... подробнее

Презентация по предложению

Собираете информацию? Получите подробную презентацию в удобном формате!

БЕЗ КОМИССИИ ID: 1377597 Рейтинг7.8 КлассB+

Москва, Лесная улица, 43

Белорусская → 559 м
~ 6 мин
Арендная плата в месяц 2 166 667 ₽ 65 000 ₽/м² в год С учётом НДС
Характеристики 400 м² 6 этаж Готово к въезду
Преимущества
  • Класс B+
  • Пешком от метро
  • Кондиционирование и вентиляция
  • Свой паркинг
  • Несколько провайдеров связи
  • Развитая инфраструктура

Предлагается в прямую аренду офисное помещение класса B+ площадью 400 квадр. метров в историческом недавно отреконструированном бизнес-центре... подробнее

Презентация по предложению

Собираете информацию? Получите подробную презентацию в удобном формате!

БЕЗ КОМИССИИ ID: 1375615 Рейтинг9.3 КлассА

Москва, 1-я Тверская-Ямская улица, 21

Белорусская → 332 м
~ 4 мин
Арендная плата в месяц 3 217 445 ₽ 93 900 ₽/м² в год С учётом НДС
Характеристики 411 м² 5 этаж Готово к въезду
Преимущества
  • Класс А
  • Пешком от метро
  • Кондиционирование и вентиляция
  • Свой паркинг
  • Несколько провайдеров связи
  • Развитая инфраструктура

Предлагаем в прямую аренду помещение под офис класса А общей площадью 411 квадр. метров в бизнес-центре "Четыре Ветра"... подробнее

Презентация по предложению

Собираете информацию? Получите подробную презентацию в удобном формате!

БЕЗ КОМИССИИ ID: 869422 Рейтинг8.5 КлассА

Москва, 4-я Тверская-Ямская улица, 14 с1

Маяковская → 359 м
~ 4 мин
Арендная плата в месяц 2 044 500 ₽ 56 400 ₽/м² в год С учётом НДС
Характеристики 435 м² 3 этаж Готово к въезду
Преимущества
  • Класс А
  • Пешком от метро
  • Кондиционирование и вентиляция
  • Свой паркинг

Сдается в долгосрочную аренду офис класса А общей площадью 435 кв.м в бизнес-центре... подробнее

Презентация по предложению

Собираете информацию? Получите подробную презентацию в удобном формате!

БЕЗ КОМИССИИ ID: 280893 Рейтинг7.3 КлассB

Москва, 1-я Тверская-Ямская улица, 6

Маяковская → 69 м
~ 1 мин
Арендная плата в месяц 2 056 667 ₽ 61 700 ₽/м² в год С учётом НДС
Характеристики 400 м² этаж Готово к въезду
Преимущества
  • Класс B
  • Пешком от метро
  • Кондиционирование и вентиляция
  • Несколько провайдеров связи
  • Развитая инфраструктура

Сдается в долгосрочную прямую аренду офис класса B общей площадью 400 квадратных метров в историческом бизнес-центре... подробнее

Презентация по предложению

Собираете информацию? Получите подробную презентацию в удобном формате!

Посмотреть все похожие предложения
Отнеситесь рационально к процессу поиска нового офиса!

Просто ответьте на 3 вопроса, и наши специалисты сами предложат оптимальные варианты под ваш бюджет

.