8.2

Виртуальный тур

Смотреть все фото
БЕЗ КОМИССИИ ID: 481592 Рейтинг8.3 КлассB+

Москва, Большой Палашёвский переулок, 15 с1

Чеховская → 632 м
~ 6 мин
Арендная плата в месяц 725 000 ₽ 29 000 ₽/м² в год С учётом НДС

Презентация по предложению

Собираете информацию? Получите подробную презентацию в удобном формате!

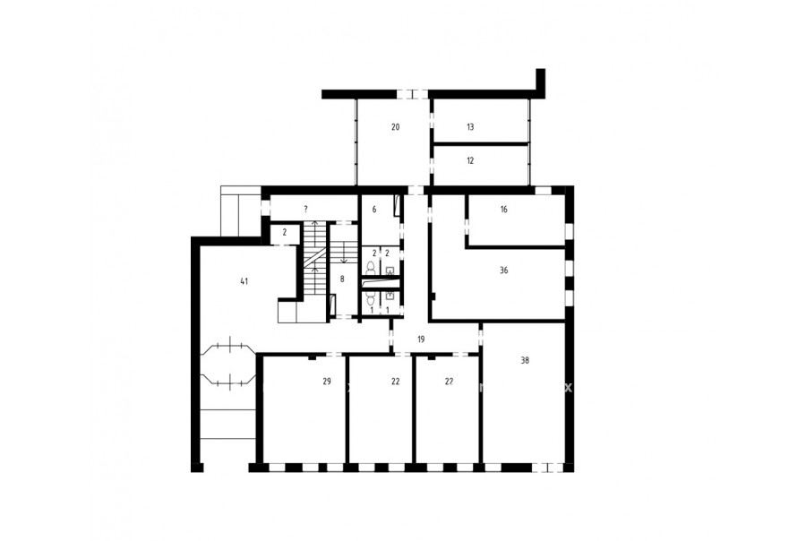
Площадь 300 м²
Состояние Готово к въезду
Планировка Смешанная
Этаж 1

Описание

Преимущества
  • Класс B+
  • Пешком от метро
  • Кондиционирование и вентиляция
Предлагается в долгосрочную аренду офисное помещение класса B+ площадью 300 квадр. метров в бизнес-центре.

Москва, ЦАО, Большой Палашёвский переулок, 15 с1

Удобное расположение в пределах Садового кольца:
- Ближайшее метро: от метро "Чеховская" всего 8 мин пешком

Офис класса B+:
- Помещение с отделкой, готово к въезду
- Вентиляция: Приточно-вытяжная вентиляция
- Кондиционирование: центральное


Если данное предложение подходит Вашему запросу:

1. Мы подготовили презентацию с информацией о помещении, фотографиями и планировкой, чтобы Вы могли поделиться ей с коллегами или руководством. Попросите об этом нашего менеджера по телефону в объявлении.
2. Задайте любые вопросы менеджеру по телефону, готовы обсуждать любые предложения по финансовым условиям договора аренды.
3.

Вы можете позвонить нам в любое время. Мы ответим на Ваши вопросы по будням до 19:00, а поздно вечером или в выходные сможем передать Ваш контакт нашему менеджеру.

Коммерческие условия

Арендная плата 725 000 ₽
Ставка арендной платы 29 000 ₽ м²/год
Эксплуатационные расходы Включены в ставку
Налоги С учётом НДС
Тип договора Прямая аренда
Срок договора от 11 месяцев
Размер платежей 1 месяц
Обеспечительный платеж 1 месяц
Статус Сдан

О бизнес-центре

Класс B+
Этажность 3
Лифты Нет
Общая площадь 0 м²
Паркинг Наземный
Вентиляция приточно-вытяжная
Кондиционирование центральное
Телекоммуникации Интернет/Телефония

Расположение

Подробная презентацию по предложению

Собираете информацию? Получите подробную презентацию в удобном формате, чтобы обсудить вариант с коллегами или переслать руководству!

Похожие предложения в других зданиях

БЕЗ КОМИССИИ ID: 304686 Рейтинг7.8 КлассB

Москва, Большой Палашёвский переулок, 11 с2

Пушкинская → 698 м
~ 7 мин
Арендная плата в месяц 773 333 ₽ 32 000 ₽/м² в год С учётом НДС
Характеристики 290 м² 2 этаж Готово к въезду
Преимущества
  • Класс B
  • Пешком от метро
  • Кондиционирование и вентиляция
  • Свой паркинг

Предлагаем в долгосрочную аренду офисный блок класса B общей площадью 290 кв.м в бизнес-центре... подробнее

Презентация по предложению

Собираете информацию? Получите подробную презентацию в удобном формате!

БЕЗ КОМИССИИ ID: 305694 Рейтинг8.2 КлассB

Москва, Большой Палашёвский переулок, 13 стр 1

Тверская → 492 м
~ 6 мин
Арендная плата в месяц 697 500 ₽ 30 000 ₽/м² в год С учётом НДС
Характеристики 279 м² 2 этаж Готово к въезду
Преимущества
  • Класс B
  • Пешком от метро
  • Кондиционирование и вентиляция

Предлагаем в долгосрочную аренду офисное помещение класса B общей площадью 279 квадратных метров в бизнес-центре... подробнее

>

Виртуальный тур

Презентация по предложению

Собираете информацию? Получите подробную презентацию в удобном формате!

БЕЗ КОМИССИИ ID: 6063 Рейтинг6.9 КлассА

Москва, Большой Палашевский переулок, 5/1

Тверская → 588 м
~ 7 мин
Арендная плата в месяц 785 000 ₽ 30 000 ₽/м² в год С учётом НДС
Характеристики 314 м² 3 этаж Готово к въезду
Преимущества
  • Класс А
  • Пешком от метро
  • Кондиционирование и вентиляция
  • Свой паркинг
  • Несколько провайдеров связи

Собственник сдает в долгосрочную прямую аренду офис класса А общей площадью 314 кв.м в недавно отреконструированном бизнес-центре... подробнее

Презентация по предложению

Собираете информацию? Получите подробную презентацию в удобном формате!

БЕЗ КОМИССИИ ID: 168465 Рейтинг9.1 КлассА

Москва, Тверская улица, 22а с1

Чеховская → 542 м
~ 5 мин
Арендная плата в месяц 617 050 ₽ 25 800 ₽/м² в год С учётом НДС
Характеристики 287 м² 2 этаж Готово к въезду
Преимущества
  • Класс А
  • Пешком от метро
  • Кондиционирование и вентиляция
  • Свой паркинг
  • Несколько провайдеров связи

Предлагаем в прямую аренду помещение под офис класса А общей площадью 287 квадр. метров в бизнес-центре "Саммит"... подробнее

Презентация по предложению

Собираете информацию? Получите подробную презентацию в удобном формате!

БЕЗ КОМИССИИ ID: 147115 Рейтинг7.9 КлассB

Москва, Тверская улица, 22В

Маяковская → 459 м
~ 5 мин
Арендная плата в месяц 732 500 ₽ 30 000 ₽/м² в год С учётом НДС
Характеристики 293 м² 2 - 3 этаж Готово к въезду
Преимущества
  • Класс B
  • Пешком от метро
  • Кондиционирование и вентиляция
  • Свой паркинг
  • Развитая инфраструктура

Сдается в прямую аренду помещение под офис класса B общей площадью 293 квадр. метров в историческом бизнес-центре... подробнее

Презентация по предложению

Собираете информацию? Получите подробную презентацию в удобном формате!

Посмотреть все похожие предложения
Отнеситесь рационально к процессу поиска нового офиса!

Просто ответьте на 3 вопроса, и наши специалисты сами предложат оптимальные варианты под ваш бюджет

.