8.2

Виртуальный тур

Смотреть все фото
БЕЗ КОМИССИИ ID: 1192766 Рейтинг7.5 КлассB

Москва, Большой Саввинский переулок, 12 с18

Спортивная → 1.36 км
~ 14 мин
Арендная плата в месяц 700 400 ₽ 29 700 ₽/м² в год С учётом НДС

Презентация по предложению

Собираете информацию? Получите подробную презентацию в удобном формате!

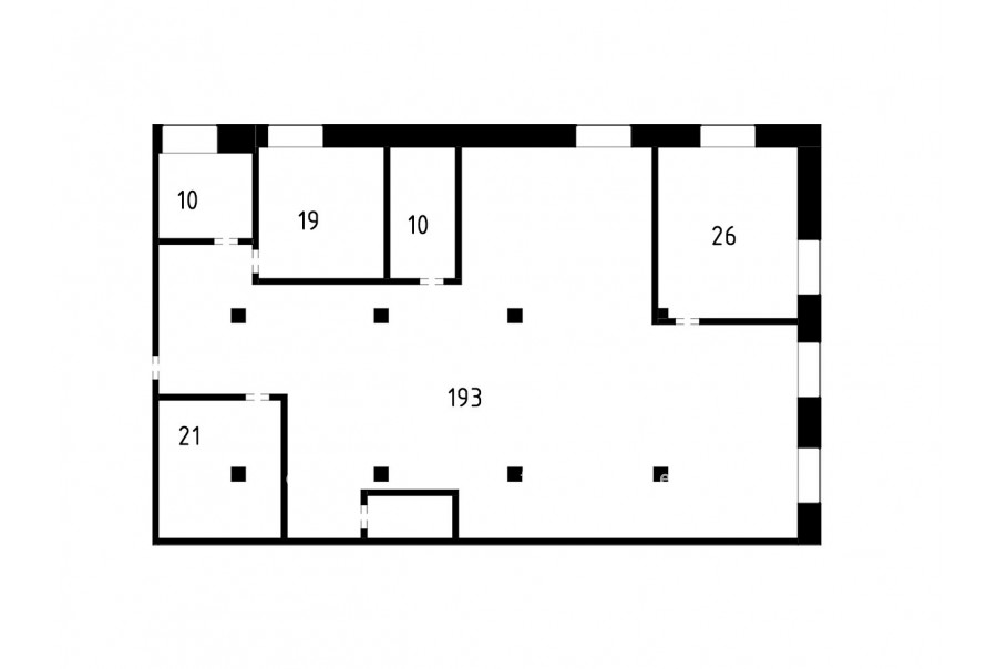
Площадь 283 м²
Состояние Готово к въезду
Планировка Кабинетная
Этаж 3

Описание

Преимущества
  • Класс B
  • Пешком от метро
  • Кондиционирование и вентиляция
Предлагаем в прямую аренду офисное помещение класса B площадью 283 кв. метров в бизнес-центре.

Москва, ЦАО, Большой Саввинский переулок, 12 с18

Удобная локация здания:
- Возможность аренды парковочных мест.
- Ближайшее метро: от метро "Спортивная" всего 14 мин пешком

Офис класса B:
- Помещение готово к въезду
- Вентиляция: Приточно-вытяжная вентиляция
- Кондиционирование: сплит-системы


Если предложение предварительно Вам подходит:

1. Мы отправим Вам подробную презентацию с планировкой и фотографиями в течение 10 минут после звонка, чтобы Вы могли поделиться информацией с руководством или с коллегами.
2. Ответим на любые Ваши вопросы, готовы обсуждать любые предложения по коммерческим условиям аренды помещения.
3.

Вы можете позвонить нам в любое время. Мы ответим на Ваши вопросы по будням до 19:00, а поздно вечером или в выходные сможем передать Ваш контакт нашему менеджеру.

Коммерческие условия

Арендная плата 636 750 ₽
Ставка арендной платы 29 700 ₽ м²/год
Эксплуатационные расходы Включены в ставку
Налоги С учётом НДС
Тип договора Прямая аренда
Срок договора от 11 месяцев
Размер платежей 1 месяц
Обеспечительный платеж 2 месяц
Статус Сдан

О бизнес-центре

Класс B
Этажность 5
Лифты Нет
Общая площадь 0 м²
Паркинг Наземный и подземный
Вентиляция приточно-вытяжная
Кондиционирование сплит-системы
Телекоммуникации Интернет/Телефония

Расположение

Подробная презентацию по предложению

Собираете информацию? Получите подробную презентацию в удобном формате, чтобы обсудить вариант с коллегами или переслать руководству!

Похожие предложения в других зданиях

БЕЗ КОМИССИИ ID: 306697 Рейтинг8.0 КлассB+

Москва, Большой Саввинский переулок, 12 с1

Спортивная → 1.34 км
~ 13 мин
Арендная плата в месяц 750 000 ₽ 30 000 ₽/м² в год С учётом НДС
Характеристики 300 м² 2 этаж Готово к въезду
Преимущества
  • Класс B+
  • Пешком от метро
  • Кондиционирование и вентиляция
  • Развитая инфраструктура

Сдается в прямую аренду помещение под офис класса B+ площадью 300 квадр. метров в историческом бизнес-центре "Московский шелк"... подробнее

Презентация по предложению

Собираете информацию? Получите подробную презентацию в удобном формате!

БЕЗ КОМИССИИ ID: 1259262 Рейтинг8.4 КлассА

Москва, Саввинская набережная, 15

Киевская → 1.24 км
~ 12 мин
Арендная плата в месяц 816 750 ₽ 33 000 ₽/м² в год С учётом НДС
Характеристики 297 м² 8 этаж Готово к въезду
Преимущества
  • Класс А
  • Пешком от метро
  • Кондиционирование и вентиляция
  • Свой паркинг
  • Несколько провайдеров связи
  • Развитая инфраструктура

Сдаем в прямую аренду офисное помещение класса А площадью 297 квадратных метров в бизнес-центре "Японский дом"... подробнее

Презентация по предложению

Собираете информацию? Получите подробную презентацию в удобном формате!

БЕЗ КОМИССИИ ID: 1248134 Рейтинг7.4 КлассB+

Москва, Погодинская улица, 24

Спортивная → 892 м
~ 9 мин
Арендная плата в месяц 687 500 ₽ 27 500 ₽/м² в год С учётом НДС
Характеристики 300 м² 1 этаж Готово к въезду
Преимущества
  • Класс B+
  • Пешком от метро
  • Кондиционирование и вентиляция
  • Свой паркинг

Сдаем в прямую аренду офис класса B+ общей площадью 300 кв.м в историческом недавно отреконструированном бизнес-центре... подробнее

Презентация по предложению

Собираете информацию? Получите подробную презентацию в удобном формате!

БЕЗ КОМИССИИ ID: 4030 Рейтинг8.9 КлассА

Москва, Большой Саввинский переулок, 2 с9

Киевская → 1.21 км
~ 12 мин
Арендная плата в месяц 853 333 ₽ 32 000 ₽/м² в год С учётом НДС
Характеристики 320 м² 4 этаж Готово к въезду
Преимущества
  • Класс А
  • Пешком от метро
  • Кондиционирование и вентиляция
  • Свой паркинг

Сдаем в аренду офисное помещение класса А общей площадью 320 кв.м в бизнес-центре... подробнее

Презентация по предложению

Собираете информацию? Получите подробную презентацию в удобном формате!

БЕЗ КОМИССИИ ID: 1250256 Рейтинг6.6 КлассB

Москва, Малая Пироговская улица, 18 с1

Спортивная → 671 м
~ 7 мин
Арендная плата в месяц 614 167 ₽ 27 500 ₽/м² в год С учётом НДС
Характеристики 268 м² 1 этаж Готово к въезду
Преимущества
  • Класс B
  • Пешком от метро
  • Кондиционирование и вентиляция
  • Свой паркинг
  • Несколько провайдеров связи
  • Развитая инфраструктура

Сдается в долгосрочную аренду офисный блок класса B общей площадью 268 квадратных метров в историческом недавно отреконструированном бизнес-центре... подробнее

Презентация по предложению

Собираете информацию? Получите подробную презентацию в удобном формате!

Посмотреть все похожие предложения
Отнеситесь рационально к процессу поиска нового офиса!

Просто ответьте на 3 вопроса, и наши специалисты сами предложат оптимальные варианты под ваш бюджет