8.2
Смотреть все фото
БЕЗ КОМИССИИ ID: 1376500 Рейтинг7.8 КлассB+

Москва, Большой Саввинский переулок, 17

Спортивная → 1.42 км
~ 14 мин
Арендная плата в месяц 525 000 ₽ 45 000 ₽/м² в год С учётом НДС

Презентация по предложению

Собираете информацию? Получите подробную презентацию в удобном формате!

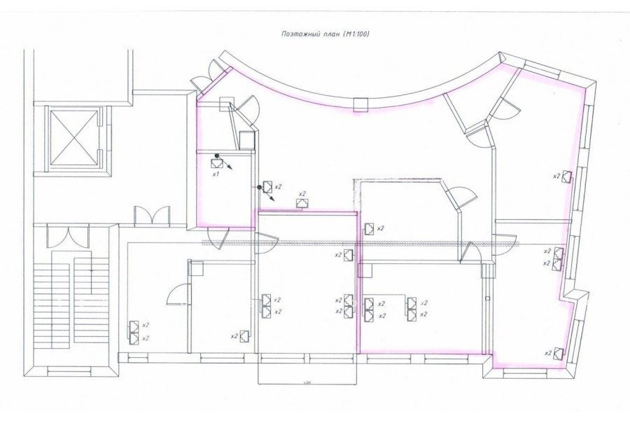
Площадь 140 м²
Состояние Готово к въезду
Планировка Смешанная
Этаж 4

Описание

Преимущества
  • Класс B+
  • Пешком от метро
  • Кондиционирование и вентиляция
  • Свой паркинг
Сдается в прямую аренду офисное помещение класса B+ общей площадью 140 кв. метров в историческом бизнес-центре.

Москва, ЦАО, Большой Саввинский переулок, 17

Удобная локация здания:
- Возможность аренды парковочных мест.
- Ближайшее метро: от метро "Спортивная" всего 14 мин пешком

Офис класса B+:
- Офис с отделкой, полностью готов к аренде
- Вентиляция: Приточно-вытяжная вентиляция
- Кондиционирование: центральное


Если предложение предварительно Вам подходит:

1. Мы подготовили презентацию с информацией о помещении, фотографиями и планировкой, чтобы Вы могли поделиться ей с коллегами или руководством. Попросите об этом нашего менеджера по телефону в объявлении.
2. Мы готовы ответить на любые Ваши вопросы о помещении и коммерческих условиях аренды.
3. Оперативно организуем просмотр помещения, договоримся на любое удобное время, подготовим виртуальный тур.

Звоните нам в любое время. По будням мы сможем ответить на Ваши вопросы до 19:00. В выходные или вечернее время мы передадим Ваш контакт нашему менеджеру по аренде.

Коммерческие условия

Арендная плата 525 000 ₽
Ставка арендной платы 45 000 ₽ м²/год
Эксплуатационные расходы Включены в ставку
Налоги С учётом НДС
Тип договора Прямая аренда
Срок договора от 11 месяцев
Размер платежей 1 месяц
Обеспечительный платеж 1 месяц
Статус Сдан

О бизнес-центре

Класс B+
Этажность 4
Лифты Нет
Общая площадь 2 600 м²
Год постройки 1889
Паркинг Наземный
Вентиляция приточно-вытяжная
Кондиционирование центральное
Телекоммуникации Интернет/Телефония

Расположение

Подробная презентацию по предложению

Собираете информацию? Получите подробную презентацию в удобном формате, чтобы обсудить вариант с коллегами или переслать руководству!

Похожие предложения в других зданиях

БЕЗ КОМИССИИ ID: 1324392 Рейтинг5.6 КлассB

Москва, Оболенский переулок, 10 с1

Фрунзенская → 743 м
~ 7 мин
Арендная плата в месяц 511 000 ₽ 42 000 ₽/м² в год Упрощённая система налогообложения
Характеристики 146 м² 4 этаж Готово к въезду
Преимущества
  • Класс B
  • Пешком от метро
  • Кондиционирование и вентиляция
  • Свой паркинг

Сдается в долгосрочную прямую аренду офис класса B площадью 146 кв. метров в бизнес-центре... подробнее

Презентация по предложению

Собираете информацию? Получите подробную презентацию в удобном формате!

БЕЗ КОМИССИИ ID: 1329607 Рейтинг6.4 КлассB

Москва, Оболенский переулок, 10 с6

Фрунзенская → 809 м
~ 8 мин
Арендная плата в месяц 465 500 ₽ 42 000 ₽/м² в год Упрощённая система налогообложения
Характеристики 133 м² 1 этаж Готово к въезду
Преимущества
  • Класс B
  • Пешком от метро
  • Кондиционирование и вентиляция
  • Свой паркинг

Предлагаем в долгосрочную прямую аренду офисное помещение класса B общей площадью 133 квадратных метров в бизнес-центре... подробнее

Презентация по предложению

Собираете информацию? Получите подробную презентацию в удобном формате!

БЕЗ КОМИССИИ ID: 284930 Рейтинг8.9 КлассА

Москва, улица Тимура Фрунзе, 11 к1

Парк культуры → 723 м
~ 7 мин
Арендная плата в месяц 521 550 ₽ 51 300 ₽/м² в год С учётом НДС
Характеристики 122 м² 1 этаж Под отделку
Преимущества
  • Класс А
  • Пешком от метро
  • Кондиционирование и вентиляция
  • Свой паркинг

Собственник сдает в долгосрочную аренду офисный блок класса А площадью 122 квадр. метров в недавно отреконструированном бизнес-центре "Демидов"... подробнее

Презентация по предложению

Собираете информацию? Получите подробную презентацию в удобном формате!

БЕЗ КОМИССИИ ID: 1378189 Рейтинг7.3 КлассB

Москва, улица Льва Толстого, 5 с1

Парк культуры → 627 м
~ 6 мин
Арендная плата в месяц 525 000 ₽ 42 000 ₽/м² в год С учётом НДС
Характеристики 150 м² 3 - 7 этаж Готово к въезду
Преимущества
  • Класс B
  • Пешком от метро
  • Кондиционирование и вентиляция
  • Свой паркинг
  • Развитая инфраструктура

Предлагается в долгосрочную аренду офисный блок класса B площадью 150 кв.м в недавно отреконструированном бизнес-центре "Хамовническая слобода"... подробнее

Презентация по предложению

Собираете информацию? Получите подробную презентацию в удобном формате!

БЕЗ КОМИССИИ ID: 1326429 Рейтинг7.5 КлассB+

Москва, Лужнецкая набережная, 2/4 с4

Воробьевы горы → 1.26 км
~ 13 мин
Арендная плата в месяц 532 500 ₽ 45 000 ₽/м² в год С учётом НДС
Характеристики 142 м² 4 этаж Готово к въезду
Преимущества
  • Класс B+
  • Пешком от метро
  • Кондиционирование и вентиляция
  • Свой паркинг
  • Несколько провайдеров связи

Предлагаем в прямую аренду офисное помещение класса B+ площадью 142 квадр. метров в бизнес-центре "Арт Плаза"... подробнее

Презентация по предложению

Собираете информацию? Получите подробную презентацию в удобном формате!

Посмотреть все похожие предложения
Отнеситесь рационально к процессу поиска нового офиса!

Просто ответьте на 3 вопроса, и наши специалисты сами предложат оптимальные варианты под ваш бюджет

.