8.2
Смотреть все фото
БЕЗ КОМИССИИ ID: 138454 Рейтинг8.4 КлассB+
Бизнес-центр «Бородино»

Аренда офиса 1528 м²

Москва, Русаковская улица, 13

Красносельская → 766 м
~ 8 мин
Арендная плата в месяц 3 450 700 ₽ 27 100 ₽/м² в год С учётом НДС

Презентация по предложению

Собираете информацию? Получите подробную презентацию в удобном формате!

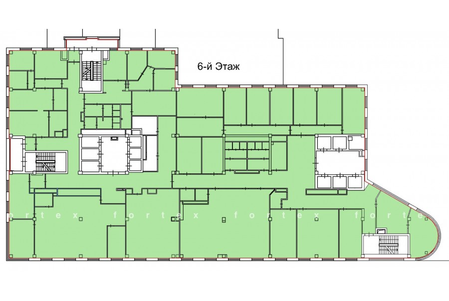
Площадь 1 528 м²
Состояние Отделка под арендатора
Планировка Смешанная
Этаж 6

Описание

Преимущества
  • Класс B+
  • Пешком от метро
  • Кондиционирование и вентиляция
  • Свой паркинг
  • Несколько провайдеров связи
  • Развитая инфраструктура
Сдается в долгосрочную прямую аренду офис класса B+ площадью 1528 квадр. метров в бизнес-центре "Бородино".

Москва, ЦАО, Русаковская улица, 13

Удобная локация здания:
- Автомобиль: близость транспортных магистралей, таких как улица Стромынка, Третье Транспортное Кольцо, Русаковская улица и других.
- Возможность аренды парковочных мест.
- Ближайшее метро: от метро "Сокольники" всего 9 мин пешком

Офис класса B+:
- Возможность ремонта по предпочтениям арендатора
- Вентиляция: Приточно-вытяжная вентиляция
- Кондиционирование: центральное
- Презентабельный центральный рецепшн
- Круглосуточная охрана и видеонаблюдение
- Развитая инфраструктура внутри здания

Возможность заключения контракта в соответствии с 44ФЗ по госзакупкам.

Если предложение предварительно Вам подходит:

1. Получите презентацию в течение 10 минут в Whatsapp или на почту с фотографиями и планировкой, чтобы обсудить данный вариант с коллегами или переслать руководству. Для этого позвоните по телефону, указанному в объявлении.
2. Мы готовы ответить на любые Ваши вопросы о помещении и коммерческих условиях аренды.
3. Оперативно организуем просмотр помещения, договоримся на любое удобное время, подготовим виртуальный тур.

Звоните нам в любое время. По будням мы сможем ответить на Ваши вопросы до 19:00. В выходные или вечернее время мы передадим Ваш контакт нашему менеджеру по аренде.

Коммерческие условия

Арендная плата 2 419 330 ₽
Ставка арендной платы 27 100 ₽ м²/год
Эксплуатационные расходы Включены в ставку
Налоги С учётом НДС
Тип договора Прямая аренда
Срок договора от 11 месяцев
Размер платежей 1 месяц
Обеспечительный платеж 1 месяц
Статус Сдан

О бизнес-центре

Класс B+
Этажность 17
Лифты Есть
Общая площадь 30 755 м²
Год постройки 2006
Паркинг Подземный
Вентиляция приточно-вытяжная
Кондиционирование центральное
Телекоммуникации Интернет/Телефония

Расположение

Подробная презентацию по предложению

Собираете информацию? Получите подробную презентацию в удобном формате, чтобы обсудить вариант с коллегами или переслать руководству!

Похожие предложения в других зданиях

БЕЗ КОМИССИИ ID: 77946 Рейтинг8.2 КлассB+

Москва, Спартаковский переулок, 2 с1

Красносельская → 662 м
~ 7 мин
Арендная плата в месяц 3 662 500 ₽ 29 300 ₽/м² в год С учётом НДС
Характеристики 1 500 м² 1 - 2 этаж Готово к въезду
Преимущества
  • Класс B+
  • Пешком от метро
  • Кондиционирование и вентиляция
  • Свой паркинг
  • Развитая инфраструктура

Предлагается в долгосрочную аренду офисный блок класса B+ общей площадью 1500 кв.м в новом бизнес-центре "Платформа"... подробнее

Презентация по предложению

Собираете информацию? Получите подробную презентацию в удобном формате!

БЕЗ КОМИССИИ ID: 81639 Рейтинг9.0 КлассB

Москва, Верхняя Красносельская улица, 3 с3

Красносельская → 805 м
~ 8 мин
Арендная плата в месяц 3 043 667 ₽ 23 000 ₽/м² в год С учётом НДС
Характеристики 1 588 м² -1 - 3 этаж Под отделку
Преимущества
  • Класс B
  • Пешком от метро
  • Кондиционирование и вентиляция
  • Свой паркинг

Предлагается в прямую аренду офисное помещение класса B площадью 1588 кв. метров в бизнес-центре... подробнее

Презентация по предложению

Собираете информацию? Получите подробную презентацию в удобном формате!

БЕЗ КОМИССИИ ID: 307457 Рейтинг8.8 КлассB+

Москва, Верхняя Красносельская улица, 3 с2

Красносельская → 833 м
~ 8 мин
Арендная плата в месяц 3 748 958 ₽ 29 500 ₽/м² в год С учётом НДС
Характеристики 1 525 м² 6 этаж Готово к въезду
Преимущества
  • Класс B+
  • Пешком от метро
  • Кондиционирование и вентиляция
  • Свой паркинг
  • Несколько провайдеров связи

Собственник сдает в долгосрочную прямую аренду офисный блок класса B+ общей площадью 1525 кв. метров в новом бизнес-центре... подробнее

Презентация по предложению

Собираете информацию? Получите подробную презентацию в удобном формате!

БЕЗ КОМИССИИ ID: 412093 Рейтинг8.0 КлассB+

Москва, Верхняя Красносельская улица, 3 с1

Красносельская → 824 м
~ 8 мин
Арендная плата в месяц 3 769 792 ₽ 27 500 ₽/м² в год С учётом НДС
Характеристики 1 645 м² 6 этаж Готово к въезду
Преимущества
  • Класс B+
  • Пешком от метро
  • Кондиционирование и вентиляция
  • Несколько провайдеров связи
  • Развитая инфраструктура

Предлагаем в долгосрочную прямую аренду офисный блок класса B+ площадью 1645 кв. метров в бизнес-центре "Офис-парк Красносельский"... подробнее

Презентация по предложению

Собираете информацию? Получите подробную презентацию в удобном формате!

БЕЗ КОМИССИИ ID: 59017 Рейтинг8.5 КлассB

Москва, Нижняя Красносельская улица, 14 с1

Красносельская → 668 м
~ 7 мин
Арендная плата в месяц 3 225 833 ₽ 24 500 ₽/м² в год С учётом НДС
Характеристики 1 580 м² 1 - 4 этаж Готово к въезду
Преимущества
  • Класс B
  • Пешком от метро
  • Кондиционирование и вентиляция
  • Свой паркинг

Собственник сдает в прямую аренду помещение под офис класса B площадью 1580 квадратных метров в бизнес-центре... подробнее

Презентация по предложению

Собираете информацию? Получите подробную презентацию в удобном формате!

Посмотреть все похожие предложения
Отнеситесь рационально к процессу поиска нового офиса!

Просто ответьте на 3 вопроса, и наши специалисты сами предложат оптимальные варианты под ваш бюджет

.