8.2

Виртуальный тур

Смотреть все фото
БЕЗ КОМИССИИ ID: 1318175 Рейтинг8.4 КлассB+
Бизнес-центр «Бородино»

Аренда офиса 393 м²

Москва, Русаковская улица, 13

Красносельская → 766 м
~ 8 мин
Арендная плата в месяц 982 500 ₽ 30 000 ₽/м² в год С учётом НДС

Презентация по предложению

Собираете информацию? Получите подробную презентацию в удобном формате!

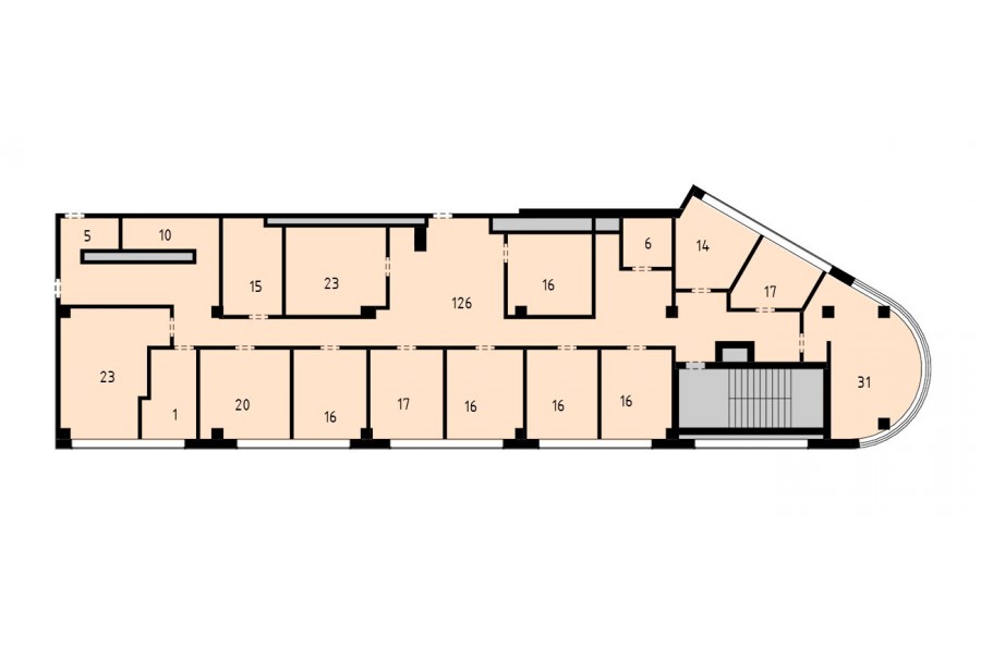
Площадь 393 м²
Состояние Готово к въезду
Планировка Смешанная
Этаж 11

Описание

Преимущества
  • Класс B+
  • Пешком от метро
  • Кондиционирование и вентиляция
  • Свой паркинг
  • Несколько провайдеров связи
  • Развитая инфраструктура
Сдается в долгосрочную аренду помещение под офис класса B+ площадью 393 квадратных метров в бизнес-центре "Бородино".

Москва, ЦАО, Русаковская улица, 13

Удобная локация здания:
- Автомобиль: близость транспортных магистралей, таких как Третье Транспортное Кольцо, Русаковская улица, улица Стромынка и других.
- Возможность аренды парковочных мест.
- Ближайшее метро: от метро "Красносельская" всего 8 мин пешком

Офис класса B+:
- Офис с отделкой, полностью готов к аренде
- Вентиляция: Приточно-вытяжная вентиляция
- Кондиционирование: центральное
- Презентабельный центральный ресепшн
- Круглосуточная охрана и видеонаблюдение
- Развитая инфраструктура внутри здания


Если предложение предварительно Вам подходит:

1. Мы отправим Вам подробную презентацию с планировкой и фотографиями в течение 10 минут после звонка, чтобы Вы могли поделиться информацией с руководством или с коллегами.
2. Ответим на любые Ваши вопросы, готовы обсуждать любые предложения по коммерческим условиям аренды помещения.
3.

Звоните нам в любое время. По будням мы сможем ответить на Ваши вопросы до 19:00. В выходные или вечернее время мы передадим Ваш контакт нашему менеджеру по аренде.

Коммерческие условия

Арендная плата 982 500 ₽
Ставка арендной платы 30 000 ₽ м²/год
Эксплуатационные расходы Включены в ставку
Налоги С учётом НДС
Тип договора Прямая аренда
Срок договора от 11 месяцев
Размер платежей 1 месяц
Обеспечительный платеж 1 месяц
Статус Сдан

О бизнес-центре

Класс B+
Этажность 17
Лифты Есть
Общая площадь 30 755 м²
Год постройки 2006
Паркинг Подземный
Вентиляция приточно-вытяжная
Кондиционирование центральное
Телекоммуникации Интернет/Телефония

Расположение

Подробная презентацию по предложению

Собираете информацию? Получите подробную презентацию в удобном формате, чтобы обсудить вариант с коллегами или переслать руководству!

Похожие предложения в других зданиях

БЕЗ КОМИССИИ ID: 1324466 Рейтинг8.2 КлассB+

Москва, Спартаковский переулок, 2 с1

Красносельская → 662 м
~ 7 мин
Арендная плата в месяц 1 099 988 ₽ 29 300 ₽/м² в год Упрощённая система налогообложения
Характеристики 450 м² 4 этаж Готово к въезду
Преимущества
  • Класс B+
  • Пешком от метро
  • Кондиционирование и вентиляция
  • Свой паркинг
  • Развитая инфраструктура

Предлагаем в долгосрочную прямую аренду офисное помещение класса B+ площадью 450 квадратных метров в бизнес-центре "Платформа"... подробнее

Презентация по предложению

Собираете информацию? Получите подробную презентацию в удобном формате!

БЕЗ КОМИССИИ ID: 250066 Рейтинг7.6 КлассB

Москва, Верхняя Красносельская улица, 11А с1

Красносельская → 601 м
~ 6 мин
Арендная плата в месяц 805 500 ₽ 27 000 ₽/м² в год С учётом НДС
Характеристики 358 м² 2 этаж Готово к въезду
Преимущества
  • Класс B
  • Пешком от метро
  • Кондиционирование и вентиляция
  • Свой паркинг
  • Развитая инфраструктура

Предлагаем в долгосрочную аренду офисное помещение класса B площадью 358 кв.м в бизнес-центре... подробнее

Презентация по предложению

Собираете информацию? Получите подробную презентацию в удобном формате!

БЕЗ КОМИССИИ ID: 277169 Рейтинг8.8 КлассB+

Москва, Спартаковская площадь, 14 с1

Бауманская → 695 м
~ 7 мин
Арендная плата в месяц 801 000 ₽ 26 700 ₽/м² в год С учётом НДС
Характеристики 360 м² 1 этаж Готово к въезду
Преимущества
  • Класс B+
  • Пешком от метро
  • Кондиционирование и вентиляция
  • Свой паркинг

Предлагаем в прямую аренду помещение под офис класса B+ общей площадью 360 квадратных метров в недавно отреконструированном бизнес-центре "Central Street"... подробнее

Презентация по предложению

Собираете информацию? Получите подробную презентацию в удобном формате!

БЕЗ КОМИССИИ ID: 1328025 Рейтинг8.5 КлассB+

Москва, 3-я Рыбинская улица, 18 с2

Сокольники → 1.54 км
~ 15 мин
Арендная плата в месяц 1 334 772 ₽ 39 200 ₽/м² в год С учётом НДС
Характеристики 409 м² 2 этаж Готово к въезду
Преимущества
  • Класс B+
  • Пешком от метро
  • Кондиционирование и вентиляция
  • Свой паркинг
  • Несколько провайдеров связи

Предлагается в долгосрочную прямую аренду офисный блок класса B+ площадью 409 квадратных метров в недавно отреконструированном бизнес-центре "Буревестник"... подробнее

Презентация по предложению

Собираете информацию? Получите подробную презентацию в удобном формате!

БЕЗ КОМИССИИ ID: 1327813 Рейтинг7.5 КлассB

Москва, Нижняя Красносельская улица, 40/12 к1

Красносельская → 788 м
~ 8 мин
Арендная плата в месяц 927 155 ₽ 26 000 ₽/м² в год С учётом НДС
Характеристики 428 м² 4 этаж Готово к въезду
Преимущества
  • Класс B
  • Пешком от метро
  • Кондиционирование и вентиляция
  • Свой паркинг

Предлагается в долгосрочную аренду офисный блок класса B общей площадью 428 кв. метров в бизнес-центре "Новь"... подробнее

Презентация по предложению

Собираете информацию? Получите подробную презентацию в удобном формате!

Посмотреть все похожие предложения
Отнеситесь рационально к процессу поиска нового офиса!

Просто ответьте на 3 вопроса, и наши специалисты сами предложат оптимальные варианты под ваш бюджет

.