8.2
Смотреть все фото
БЕЗ КОМИССИИ ID: 1378581 Рейтинг8.4 КлассB+
Бизнес-центр «Бородино»

Аренда офиса 443 м²

Москва, Русаковская улица, 13

Красносельская → 766 м
~ 8 мин
Арендная плата в месяц 1 087 900 ₽ 29 500 ₽/м² в год Упрощённая система налогообложения

Презентация по предложению

Собираете информацию? Получите подробную презентацию в удобном формате!

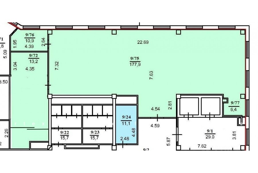
Площадь 443 м²
Состояние Готово к въезду
Планировка Смешанная
Этаж 16

Описание

Преимущества
  • Класс B+
  • Пешком от метро
  • Кондиционирование и вентиляция
  • Свой паркинг
  • Несколько провайдеров связи
  • Развитая инфраструктура
Предлагается в долгосрочную прямую аренду офисный блок класса B+ общей площадью 443 квадратных метров в бизнес-центре "Бородино".

Москва, ЦАО, Русаковская улица, 13

Удобная локация здания:
- Автомобиль: близость транспортных магистралей, таких как Третье Транспортное Кольцо, Русаковская улица, улица Стромынка и других.
- Возможность аренды парковочных мест.
- Ближайшее метро: от метро "Сокольники" всего 8 мин пешком

Офис класса B+:
- Помещение готово к въезду
- Вентиляция: Приточно-вытяжная вентиляция
- Кондиционирование: центральное
- Презентабельный центральный ресепшн
- Круглосуточная охрана и видеонаблюдение
- Развитая инфраструктура внутри здания


Если предложение предварительно Вам подходит:

1. Получите презентацию в течение 10 минут в Whatsapp или на почту с фотографиями и планировкой, чтобы обсудить данный вариант с коллегами или переслать руководству. Для этого позвоните по телефону, указанному в объявлении.
2. Задайте любые вопросы менеджеру по телефону, готовы обсуждать любые предложения по финансовым условиям договора аренды.
3. Оперативно организуем просмотр помещения, договоримся на любое удобное время, подготовим виртуальный тур.

Звоните нам в любое время. По будням мы сможем ответить на Ваши вопросы до 19:00. В выходные или вечернее время мы передадим Ваш контакт нашему менеджеру по аренде.

Коммерческие условия

Арендная плата 1 087 940 ₽
Ставка арендной платы 29 500 ₽ м²/год
Эксплуатационные расходы Включены в ставку
Налоги Упрощённая система налогообложения
Тип договора Прямая аренда
Срок договора от 11 месяцев
Размер платежей 1 месяц
Обеспечительный платеж 1 месяц
Статус Свободен

О бизнес-центре

Класс B+
Этажность 17
Лифты Есть
Общая площадь 30 755 м²
Год постройки 2006
Паркинг Подземный
Вентиляция приточно-вытяжная
Кондиционирование центральное
Телекоммуникации Интернет/Телефония

Расположение

Подробная презентацию по предложению

Собираете информацию? Получите подробную презентацию в удобном формате, чтобы обсудить вариант с коллегами или переслать руководству!

Похожие предложения в других зданиях

БЕЗ КОМИССИИ ID: 1324466 Рейтинг8.2 КлассB+

Москва, Спартаковский переулок, 2 с1

Красносельская → 662 м
~ 7 мин
Арендная плата в месяц 1 099 988 ₽ 29 300 ₽/м² в год Упрощённая система налогообложения
Характеристики 450 м² 4 этаж Готово к въезду
Преимущества
  • Класс B+
  • Пешком от метро
  • Кондиционирование и вентиляция
  • Свой паркинг
  • Развитая инфраструктура

Предлагаем в долгосрочную прямую аренду офисное помещение класса B+ площадью 450 квадратных метров в бизнес-центре "Платформа"... подробнее

Презентация по предложению

Собираете информацию? Получите подробную презентацию в удобном формате!

БЕЗ КОМИССИИ ID: 1306430 Рейтинг8.0 КлассB+

Москва, Верхняя Красносельская улица, 3 с1

Красносельская → 824 м
~ 8 мин
Арендная плата в месяц 1 239 000 ₽ 31 000 ₽/м² в год С учётом НДС
Характеристики 480 м² 4 этаж Готово к въезду
Преимущества
  • Класс B+
  • Пешком от метро
  • Кондиционирование и вентиляция
  • Несколько провайдеров связи
  • Развитая инфраструктура

Предлагается в долгосрочную аренду помещение под офис класса B+ общей площадью 480 квадр. метров в бизнес-центре "Офис-парк Красносельский"... подробнее

>

Виртуальный тур

Презентация по предложению

Собираете информацию? Получите подробную презентацию в удобном формате!

БЕЗ КОМИССИИ ID: 1321410 Рейтинг7.0 КлассB

Москва, Верхняя Красносельская улица, 2/1 с1

Красносельская → 773 м
~ 8 мин
Арендная плата в месяц 854 167 ₽ 25 000 ₽/м² в год С учётом НДС
Характеристики 410 м² 5 этаж Готово к въезду
Преимущества
  • Класс B
  • Пешком от метро
  • Кондиционирование и вентиляция
  • Свой паркинг

Сдается в долгосрочную аренду офисное помещение класса B общей площадью 410 кв. метров в бизнес-центре... подробнее

>

Виртуальный тур

Презентация по предложению

Собираете информацию? Получите подробную презентацию в удобном формате!

БЕЗ КОМИССИИ ID: 275771 Рейтинг6.2 КлассB

Москва, Новая Переведеновская улица, 6 с3

Бауманская → 1.16 км
~ 12 мин
Арендная плата в месяц 1 129 333 ₽ 28 000 ₽/м² в год С учётом НДС
Характеристики 484 м² 1 - 1 этаж Отделка под арендатора
Преимущества
  • Класс B
  • Пешком от метро
  • Кондиционирование и вентиляция
  • Свой паркинг

Предлагается в долгосрочную прямую аренду офисный блок класса B площадью 484 квадратных метров в историческом бизнес-центре... подробнее

Презентация по предложению

Собираете информацию? Получите подробную презентацию в удобном формате!

БЕЗ КОМИССИИ ID: 1237399 Рейтинг6.1 КлассB

Москва, Бауманская улица, 11

Бауманская → 506 м
~ 5 мин
Арендная плата в месяц 1 063 333 ₽ 27 500 ₽/м² в год С учётом НДС
Характеристики 464 м² 1 - 3 этаж Готово к въезду
Преимущества
  • Класс B
  • Пешком от метро
  • Кондиционирование и вентиляция
  • Свой паркинг
  • Несколько провайдеров связи
  • Развитая инфраструктура

Собственник сдает в долгосрочную аренду помещение под офис класса B общей площадью 464 кв. метров в бизнес-центре... подробнее

>

Виртуальный тур

Презентация по предложению

Собираете информацию? Получите подробную презентацию в удобном формате!

Посмотреть все похожие предложения
Отнеситесь рационально к процессу поиска нового офиса!

Просто ответьте на 3 вопроса, и наши специалисты сами предложат оптимальные варианты под ваш бюджет

.