8.2
Смотреть все фото
БЕЗ КОМИССИИ ID: 1378561 Рейтинг8.4 КлассB+
Бизнес-центр «Бородино»

Аренда офиса 68 м²

Москва, Русаковская улица, 13

Красносельская → 766 м
~ 8 мин
Арендная плата в месяц 155 800 ₽ 27 500 ₽/м² в год Упрощённая система налогообложения

Презентация по предложению

Собираете информацию? Получите подробную презентацию в удобном формате!

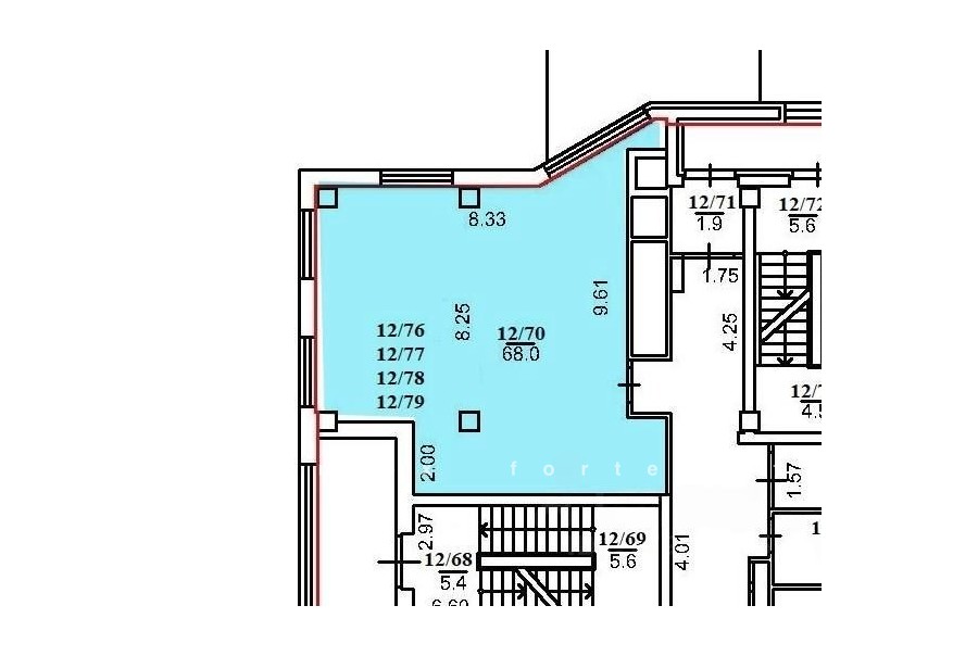
Площадь 68 м²
Состояние Готово к въезду
Планировка Открытая
Этаж 12

Описание

Преимущества
  • Класс B+
  • Пешком от метро
  • Кондиционирование и вентиляция
  • Свой паркинг
  • Несколько провайдеров связи
  • Развитая инфраструктура
Сдается в долгосрочную аренду помещение под офис класса B+ площадью 68 квадр. метров в бизнес-центре "Бородино".

Москва, ЦАО, Русаковская улица, 13

Удобная локация здания:
- Автомобиль: близость транспортных магистралей, таких как Третье Транспортное Кольцо, улица Стромынка, Русаковская улица и других.
- Возможность аренды парковочных мест.
- Ближайшее метро: от метро "Красносельская" всего 8 мин пешком

Офис класса B+:
- Помещение готово к въезду
- Вентиляция: Приточно-вытяжная вентиляция
- Кондиционирование: центральное
- Презентабельный центральный ресепшн
- Круглосуточная охрана и видеонаблюдение
- Развитая инфраструктура внутри здания


Если предложение предварительно Вам подходит:

1. Мы отправим Вам подробную презентацию с планировкой и фотографиями в течение 10 минут после звонка, чтобы Вы могли поделиться информацией с руководством или с коллегами.
2. Ответим на любые Ваши вопросы, готовы обсуждать любые предложения по коммерческим условиям аренды помещения.
3. Проводим показы ежедневно, договоримся на удобное для Вас время. Можем организовать виртуальный тур по офисному блоку.

Звоните нам в любое время. По будням мы сможем ответить на Ваши вопросы до 19:00. В выходные или вечернее время мы передадим Ваш контакт нашему менеджеру по аренде.

Коммерческие условия

Арендная плата 155 830 ₽
Ставка арендной платы 27 500 ₽ м²/год
Эксплуатационные расходы Включены в ставку
Налоги Упрощённая система налогообложения
Тип договора Прямая аренда
Срок договора от 11 месяцев
Размер платежей 1 месяц
Обеспечительный платеж 1 месяц
Статус Свободен

О бизнес-центре

Класс B+
Этажность 17
Лифты Есть
Общая площадь 30 755 м²
Год постройки 2006
Паркинг Подземный
Вентиляция приточно-вытяжная
Кондиционирование центральное
Телекоммуникации Интернет/Телефония

Расположение

Подробная презентацию по предложению

Собираете информацию? Получите подробную презентацию в удобном формате, чтобы обсудить вариант с коллегами или переслать руководству!

Похожие предложения в других зданиях

БЕЗ КОМИССИИ ID: 1376805 Рейтинг7.5 КлассB

Москва, Нижняя Красносельская улица, 40/12 к1

Красносельская → 788 м
~ 8 мин
Арендная плата в месяц 179 153 ₽ 27 900 ₽/м² в год С учётом НДС
Характеристики 77 м² 1 этаж Готово к въезду
Преимущества
  • Класс B
  • Пешком от метро
  • Кондиционирование и вентиляция
  • Свой паркинг

Предлагается в долгосрочную аренду помещение под офис класса B площадью 77 квадр. метров в бизнес-центре "Новь"... подробнее

Презентация по предложению

Собираете информацию? Получите подробную презентацию в удобном формате!

БЕЗ КОМИССИИ ID: 1376806 Рейтинг7.5 КлассB

Москва, Нижняя Красносельская улица, 40/12 к1

Красносельская → 788 м
~ 8 мин
Арендная плата в месяц 157 266 ₽ 28 200 ₽/м² в год С учётом НДС
Характеристики 67 м² 10 этаж Готово к въезду
Преимущества
  • Класс B
  • Пешком от метро
  • Кондиционирование и вентиляция
  • Свой паркинг

Предлагаем в аренду офис класса B площадью 67 квадр. метров в бизнес-центре "Новь"... подробнее

Презентация по предложению

Собираете информацию? Получите подробную презентацию в удобном формате!

БЕЗ КОМИССИИ ID: 1376957 Рейтинг7.7 КлассB

Москва, Колодезный переулок, 3 с26

Преображенская площадь → 991 м
~ 10 мин
Арендная плата в месяц 161 002 ₽ 24 500 ₽/м² в год С учётом НДС
Характеристики 79 м² 2 этаж Готово к въезду
Преимущества
  • Класс B
  • Пешком от метро
  • Кондиционирование и вентиляция
  • Свой паркинг

Предлагается в прямую аренду помещение под офис класса B общей площадью 79 квадратных метров в бизнес-центре "Весна"... подробнее

Презентация по предложению

Собираете информацию? Получите подробную презентацию в удобном формате!

Посмотреть все похожие предложения
Отнеситесь рационально к процессу поиска нового офиса!

Просто ответьте на 3 вопроса, и наши специалисты сами предложат оптимальные варианты под ваш бюджет

.