8.2
Смотреть все фото
БЕЗ КОМИССИИ ID: 1298672 Рейтинг8.0 КлассА
Бизнес-центр «BOSCH»

Аренда офиса 761 м²

город Химки, Вашутинское шоссе, дом 24

Ховрино → 15.38 км
~ 46 мин
Арендная плата в месяц 1 137 300 ₽ 17 900 ₽/м² в год С учётом НДС

Презентация по предложению

Собираете информацию? Получите подробную презентацию в удобном формате!

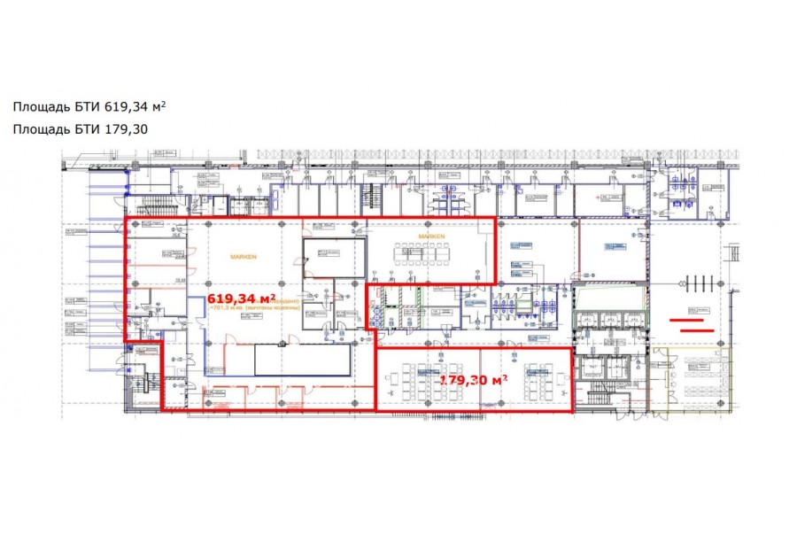
Площадь 761 м²
Состояние Готово к въезду
Планировка Смешанная
Этаж 1

Описание

Преимущества
  • Класс А
  • Кондиционирование и вентиляция
Сдается в долгосрочную прямую аренду офисный блок класса А площадью 761 квадратных метров в бизнес-центре "BOSCH".

город Химки, Подмосковье, Вашутинское шоссе, дом 24

Характеристики местоположения:
- Возможность аренды парковочных мест.
- Ближайшее метро: метро "Ховрино", далее городской транспорт до здания

Офис класса А:
- Помещение с отделкой, готово к въезду
- Вентиляция: Приточно-вытяжная вентиляция
- Кондиционирование: сплит-системы


Если предложение предварительно Вам подходит:

1. Мы отправим Вам подробную презентацию с планировкой и фотографиями в течение 10 минут после звонка, чтобы Вы могли поделиться информацией с руководством или с коллегами.
2. Ответим на любые Ваши вопросы, готовы обсуждать любые предложения по коммерческим условиям аренды помещения.
3. Покажем помещение в удобное для Вас время с менеджером в здании, при необходимости подготовим виртуальный тур.

Вы можете позвонить нам в любое время. Мы ответим на Ваши вопросы по будням до 19:00, а поздно вечером или в выходные зафиксируем Ваш контакт и перезвоним в рабочее время.

Коммерческие условия

Арендная плата 1 083 160 ₽
Ставка арендной платы 17 900 ₽ м²/год
Эксплуатационные расходы Включены в ставку
Налоги С учётом НДС
Тип договора Прямая аренда
Срок договора от 11 месяцев
Размер платежей 1 месяц
Обеспечительный платеж 2 месяц
Статус Сдан

О бизнес-центре

Класс А
Этажность 11
Лифты Есть
Общая площадь 9 400 м²
Год постройки 2013
Паркинг Наземный и подземный
Вентиляция приточно-вытяжная
Кондиционирование сплит-системы
Телекоммуникации Интернет/Телефония

Расположение

Подробная презентацию по предложению

Собираете информацию? Получите подробную презентацию в удобном формате, чтобы обсудить вариант с коллегами или переслать руководству!

Похожие предложения в других зданиях

БЕЗ КОМИССИИ ID: 1379774 Рейтинг8.5 КлассB+

Московская область, Химки, улица Панфилова, 19 с1

Планерная → 2.95 км
~ 16 мин
Арендная плата в месяц 1 358 225 ₽ 18 900 ₽/м² в год С учётом НДС
Характеристики 862 м² 9 - 16 этаж Готово к въезду
Преимущества
  • Класс B+
  • Кондиционирование и вентиляция
  • Свой паркинг

Сдается в долгосрочную прямую аренду помещение под офис класса B+ площадью 862 квадратных метров в бизнес-центре "GreenPoint"... подробнее

Презентация по предложению

Собираете информацию? Получите подробную презентацию в удобном формате!

БЕЗ КОМИССИИ ID: 1326314 Рейтинг8.5 КлассB+

Московская область, Химки, улица Панфилова, 19 с1

Планерная → 2.95 км
~ 16 мин
Арендная плата в месяц 1 203 712 ₽ 18 800 ₽/м² в год С учётом НДС
Характеристики 768 м² 16 этаж Готово к въезду
Преимущества
  • Класс B+
  • Кондиционирование и вентиляция
  • Свой паркинг

Сдается в долгосрочную прямую аренду офисный блок класса B+ площадью 768 квадр. метров в бизнес-центре "GreenPoint"... подробнее

Презентация по предложению

Собираете информацию? Получите подробную презентацию в удобном формате!

БЕЗ КОМИССИИ ID: 1297843 Рейтинг7.0 КлассB

Москва, Смольная улица, 22 с1

Речной вокзал → 1.08 км
~ 11 мин
Арендная плата в месяц 1 212 716 ₽ 17 200 ₽/м² в год С учётом НДС
Характеристики 845 м² 2 этаж Готово к въезду
Преимущества
  • Класс B
  • Пешком от метро
  • Кондиционирование и вентиляция

Сдается в долгосрочную аренду офисное помещение класса B площадью 845 кв.м в бизнес-центре... подробнее

Презентация по предложению

Собираете информацию? Получите подробную презентацию в удобном формате!

Посмотреть все похожие предложения
Отнеситесь рационально к процессу поиска нового офиса!

Просто ответьте на 3 вопроса, и наши специалисты сами предложат оптимальные варианты под ваш бюджет

.