8.2

Виртуальный тур

Смотреть все фото
БЕЗ КОМИССИИ ID: 1379293 Рейтинг8.9 КлассА
Бизнес-центр «Central Park Tower»

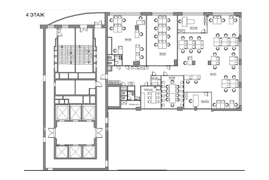
Аренда офиса 827 м²

Москва, Ленинский проспект, 15А

Шаболовская → 573 м
~ 6 мин
Арендная плата в месяц 4 792 500 ₽ 69 500 ₽/м² в год С учётом НДС

Презентация по предложению

Собираете информацию? Получите подробную презентацию в удобном формате!

Площадь 827 м²
Состояние Готово к въезду
Планировка Смешанная
Этаж 4

Описание

Преимущества
  • Класс А
  • Пешком от метро
  • Кондиционирование и вентиляция
  • Свой паркинг
  • Несколько провайдеров связи
  • Развитая инфраструктура
Предлагается в долгосрочную аренду офисное помещение класса А общей площадью 827 квадратных метров в бизнес-центре "Central Park Tower".

Москва, ЮАО, Ленинский проспект, 15А

Удобное расположение здания для всех видов транспорта:
- Автомобиль: близость транспортных магистралей, таких как Ленинский проспект и других.
- Возможность аренды парковочных мест.
- Ближайшее метро: от метро "Шаболовская" всего 6 мин пешком

Офис класса А:
- Помещение готово к въезду
- Вентиляция: Приточно-вытяжная вентиляция
- Кондиционирование: центральное
- Презентабельный центральный ресепшн
- Круглосуточная охрана и видеонаблюдение
- Развитая инфраструктура внутри здания

Возможность заключения контракта в соответствии с 44ФЗ по госзакупкам.

Если данное предложение подходит Вашему запросу:

1. Мы отправим Вам подробную презентацию с планировкой и фотографиями в течение 10 минут после звонка, чтобы Вы могли поделиться информацией с руководством или с коллегами.
2. Мы готовы ответить на любые Ваши вопросы о помещении и коммерческих условиях аренды.
3. Оперативно организуем просмотр помещения с менеджерами на объекте или подготовим виртуальный тур.

Вы можете позвонить нам в любое время. Мы ответим на Ваши вопросы по будням до 19:00, а поздно вечером или в выходные зафиксируем Ваш контакт и перезвоним в рабочее время.

Коммерческие условия

Арендная плата 4 792 470 ₽
Ставка арендной платы 43 800 ₽ м²/год
Эксплуатационные расходы 13 200 ₽
Налоги Без НДС
Тип договора Прямая аренда
Срок договора от 11 месяцев
Размер платежей 1 месяц
Обеспечительный платеж 2 месяц
Статус Свободен

О бизнес-центре

Класс А
Этажность 22
Лифты Есть
Общая площадь 33 000 м²
Год постройки 2006
Паркинг Подземный
Вентиляция приточно-вытяжная
Кондиционирование центральное
Телекоммуникации Интернет/Телефония

Расположение

Подробная презентацию по предложению

Собираете информацию? Получите подробную презентацию в удобном формате, чтобы обсудить вариант с коллегами или переслать руководству!

Похожие предложения в других зданиях

БЕЗ КОМИССИИ ID: 1161205 Рейтинг8.6 КлассB+

Москва, Малый Калужский переулок, 4 с1

Шаболовская → 764 м
~ 8 мин
Арендная плата в месяц 3 858 333 ₽ 50 000 ₽/м² в год С учётом НДС
Характеристики 926 м² 3 этаж Готово к въезду
Преимущества
  • Класс B+
  • Пешком от метро
  • Кондиционирование и вентиляция

Предлагается в долгосрочную прямую аренду офисный блок класса B+ площадью 926 кв. метров в бизнес-центре... подробнее

>

Виртуальный тур

Презентация по предложению

Собираете информацию? Получите подробную презентацию в удобном формате!

БЕЗ КОМИССИИ ID: 1128785 Рейтинг8.6 КлассB+

Москва, Малый Калужский переулок, 4 с1

Шаболовская → 764 м
~ 8 мин
Арендная плата в месяц 3 337 500 ₽ 50 000 ₽/м² в год С учётом НДС
Характеристики 801 м² 2 этаж Готово к въезду
Преимущества
  • Класс B+
  • Пешком от метро
  • Кондиционирование и вентиляция

Сдаем в долгосрочную аренду офис класса B+ площадью 801 кв. метров в бизнес-центре... подробнее

>

Виртуальный тур

Презентация по предложению

Собираете информацию? Получите подробную презентацию в удобном формате!

БЕЗ КОМИССИИ ID: 949310 Рейтинг7.3 КлассB

Москва, улица Льва Толстого, 5 с1

Парк культуры → 627 м
~ 6 мин
Арендная плата в месяц 2 677 500 ₽ 42 000 ₽/м² в год С учётом НДС
Характеристики 765 м² -1 - 2 этаж Готово к въезду
Преимущества
  • Класс B
  • Пешком от метро
  • Кондиционирование и вентиляция
  • Свой паркинг
  • Развитая инфраструктура

Сдается в прямую аренду офис класса B общей площадью 765 квадратных метров в недавно отреконструированном бизнес-центре "Хамовническая слобода"... подробнее

>

Виртуальный тур

Презентация по предложению

Собираете информацию? Получите подробную презентацию в удобном формате!

БЕЗ КОМИССИИ ID: 111483 Рейтинг8.5 КлассА

Москва, улица Тимура Фрунзе, 11 с16

Парк культуры → 382 м
~ 5 мин
Арендная плата в месяц 3 087 500 ₽ 39 000 ₽/м² в год С учётом НДС
Характеристики 950 м² 1 - 3 этаж Готово к въезду
Преимущества
  • Класс А
  • Пешком от метро
  • Кондиционирование и вентиляция

Сдаем в прямую аренду офисное помещение класса А общей площадью 950 кв.м в историческом недавно отреконструированном бизнес-центре... подробнее

Презентация по предложению

Собираете информацию? Получите подробную презентацию в удобном формате!

БЕЗ КОМИССИИ ID: 136094 Рейтинг8.5 КлассА

Москва, улица Тимура Фрунзе, 11 с16

Парк культуры → 382 м
~ 5 мин
Арендная плата в месяц 2 372 500 ₽ 39 000 ₽/м² в год С учётом НДС
Характеристики 730 м² 1 - 3 этаж Готово к въезду
Преимущества
  • Класс А
  • Пешком от метро
  • Кондиционирование и вентиляция

Собственник сдает в долгосрочную прямую аренду помещение под офис класса А площадью 730 квадратных метров в историческом недавно отреконструированном бизнес-центре... подробнее

Презентация по предложению

Собираете информацию? Получите подробную презентацию в удобном формате!

Посмотреть все похожие предложения
Отнеситесь рационально к процессу поиска нового офиса!

Просто ответьте на 3 вопроса, и наши специалисты сами предложат оптимальные варианты под ваш бюджет

.