8.2
Смотреть все фото
БЕЗ КОМИССИИ ID: 1323000 Рейтинг9.5 КлассB+
Бизнес-центр «Chalet»

Продажа офиса 109 м²

Москва, Пятницкая улица, 40

Новокузнецкая → 524 м
~ 5 мин
Стоимость 190.75 млн ₽ 1.75 млн ₽/м²

Презентация по предложению

Собираете информацию? Получите подробную презентацию в удобном формате!

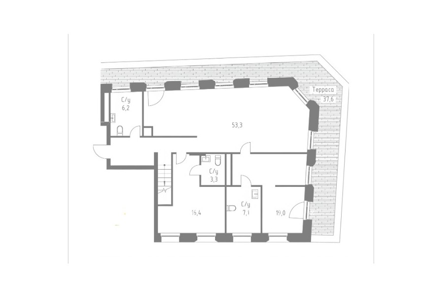
Площадь 109 м²
Состояние Под отделку
Планировка Открытая
Этаж 3

Описание

Преимущества
  • Класс B+
  • Пешком от метро
  • Кондиционирование и вентиляция
  • Свой паркинг
В продаже офисное помещение общей площадью 109 квадратных метров в бизнес-центре "Chalet".

Помещение можно адаптировать под любой бизнес благодаря функциональной планировке - идеальный баланс комфорта и экономической выгоды. Оптимальное решение для стабильного бизнеса или выгодных инвестиций.

Офис класса B+:
- Помещение без отделки
- Вентиляция: Приточно-вытяжная вентиляция
- Кондиционирование: центральное

О объекте:
Москва, ЦАО, Пятницкая улица, 40

Удобное расположение в пределах Садового кольца:
- Возможность аренды парковочных мест.
- Ближайшее метро: от метро "Новокузнецкая" всего 5 мин пешком



Что еще можно узнать о предложении:

1. Мы подготовили презентацию с информацией о помещении, фотографиями и планировкой, чтобы Вы могли поделиться ей с коллегами или руководством. Попросите об этом нашего менеджера по телефону в объявлении.
2. Задайте любые вопросы менеджеру по телефону, готовы обсуждать любые предложения по финансовым условиям договора продажи.

Звоните нам в любое время. По будням мы сможем ответить на Ваши вопросы до 19:00. В выходные или вечернее время мы передадим Ваш контакт нашему менеджеру.

О бизнес-центре

Класс B+
Этажность 4
Лифты Нет
Общая площадь 3 732 м²
Паркинг Подземный
Вентиляция приточно-вытяжная
Кондиционирование центральное
Телекоммуникации Интернет/Телефония

Расположение

Подробная презентацию по предложению

Собираете информацию? Получите подробную презентацию в удобном формате, чтобы обсудить вариант с коллегами или переслать руководству!

Похожие предложения в других зданиях

БЕЗ КОМИССИИ ID: 1327447 Рейтинг9.0 КлассА

Москва, 3-й Кадашевский переулок, 8

Третьяковская → 377 м
~ 4 мин
Стоимость 999 815 069 ₽ 617 600 ₽/м²
Характеристики 1 619 м² -1 - 4 этаж Готово к въезду
Преимущества
  • Класс А
  • Пешком от метро
  • Кондиционирование и вентиляция
  • Свой паркинг

Продается офисный блок общей площадью 1619 кв. метров в бизнес-центре "Сэптима". .. подробнее

Презентация по предложению

Собираете информацию? Получите подробную презентацию в удобном формате!

БЕЗ КОМИССИИ ID: 1299422 Рейтинг6.7 КлассB+

Москва, 2-й Казачий переулок, 3 с1

Полянка → 432 м
~ 4 мин
Стоимость 518 886 692 ₽ 483 100 ₽/м²
Характеристики 1 074 м² -1 - 3 этаж Готово к въезду
Преимущества
  • Класс B+
  • Пешком от метро
  • Кондиционирование и вентиляция

В продаже офис площадью 1074 квадратных метров в бизнес-центре. .. подробнее

Презентация по предложению

Собираете информацию? Получите подробную презентацию в удобном формате!

БЕЗ КОМИССИИ ID: 164763 Рейтинг7.8 КлассB

Москва, 3-й Монетчиковский переулок, 4 с1

Павелецкая → 643 м
~ 6 мин
Стоимость 1 000 000 106 ₽ 342 800 ₽/м²
Характеристики 2 917 м² -1 - 4 этаж Готово к въезду
Преимущества
  • Класс B
  • Пешком от метро
  • Кондиционирование и вентиляция
  • Свой паркинг
  • Несколько провайдеров связи

Продается офисный блок общей площадью 2917 кв.м в недавно отреконструированном бизнес-центре. .. подробнее

Презентация по предложению

Собираете информацию? Получите подробную презентацию в удобном формате!

БЕЗ КОМИССИИ ID: 1321257 Рейтинг6.3 КлассB

Москва, Садовническая улица, 41 с1

Новокузнецкая → 780 м
~ 8 мин
Стоимость 225 000 000 ₽ 250 000 ₽/м²
Характеристики 900 м² 1 - 3 этаж Под отделку
Преимущества
  • Класс B
  • Пешком от метро
  • Кондиционирование и вентиляция
  • Свой паркинг

В продаже офис площадью 900 кв.м в бизнес-центре. .. подробнее

Презентация по предложению

Собираете информацию? Получите подробную презентацию в удобном формате!

БЕЗ КОМИССИИ ID: 1266311 Рейтинг8.8 КлассА

Москва, Пречистенская набережная, 17-19

Кропоткинская → 840 м
~ 8 мин
Стоимость 499 999 920 ₽ 1.28 млн ₽/м²
Характеристики 392 м² 3 этаж Готово к въезду
Преимущества
  • Класс А
  • Пешком от метро
  • Кондиционирование и вентиляция
  • Свой паркинг
  • Развитая инфраструктура

Продается офисный блок площадью 392 квадратных метров в бизнес-центре "Баркли Плаза". .. подробнее

Презентация по предложению

Собираете информацию? Получите подробную презентацию в удобном формате!

Посмотреть все похожие предложения
Отнеситесь рационально к процессу поиска нового офиса!

Просто ответьте на 3 вопроса, и наши специалисты сами предложат оптимальные варианты под ваш бюджет