8.2
Смотреть все фото
БЕЗ КОМИССИИ ID: 1322997 Рейтинг9.5 КлассB+
Бизнес-центр «Chalet»

Продажа офиса 121 м²

Москва, Пятницкая улица, 40

Третьяковская → 497 м
~ 5 мин
Стоимость 211.75 млн ₽ 1.75 млн ₽/м²

Презентация по предложению

Собираете информацию? Получите подробную презентацию в удобном формате!

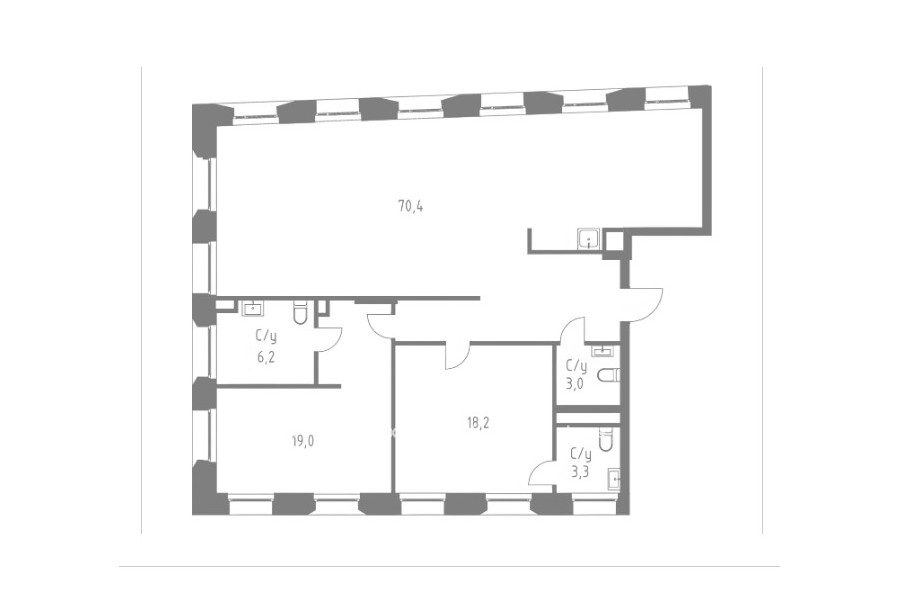
Площадь 121 м²
Состояние Под отделку
Планировка Открытая
Этаж 2

Описание

Преимущества
  • Класс B+
  • Пешком от метро
  • Кондиционирование и вентиляция
  • Свой паркинг
Продается офисное помещение площадью 121 кв. метров в бизнес-центре "Chalet".

Помещение можно адаптировать под любой бизнес благодаря функциональной планировке - идеальный баланс комфорта и экономической выгоды. Оптимальное решение для стабильного бизнеса или выгодных инвестиций.

Офис класса B+:
- Офис в состоянии shell & core
- Вентиляция: Приточно-вытяжная вентиляция
- Кондиционирование: центральное

О объекте:
Москва, ЦАО, Пятницкая улица, 40

Удобное расположение в пределах Садового кольца:
- Возможность аренды парковочных мест.
- Ближайшее метро: от метро "Третьяковская" всего 5 мин пешком



Что еще можно узнать о предложении:

1. Мы подготовили презентацию с информацией о помещении, фотографиями и планировкой, чтобы Вы могли поделиться ей с коллегами или руководством. Попросите об этом нашего менеджера по телефону в объявлении.
2. Задайте любые вопросы менеджеру по телефону, готовы обсуждать любые предложения по финансовым условиям договора продажи.

Вы можете позвонить нам в любое время. Мы ответим на Ваши вопросы по будням до 19:00, а поздно вечером или в выходные сможем передать Ваш контакт нашему менеджеру.

О бизнес-центре

Класс B+
Этажность 4
Лифты Нет
Общая площадь 3 732 м²
Паркинг Подземный
Вентиляция приточно-вытяжная
Кондиционирование центральное
Телекоммуникации Интернет/Телефония

Расположение

Подробная презентацию по предложению

Собираете информацию? Получите подробную презентацию в удобном формате, чтобы обсудить вариант с коллегами или переслать руководству!

Похожие предложения в других зданиях

БЕЗ КОМИССИИ ID: 1327447 Рейтинг9.0 КлассА

Москва, 3-й Кадашёвский переулок, 8

Третьяковская → 377 м
~ 4 мин
Стоимость 999 999 635 ₽ 617 700 ₽/м²
Характеристики 1 619 м² 1 - 4 этаж Готово к въезду
Преимущества
  • Класс А
  • Пешком от метро
  • Кондиционирование и вентиляция
  • Свой паркинг

Продается офисный блок общей площадью 1619 кв. метров в бизнес-центре "Сэптима". .. подробнее

Презентация по предложению

Собираете информацию? Получите подробную презентацию в удобном формате!

БЕЗ КОМИССИИ ID: 1379251 Рейтинг9.5 КлассА

Москва, Руновский переулок, 14

Новокузнецкая → 289 м
~ 3 мин
Стоимость 95 850 000 ₽ 1.35 млн ₽/м²
Характеристики 71 м² 3 этаж Под отделку
Преимущества
  • Класс А
  • Пешком от метро
  • Кондиционирование и вентиляция
  • Свой паркинг

Продается офисное помещение общей площадью 71 квадратных метров в бизнес-центре. .. подробнее

Презентация по предложению

Собираете информацию? Получите подробную презентацию в удобном формате!

БЕЗ КОМИССИИ ID: 1379250 Рейтинг9.5 КлассА

Москва, Руновский переулок, 14

Новокузнецкая → 289 м
~ 3 мин
Стоимость 95 000 000 ₽ 1.25 млн ₽/м²
Характеристики 76 м² 1 этаж Под отделку
Преимущества
  • Класс А
  • Пешком от метро
  • Кондиционирование и вентиляция
  • Свой паркинг

В продаже офисное помещение площадью 76 квадратных метров в бизнес-центре. .. подробнее

Презентация по предложению

Собираете информацию? Получите подробную презентацию в удобном формате!

БЕЗ КОМИССИИ ID: 1379249 Рейтинг9.5 КлассА

Москва, Руновский переулок, 14

Новокузнецкая → 289 м
~ 3 мин
Стоимость 82 500 000 ₽ 1.25 млн ₽/м²
Характеристики 66 м² 1 этаж Под отделку
Преимущества
  • Класс А
  • Пешком от метро
  • Кондиционирование и вентиляция
  • Свой паркинг

В продаже офис площадью 66 квадратных метров в бизнес-центре. .. подробнее

Презентация по предложению

Собираете информацию? Получите подробную презентацию в удобном формате!

БЕЗ КОМИССИИ ID: 1379252 Рейтинг9.5 КлассА

Москва, Руновский переулок, 14

Новокузнецкая → 289 м
~ 3 мин
Стоимость 76 950 000 ₽ 1.35 млн ₽/м²
Характеристики 57 м² 3 этаж Под отделку
Преимущества
  • Класс А
  • Пешком от метро
  • Кондиционирование и вентиляция
  • Свой паркинг

В продаже офис общей площадью 57 кв.м в бизнес-центре. .. подробнее

Презентация по предложению

Собираете информацию? Получите подробную презентацию в удобном формате!

Посмотреть все похожие предложения
Отнеситесь рационально к процессу поиска нового офиса!

Просто ответьте на 3 вопроса, и наши специалисты сами предложат оптимальные варианты под ваш бюджет

.