8.2
Смотреть все фото
БЕЗ КОМИССИИ ID: 1326321 Рейтинг9.5 КлассB+
Бизнес-центр «Chalet»

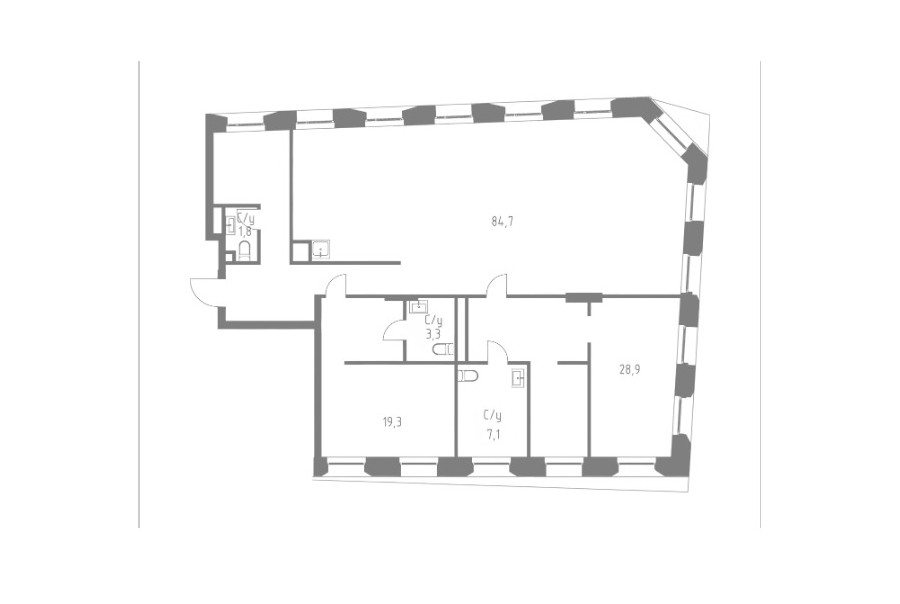
Продажа офиса 146 м²

Москва, Пятницкая улица, 40

Новокузнецкая → 524 м
~ 5 мин
Стоимость 255.5 млн ₽ 1.75 млн ₽/м²

Презентация по предложению

Собираете информацию? Получите подробную презентацию в удобном формате!

Площадь 146 м²
Состояние Под отделку
Планировка Открытая
Этаж 2

Описание

Преимущества
  • Класс B+
  • Пешком от метро
  • Кондиционирование и вентиляция
  • Свой паркинг
Продается офис общей площадью 146 кв. метров в бизнес-центре "Chalet".

Помещение можно адаптировать под любой бизнес благодаря функциональной планировке - идеальный баланс комфорта и экономической выгоды. Оптимальное решение для стабильного бизнеса или выгодных инвестиций.

Офис класса B+:
- Помещение без отделки
- Вентиляция: Приточно-вытяжная вентиляция
- Кондиционирование: центральное

О объекте:
Москва, ЦАО, Пятницкая улица, 40

Удобное расположение в пределах Садового кольца:
- Возможность аренды парковочных мест.
- Ближайшее метро: от метро "Новокузнецкая" всего 5 мин пешком



Если данное предложение подходит Вашему запросу:

1. Получите презентацию в течение 10 минут в Whatsapp или на почту с фотографиями и планировкой, чтобы обсудить данный вариант с коллегами или переслать руководству. Для этого позвоните по телефону, указанному в объявлении.
2. Мы готовы ответить на любые Ваши вопросы о помещении и коммерческих условиях продажи.

Звоните нам в любое время. По будням мы сможем ответить на Ваши вопросы до 19:00. В выходные или вечернее время мы передадим Ваш контакт нашему менеджеру.

О бизнес-центре

Класс B+
Этажность 4
Лифты Нет
Общая площадь 3 732 м²
Паркинг Подземный
Вентиляция приточно-вытяжная
Кондиционирование центральное
Телекоммуникации Интернет/Телефония

Расположение

Подробная презентацию по предложению

Собираете информацию? Получите подробную презентацию в удобном формате, чтобы обсудить вариант с коллегами или переслать руководству!

Похожие предложения в других зданиях

БЕЗ КОМИССИИ ID: 1327447 Рейтинг9.0 КлассА

Москва, 3-й Кадашевский переулок, 8

Третьяковская → 369 м
~ 4 мин
Стоимость 100 000 773 ₽ 61 800 ₽/м²
Характеристики 1 619 м² 1 - 4 этаж Готово к въезду
Преимущества
  • Класс А
  • Пешком от метро
  • Кондиционирование и вентиляция
  • Свой паркинг

Продается офисный блок общей площадью 1619 кв. метров в бизнес-центре "Сэптима". .. подробнее

Презентация по предложению

Собираете информацию? Получите подробную презентацию в удобном формате!

БЕЗ КОМИССИИ ID: 1299422 Рейтинг6.7 КлассB+

Москва, 2-й Казачий переулок, 3 с1

Полянка → 432 м
~ 4 мин
Стоимость 497 657 931 ₽ 463 400 ₽/м²
Характеристики 1 074 м² -1 - 3 этаж Готово к въезду
Преимущества
  • Класс B+
  • Пешком от метро
  • Кондиционирование и вентиляция

В продаже офис площадью 1074 квадратных метров в бизнес-центре. .. подробнее

Презентация по предложению

Собираете информацию? Получите подробную презентацию в удобном формате!

БЕЗ КОМИССИИ ID: 164763 Рейтинг7.8 КлассB

Москва, 3-й Монетчиковский переулок, 4 с1

Павелецкая → 643 м
~ 6 мин
Стоимость 1 050 000 403 ₽ 360 000 ₽/м²
Характеристики 2 917 м² -1 - 4 этаж Готово к въезду
Преимущества
  • Класс B
  • Пешком от метро
  • Кондиционирование и вентиляция
  • Свой паркинг
  • Несколько провайдеров связи

Продается офисный блок общей площадью 2917 кв.м в недавно отреконструированном бизнес-центре. .. подробнее

Презентация по предложению

Собираете информацию? Получите подробную презентацию в удобном формате!

БЕЗ КОМИССИИ ID: 1329726 Рейтинг7.3 КлассB+

Москва, Озерковская набережная, 12

Новокузнецкая → 674 м
~ 7 мин
Стоимость 600 000 000 ₽ 625 000 ₽/м²
Характеристики 960 м² -1 - 4 этаж Готово к въезду
Преимущества
  • Класс B+
  • Пешком от метро
  • Кондиционирование и вентиляция

Продается офисное помещение площадью 960 кв. метров в недавно отреконструированном бизнес-центре. .. подробнее

Презентация по предложению

Собираете информацию? Получите подробную презентацию в удобном формате!

БЕЗ КОМИССИИ ID: 1321257 Рейтинг6.3 КлассB

Москва, Садовническая улица, 41 с1

Новокузнецкая → 780 м
~ 8 мин
Стоимость 225 000 000 ₽ 250 000 ₽/м²
Характеристики 900 м² 1 - 3 этаж Под отделку
Преимущества
  • Класс B
  • Пешком от метро
  • Кондиционирование и вентиляция
  • Свой паркинг

Продается офисное помещение общей площадью 900 квадратных метров в бизнес-центре. .. подробнее

Презентация по предложению

Собираете информацию? Получите подробную презентацию в удобном формате!

Посмотреть все похожие предложения
Отнеситесь рационально к процессу поиска нового офиса!

Просто ответьте на 3 вопроса, и наши специалисты сами предложат оптимальные варианты под ваш бюджет