8.2
Смотреть все фото
БЕЗ КОМИССИИ ID: 1327095 Рейтинг8.2 КлассB
Бизнес-центр «Чаплыгина 9 с1»

Аренда офиса 323 м²

Москва, улица Чаплыгина, 9 с1

Чистые пруды → 819 м
~ 8 мин
Арендная плата в месяц 1 465 500 ₽ 54 400 ₽/м² в год Упрощённая система налогообложения

Презентация по предложению

Собираете информацию? Получите подробную презентацию в удобном формате!

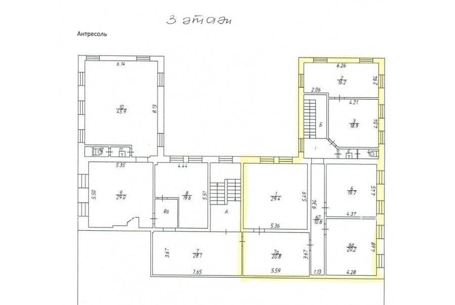
Площадь 323 м²
Состояние Готово к въезду
Планировка Смешанная
Этаж 2 - 3

Описание

Преимущества
  • Класс B
  • Пешком от метро
  • Кондиционирование и вентиляция
  • Свой паркинг
Предлагается в долгосрочную аренду офисное помещение класса B общей площадью 323 кв.м в бизнес-центре.

Москва, ЦАО, улица Чаплыгина, 9 с1

Удобное расположение в пределах Садового кольца:
- Возможность аренды парковочных мест.
- Ближайшее метро: от метро "Чистые пруды" всего 8 мин пешком

Офис класса B:
- Помещение с отделкой, готово к въезду
- Вентиляция: Приточно-вытяжная вентиляция
- Кондиционирование: центральное

Возможность заключения контракта в соответствии с 44ФЗ по госзакупкам.

Что еще можно узнать о предложении:

1. Получите презентацию в течение 10 минут в Whatsapp или на почту с фотографиями и планировкой, чтобы обсудить данный вариант с коллегами или переслать руководству. Для этого позвоните по телефону, указанному в объявлении.
2. Задайте любые вопросы менеджеру по телефону, готовы обсуждать любые предложения по финансовым условиям договора аренды.
3. Проводим показы ежедневно, договоримся на удобное для Вас время. Можем организовать виртуальный тур по офисному блоку.

Вы можете позвонить нам в любое время. Мы ответим на Ваши вопросы по будням до 19:00, а поздно вечером или в выходные зафиксируем Ваш контакт и перезвоним в рабочее время.

Коммерческие условия

Арендная плата 1 465 510 ₽
Ставка арендной платы 54 400 ₽ м²/год
Эксплуатационные расходы Включены в ставку
Налоги Упрощённая система налогообложения
Тип договора Прямая аренда
Срок договора Долгосрочный
Размер платежей 1 месяц
Обеспечительный платеж 2 месяц
Статус Свободен

О бизнес-центре

Класс B
Этажность 4
Лифты Нет
Общая площадь 1 834 м²
Год постройки 2010
Паркинг Наземный
Вентиляция приточно-вытяжная
Кондиционирование центральное
Телекоммуникации Интернет/Телефония

Расположение

Подробная презентацию по предложению

Собираете информацию? Получите подробную презентацию в удобном формате, чтобы обсудить вариант с коллегами или переслать руководству!

Похожие предложения в других зданиях

БЕЗ КОМИССИИ ID: 1375142 Рейтинг9.3 КлассА

Москва, улица Земляной Вал, 9

Курская → 447 м
~ 4 мин
Арендная плата в месяц 1 793 400 ₽ 76 900 ₽/м² в год С учётом НДС
Характеристики 280 м² 8 этаж Готово к въезду
Преимущества
  • Класс А
  • Пешком от метро
  • Кондиционирование и вентиляция
  • Свой паркинг
  • Развитая инфраструктура

Предлагаем в прямую аренду офисный блок класса А площадью 280 кв. метров в бизнес-центре "СитиДел"... подробнее

>

Виртуальный тур

Презентация по предложению

Собираете информацию? Получите подробную презентацию в удобном формате!

БЕЗ КОМИССИИ ID: 282496 Рейтинг6.9 КлассB

Москва, Кривоколенный переулок, 12 с1

Тургеневская → 548 м
~ 5 мин
Арендная плата в месяц 1 303 500 ₽ 49 500 ₽/м² в год С учётом НДС
Характеристики 316 м² 3 этаж Готово к въезду
Преимущества
  • Класс B
  • Пешком от метро
  • Кондиционирование и вентиляция
  • Свой паркинг

Сдается в прямую аренду офис класса B общей площадью 316 кв. метров в бизнес-центре... подробнее

>

Виртуальный тур

Презентация по предложению

Собираете информацию? Получите подробную презентацию в удобном формате!

БЕЗ КОМИССИИ ID: 303665 Рейтинг8.7 КлассА

Москва, Тургеневская площадь, 2

Сретенский бульвар → 73 м
~ 1 мин
Арендная плата в месяц 1 296 000 ₽ 48 000 ₽/м² в год С учётом НДС
Характеристики 324 м² 5 этаж Готово к въезду
Преимущества
  • Класс А
  • Пешком от метро
  • Кондиционирование и вентиляция
  • Свой паркинг
  • Развитая инфраструктура

Предлагаем в долгосрочную прямую аренду помещение под офис класса А общей площадью 324 квадр. метров в историческом бизнес-центре... подробнее

>

Виртуальный тур

Презентация по предложению

Собираете информацию? Получите подробную презентацию в удобном формате!

БЕЗ КОМИССИИ ID: 1269835 Рейтинг8.3 КлассB

Москва, Новорязанская улица, 8А с2

Комсомольская → 570 м
~ 6 мин
Арендная плата в месяц 1 341 990 ₽ 51 600 ₽/м² в год С учётом НДС
Характеристики 312 м² 2 этаж Готово к въезду
Преимущества
  • Класс B
  • Пешком от метро
  • Кондиционирование и вентиляция
  • Свой паркинг

Сдаем в долгосрочную аренду помещение под офис класса B площадью 312 квадратных метров в бизнес-центре "Новорязанская 8А c2"... подробнее

Презентация по предложению

Собираете информацию? Получите подробную презентацию в удобном формате!

БЕЗ КОМИССИИ ID: 1378897 Рейтинг8.1 КлассB+

Москва, Малый Ивановский переулок, 7-9 с1

Китай-город → 486 м
~ 5 мин
Арендная плата в месяц 1 548 750 ₽ 59 000 ₽/м² в год С учётом НДС
Характеристики 315 м² 2 этаж Готово к въезду
Преимущества
  • Класс B+
  • Пешком от метро
  • Кондиционирование и вентиляция
  • Свой паркинг
  • Несколько провайдеров связи

Предлагаем в прямую аренду офисный блок класса B+ общей площадью 315 квадратных метров в бизнес-центре... подробнее

Презентация по предложению

Собираете информацию? Получите подробную презентацию в удобном формате!

Посмотреть все похожие предложения
Отнеситесь рационально к процессу поиска нового офиса!

Просто ответьте на 3 вопроса, и наши специалисты сами предложат оптимальные варианты под ваш бюджет

.