8.2

Виртуальный тур

Смотреть все фото
БЕЗ КОМИССИИ ID: 1303075 Рейтинг8.4 КлассА
Бизнес-центр «Чайка Плаза 4»

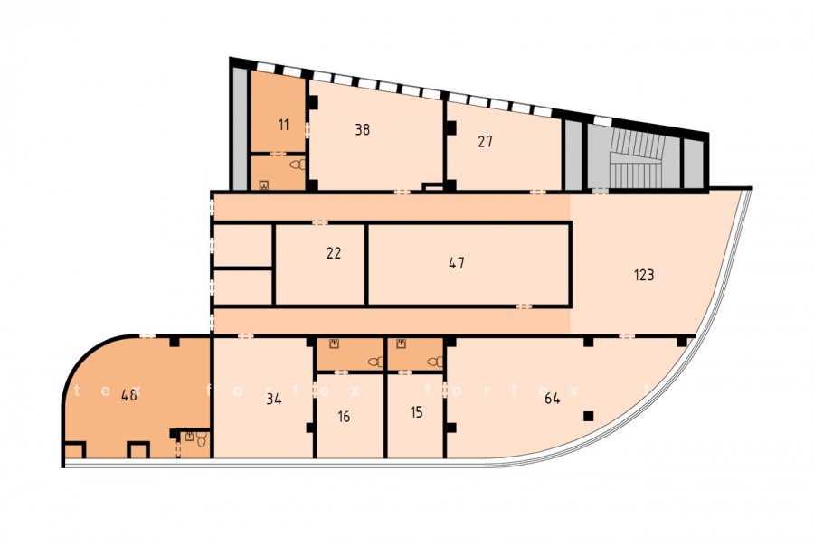
Аренда офиса 650 м²

Москва, улица Щепкина, 42 с2А

Проспект Мира → 448 м
~ 4 мин
Арендная плата в месяц 1 595 900 ₽ 29 500 ₽/м² в год С учётом НДС

Презентация по предложению

Собираете информацию? Получите подробную презентацию в удобном формате!

Площадь 650 м²
Состояние Готово к въезду
Планировка Смешанная
Этаж 8

Описание

Преимущества
  • Класс А
  • Пешком от метро
  • Кондиционирование и вентиляция
  • Свой паркинг
  • Несколько провайдеров связи
  • Развитая инфраструктура
Сдается в долгосрочную аренду помещение под офис класса А площадью 650 квадр. метров в бизнес-центре "Чайка Плаза 4".

Москва, ЦАО, улица Щепкина, 42 с2а

Удобное расположение здания для всех видов транспорта:
- Автомобиль: близость транспортных магистралей, таких как Проспект Мира и других.
- Возможность аренды парковочных мест.
- Ближайшее метро: от метро "Проспект Мира" всего 4 мин пешком

Офис класса А:
- Помещение с отделкой, готово к въезду
- Вентиляция: Приточно-вытяжная вентиляция
- Кондиционирование: центральное
- Круглосуточная охрана и видеонаблюдение
- Развитая инфраструктура внутри здания

Возможность заключения контракта в соответствии с 44ФЗ по госзакупкам.

Если данное предложение подходит Вашему запросу:

1. Мы отправим Вам подробную презентацию с планировкой и фотографиями в течение 10 минут после звонка, чтобы Вы могли поделиться информацией с руководством или с коллегами.
2. Ответим на любые Ваши вопросы, готовы обсуждать любые предложения по коммерческим условиям аренды помещения.
3.

Звоните нам в любое время. По будням мы сможем ответить на Ваши вопросы до 19:00. В выходные или вечернее время мы передадим Ваш контакт нашему менеджеру по аренде.

Коммерческие условия

Арендная плата 1 519 920 ₽
Ставка арендной платы 29 500 ₽ м²/год
Эксплуатационные расходы Включены в ставку
Налоги С учётом НДС
Тип договора Прямая аренда
Срок договора от 11 месяцев
Размер платежей 2 месяц
Обеспечительный платеж 2 месяц
Статус Сдан

О бизнес-центре

Класс А
Этажность 8
Лифты Есть
Общая площадь 8 269 м²
Год постройки 1999
Паркинг Подземный
Вентиляция приточно-вытяжная
Кондиционирование центральное
Телекоммуникации Интернет/Телефония

Расположение

Подробная презентацию по предложению

Собираете информацию? Получите подробную презентацию в удобном формате, чтобы обсудить вариант с коллегами или переслать руководству!

Похожие предложения в других зданиях

БЕЗ КОМИССИИ ID: 17560 Рейтинг7.6 КлассB

Москва, улица Щепкина, 49

Проспект Мира → 465 м
~ 5 мин
Арендная плата в месяц 1 372 817 ₽ 28 700 ₽/м² в год С учётом НДС
Характеристики 574 м² 2 этаж Готово к въезду
Преимущества
  • Класс B
  • Пешком от метро
  • Кондиционирование и вентиляция
  • Свой паркинг

Сдаем в прямую аренду помещение под офис класса B площадью 574 кв. метров в историческом бизнес-центре... подробнее

Презентация по предложению

Собираете информацию? Получите подробную презентацию в удобном формате!

БЕЗ КОМИССИИ ID: 8590 Рейтинг8.4 КлассB+

Москва, улица Щепкина, 40 с1

Проспект Мира → 361 м
~ 4 мин
Арендная плата в месяц 1 310 000 ₽ 26 200 ₽/м² в год С учётом НДС
Характеристики 600 м² 1 этаж Готово к въезду
Преимущества
  • Класс B+
  • Пешком от метро
  • Кондиционирование и вентиляция
  • Свой паркинг

Предлагаем в долгосрочную прямую аренду офисный блок класса B+ площадью 600 кв. метров в бизнес-центре... подробнее

Презентация по предложению

Собираете информацию? Получите подробную презентацию в удобном формате!

БЕЗ КОМИССИИ ID: 238811 Рейтинг7.3 КлассB

Москва, улица Гиляровского, 39 с1

Проспект Мира → 242 м
~ 2 мин
Арендная плата в месяц 1 248 000 ₽ 26 000 ₽/м² в год С учётом НДС
Характеристики 576 м² 3 этаж Готово к въезду
Преимущества
  • Класс B
  • Пешком от метро
  • Кондиционирование и вентиляция
  • Свой паркинг
  • Развитая инфраструктура

Предлагается в прямую аренду офисное помещение класса B площадью 576 кв. метров в историческом бизнес-центре... подробнее

Презентация по предложению

Собираете информацию? Получите подробную презентацию в удобном формате!

БЕЗ КОМИССИИ ID: 1214884 Рейтинг8.3 КлассА

Москва, улица Щепкина, 33

Проспект Мира → 500 м
~ 5 мин
Арендная плата в месяц 1 145 833 ₽ 25 000 ₽/м² в год С учётом НДС
Характеристики 550 м² 6 этаж Готово к въезду
Преимущества
  • Класс А
  • Пешком от метро
  • Кондиционирование и вентиляция
  • Свой паркинг
  • Несколько провайдеров связи
  • Развитая инфраструктура

Собственник сдает в прямую аренду офисное помещение класса А площадью 550 квадратных метров в бизнес-центре "Этмиа"... подробнее

>

Виртуальный тур

Презентация по предложению

Собираете информацию? Получите подробную презентацию в удобном формате!

БЕЗ КОМИССИИ ID: 11412 Рейтинг9.5 КлассB

Москва, улица Щепкина, 32 с1

Проспект Мира → 494 м
~ 5 мин
Арендная плата в месяц 1 604 667 ₽ 33 200 ₽/м² в год С учётом НДС
Характеристики 580 м² 1 этаж Готово к въезду
Преимущества
  • Класс B
  • Пешком от метро
  • Кондиционирование и вентиляция
  • Свой паркинг

Предлагаем в долгосрочную аренду офисное помещение класса B общей площадью 580 квадр. метров в бизнес-центре... подробнее

Презентация по предложению

Собираете информацию? Получите подробную презентацию в удобном формате!

Посмотреть все похожие предложения
Отнеситесь рационально к процессу поиска нового офиса!

Просто ответьте на 3 вопроса, и наши специалисты сами предложат оптимальные варианты под ваш бюджет

.