8.2
Смотреть все фото
БЕЗ КОМИССИИ ID: 240075 Рейтинг5.1 КлассB

Москва, Чертановская улица, 23

Пражская → 1.14 км
~ 11 мин
Арендная плата в месяц 674 700 ₽ 11 000 ₽/м² в год С учётом НДС

Презентация по предложению

Собираете информацию? Получите подробную презентацию в удобном формате!

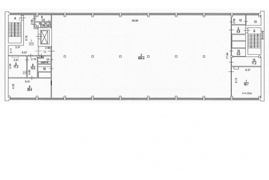
Площадь 736 м²
Состояние Под отделку
Планировка Открытая
Этаж 4

Описание

Преимущества
  • Класс B
  • Пешком от метро
  • Кондиционирование и вентиляция
Предлагаем в прямую аренду помещение под офис класса B общей площадью 736 кв. метров в бизнес-центре.

Москва, ЮАО, Чертановская улица, 23

Удобная локация здания:
- Автомобиль: близость транспортных магистралей, таких как Варшавское шоссе и других.
- Ближайшее метро: от метро "Пражская" всего 14 мин пешком

Офис класса B:
- Офис без отделки
- Кондиционирование: центральное


Что еще можно узнать о предложении:

1. Мы отправим Вам подробную презентацию с планировкой и фотографиями в течение 10 минут после звонка, чтобы Вы могли поделиться информацией с руководством или с коллегами.
2. Задайте любые вопросы менеджеру по телефону, готовы обсуждать любые предложения по финансовым условиям договора аренды.
3. Проводим показы ежедневно, договоримся на удобное для Вас время. Можем организовать виртуальный тур по офисному блоку.

Вы можете позвонить нам в любое время. Мы ответим на Ваши вопросы по будням до 19:00, а поздно вечером или в выходные сможем передать Ваш контакт нашему менеджеру.

Коммерческие условия

Арендная плата 674 670 ₽
Ставка арендной платы 11 000 ₽ м²/год
Эксплуатационные расходы Включены в ставку
Налоги С учётом НДС
Тип договора Прямая аренда
Срок договора от 11 месяцев
Размер платежей 1 месяц
Обеспечительный платеж 1 месяц
Статус Сдан

О бизнес-центре

Класс B
Этажность 6
Лифты Нет
Общая площадь 7 000 м²
Год постройки 1985
Паркинг Стихийный
Вентиляция естественная
Кондиционирование центральное
Телекоммуникации Интернет/Телефония

Расположение

Подробная презентацию по предложению

Собираете информацию? Получите подробную презентацию в удобном формате, чтобы обсудить вариант с коллегами или переслать руководству!

Похожие предложения в других зданиях

БЕЗ КОМИССИИ ID: 172548 Рейтинг7.9 КлассB+

Москва, Варшавское шоссе, 133

Улица Академика Янгеля → 1.04 км
~ 10 мин
Арендная плата в месяц 833 333 ₽ 12 500 ₽/м² в год С учётом НДС
Характеристики 800 м² 2 этаж Готово к въезду
Преимущества
  • Класс B+
  • Пешком от метро
  • Кондиционирование и вентиляция
  • Свой паркинг

Предлагается в долгосрочную прямую аренду офисный блок класса B+ площадью 800 кв.м в бизнес-центре... подробнее

Презентация по предложению

Собираете информацию? Получите подробную презентацию в удобном формате!

БЕЗ КОМИССИИ ID: 273702 Рейтинг4.5 КлассB

Москва, 1-й Варшавский проезд, 1А с3

Варшавская → 639 м
~ 6 мин
Арендная плата в месяц 583 333 ₽ 10 000 ₽/м² в год С учётом НДС
Характеристики 700 м² 1 этаж Готово к въезду
Преимущества
  • Класс B
  • Пешком от метро
  • Развитая инфраструктура

Предлагаем в долгосрочную аренду офис класса B общей площадью 700 квадр. метров в бизнес-центре... подробнее

Презентация по предложению

Собираете информацию? Получите подробную презентацию в удобном формате!

БЕЗ КОМИССИИ ID: 1295486 Рейтинг5.5 КлассB

Москва, Харьковский проезд, 2

Пражская → 4.23 км
~ 28 мин
Арендная плата в месяц 726 660 ₽ 11 900 ₽/м² в год С учётом НДС
Характеристики 734 м² 3 этаж Готово к въезду
Преимущества
  • Класс B
  • Кондиционирование и вентиляция
  • Свой паркинг

Предлагаем в долгосрочную аренду офисный блок класса B площадью 734 квадратных метров в бизнес-центре... подробнее

Презентация по предложению

Собираете информацию? Получите подробную презентацию в удобном формате!

БЕЗ КОМИССИИ ID: 74375 Рейтинг6.3 КлассB

Москва, 2-й Котляковский переулок, 1 с43

Варшавская → 1.21 км
~ 12 мин
Арендная плата в месяц 687 500 ₽ 11 000 ₽/м² в год С учётом НДС
Характеристики 750 м² 2 этаж Готово к въезду
Преимущества
  • Класс B
  • Пешком от метро
  • Кондиционирование и вентиляция
  • Свой паркинг

Предлагаем в долгосрочную прямую аренду помещение под офис класса B площадью 750 квадр. метров в бизнес-центре... подробнее

Презентация по предложению

Собираете информацию? Получите подробную презентацию в удобном формате!

БЕЗ КОМИССИИ ID: 1280450 Рейтинг3.8 КлассB

Москва, Каширский проезд, 5

Варшавская → 940 м
~ 9 мин
Арендная плата в месяц 645 161 ₽ 12 000 ₽/м² в год С учётом НДС
Характеристики 645 м² 3 - 4 этаж Готово к въезду
Преимущества
  • Класс B
  • Пешком от метро
  • Кондиционирование и вентиляция
  • Несколько провайдеров связи
  • Развитая инфраструктура

Предлагается в долгосрочную прямую аренду офисный блок класса B площадью 645 квадр. метров в историческом бизнес-центре... подробнее

Презентация по предложению

Собираете информацию? Получите подробную презентацию в удобном формате!

Посмотреть все похожие предложения
Отнеситесь рационально к процессу поиска нового офиса!

Просто ответьте на 3 вопроса, и наши специалисты сами предложат оптимальные варианты под ваш бюджет

.