8.2
Смотреть все фото
БЕЗ КОМИССИИ ID: 1329127 Рейтинг9.3 КлассА
Бизнес-центр «Четыре Ветра»

Аренда офиса 937 м²

Москва, 1-я Тверская-Ямская улица, 21

Белорусская → 332 м
~ 4 мин
Арендная плата в месяц 6 763 600 ₽ 86 600 ₽/м² в год С учётом НДС

Презентация по предложению

Собираете информацию? Получите подробную презентацию в удобном формате!

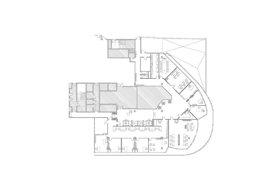
Площадь 937 м²
Состояние Готово к въезду
Планировка Смешанная
Этаж 9

Описание

Преимущества
  • Класс А
  • Пешком от метро
  • Кондиционирование и вентиляция
  • Свой паркинг
  • Несколько провайдеров связи
  • Развитая инфраструктура
Сдается в долгосрочную аренду помещение под офис класса А площадью 937 кв. метров в бизнес-центре "Четыре Ветра".

Москва, ЦАО, 1-я Тверская-Ямская улица, 21

Удобное расположение здания для всех видов транспорта:
- Автомобиль: близость транспортных магистралей, таких как Ленинградский проспект, Садовое Кольцо и других.
- Возможность аренды парковочных мест.
- Ближайшее метро: от метро "Белорусская" всего 3 мин пешком

Офис класса А:
- Помещение готово к въезду
- Вентиляция: Приточно-вытяжная вентиляция
- Кондиционирование: центральное
- Презентабельный центральный ресепшн
- Круглосуточная охрана и видеонаблюдение
- Развитая инфраструктура внутри здания

Возможность заключения контракта в соответствии с 44ФЗ по госзакупкам.

Что еще можно узнать о предложении:

1. Мы отправим Вам подробную презентацию с планировкой и фотографиями в течение 10 минут после звонка, чтобы Вы могли поделиться информацией с руководством или с коллегами.
2. Мы готовы ответить на любые Ваши вопросы о помещении и коммерческих условиях аренды.
3. Оперативно организуем просмотр помещения, договоримся на любое удобное время, подготовим виртуальный тур.

Звоните нам в любое время. По будням мы сможем ответить на Ваши вопросы до 19:00. В выходные или вечернее время мы передадим Ваш контакт нашему менеджеру по аренде.

Коммерческие условия

Арендная плата 6 763 580 ₽
Ставка арендной платы 86 600 ₽ м²/год
Эксплуатационные расходы Включены в ставку
Налоги С учётом НДС
Тип договора Прямая аренда
Срок договора от 11 месяцев
Размер платежей 3 месяц
Обеспечительный платеж 3 месяц
Статус Сдан

О бизнес-центре

Класс А
Этажность 10
Лифты Есть
Общая площадь 27 800 м²
Год постройки 2006
Паркинг Подземный
Вентиляция приточно-вытяжная
Кондиционирование центральное
Телекоммуникации Интернет/Телефония

Расположение

Подробная презентацию по предложению

Собираете информацию? Получите подробную презентацию в удобном формате, чтобы обсудить вариант с коллегами или переслать руководству!

Похожие предложения в других зданиях

БЕЗ КОМИССИИ ID: 1317132 Рейтинг9.5 КлассА

Москва, Лесная улица, 7

Белорусская → 238 м
~ 2 мин
Арендная плата в месяц 7 954 400 ₽ 99 400 ₽/м² в год С учётом НДС
Характеристики 960 м² 7 этаж Готово к въезду
Преимущества
  • Класс А
  • Пешком от метро
  • Кондиционирование и вентиляция
  • Свой паркинг
  • Развитая инфраструктура

Предлагаем в прямую аренду офисный блок класса А общей площадью 960 кв.м в бизнес-центре "Белые сады"... подробнее

Презентация по предложению

Собираете информацию? Получите подробную презентацию в удобном формате!

БЕЗ КОМИССИИ ID: 188761 Рейтинг8.9 КлассА

Москва, Большая Грузинская улица, 30А с1

Краснопресненская → 882 м
~ 9 мин
Арендная плата в месяц 7 770 667 ₽ 99 200 ₽/м² в год С учётом НДС
Характеристики 940 м² 4 этаж Отделка под арендатора
Преимущества
  • Класс А
  • Пешком от метро
  • Кондиционирование и вентиляция
  • Свой паркинг

Предлагается в долгосрочную аренду офисное помещение класса А общей площадью 940 квадр. метров в недавно отреконструированном бизнес-центре "Грузинка 30"... подробнее

Презентация по предложению

Собираете информацию? Получите подробную презентацию в удобном формате!

БЕЗ КОМИССИИ ID: 1327261 Рейтинг8.1 КлассА

Москва, Садовая-Кудринская улица, 32 с1

Маяковская → 581 м
~ 6 мин
Арендная плата в месяц 6 389 167 ₽ 85 000 ₽/м² в год С учётом НДС
Характеристики 902 м² 5 этаж Готово к въезду
Преимущества
  • Класс А
  • Пешком от метро
  • Кондиционирование и вентиляция
  • Свой паркинг
  • Развитая инфраструктура

Предлагаем в долгосрочную прямую аренду офис класса А общей площадью 902 кв.м в бизнес-центре "Бронная Плаза"... подробнее

Презентация по предложению

Собираете информацию? Получите подробную презентацию в удобном формате!

БЕЗ КОМИССИИ ID: 118690 Рейтинг7.5 КлассА

Москва, Оружейный переулок, 41

Маяковская → 807 м
~ 8 мин
Арендная плата в месяц 6 657 200 ₽ 74 800 ₽/м² в год С учётом НДС
Характеристики 1 068 м² 13 этаж Готово к въезду
Преимущества
  • Класс А
  • Пешком от метро
  • Кондиционирование и вентиляция

Собственник сдает в долгосрочную прямую аренду помещение под офис класса А площадью 1068 квадратных метров в бизнес-центре... подробнее

Презентация по предложению

Собираете информацию? Получите подробную презентацию в удобном формате!

БЕЗ КОМИССИИ ID: 3802 Рейтинг8.2 КлассА

Москва, улица Малая Дмитровка, 20

Маяковская → 686 м
~ 7 мин
Арендная плата в месяц 6 300 000 ₽ 80 000 ₽/м² в год С учётом НДС
Характеристики 945 м² 3 этаж Под отделку
Преимущества
  • Класс А
  • Пешком от метро
  • Кондиционирование и вентиляция
  • Свой паркинг
  • Развитая инфраструктура

Предлагаем в прямую аренду офисное помещение класса А площадью 945 квадратных метров в бизнес-центре "Школа журналистов"... подробнее

Презентация по предложению

Собираете информацию? Получите подробную презентацию в удобном формате!

Посмотреть все похожие предложения
Отнеситесь рационально к процессу поиска нового офиса!

Просто ответьте на 3 вопроса, и наши специалисты сами предложат оптимальные варианты под ваш бюджет

.