8.2
Смотреть все фото
БЕЗ КОМИССИИ ID: 1326361 Рейтинг8.3 КлассB+

Москва, Варшавское шоссе, 9

Тульская → 959 м
~ 10 мин
Арендная плата в месяц 9 859 100 ₽ 39 200 ₽/м² в год С учётом НДС

Презентация по предложению

Собираете информацию? Получите подробную презентацию в удобном формате!

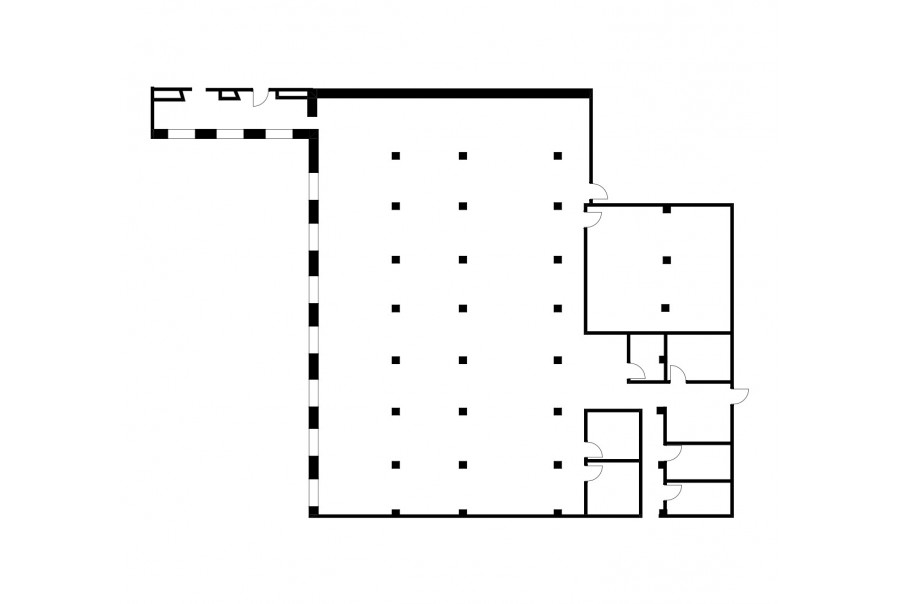
Площадь 3 016 м²
Состояние Готово к въезду
Планировка Смешанная
Этаж 6

Описание

Преимущества
  • Класс B+
  • Пешком от метро
  • Кондиционирование и вентиляция
  • Свой паркинг
  • Развитая инфраструктура
Сдается в долгосрочную аренду офисный блок класса B+ площадью 3016 квадр. метров в историческом недавно отреконструированном бизнес-центре "Даниловская Мануфактура".

Москва, ЮАО, Варшавское шоссе, 9

Удобная локация здания:
- Автомобиль: близость транспортных магистралей, таких как Севастопольский проспект, Варшавское шоссе, Третье Транспортное Кольцо и других.
- Возможность аренды парковочных мест.
- Ближайшее метро: от метро "Тульская" всего 10 мин пешком

Офис класса B+:
- Помещение с отделкой, готово к въезду
- Вентиляция: Приточно-вытяжная вентиляция
- Кондиционирование: сплит-системы
- Презентабельный центральный ресепшн
- Круглосуточная охрана и видеонаблюдение
- Развитая инфраструктура внутри здания

Возможность заключения контракта в соответствии с 44ФЗ по госзакупкам.

Что еще можно узнать о предложении:

1. Получите презентацию в течение 10 минут в Whatsapp или на почту с фотографиями и планировкой, чтобы обсудить данный вариант с коллегами или переслать руководству. Для этого позвоните по телефону, указанному в объявлении.
2. Ответим на любые Ваши вопросы, готовы обсуждать любые предложения по коммерческим условиям аренды помещения.
3. Проводим показы ежедневно, договоримся на удобное для Вас время. Можем организовать виртуальный тур по офисному блоку.

Вы можете позвонить нам в любое время. Мы ответим на Ваши вопросы по будням до 19:00, а поздно вечером или в выходные зафиксируем Ваш контакт и перезвоним в рабочее время.

Коммерческие условия

Арендная плата 9 859 050 ₽
Ставка арендной платы 33 200 ₽ м²/год
Эксплуатационные расходы 6 000 ₽
Налоги С учётом НДС
Тип договора Прямая аренда
Срок договора от 11 месяцев
Размер платежей 1 месяц
Обеспечительный платеж 2 месяц
Статус Свободен

О бизнес-центре

Класс B+
Этажность 6
Лифты Есть
Общая площадь 106 000 м²
Год постройки 1867
Паркинг Наземный
Вентиляция приточно-вытяжная
Кондиционирование сплит-системы
Телекоммуникации Интернет/Телефония

Расположение

Подробная презентацию по предложению

Собираете информацию? Получите подробную презентацию в удобном формате, чтобы обсудить вариант с коллегами или переслать руководству!

Похожие предложения в других зданиях

БЕЗ КОМИССИИ ID: 173350 Рейтинг8.5 КлассB+

Москва, Новоданиловская набережная, вл6с

Тульская → 1.44 км
~ 14 мин
Арендная плата в месяц 8 715 000 ₽ 36 000 ₽/м² в год С учётом НДС
Характеристики 2 905 м² 2 - 8 этаж Отделка под арендатора
Преимущества
  • Класс B+
  • Пешком от метро
  • Кондиционирование и вентиляция
  • Свой паркинг

Сдаем в прямую аренду офисное помещение класса B+ площадью 2905 кв. метров в новом бизнес-центре "Данилов Плаза"... подробнее

Презентация по предложению

Собираете информацию? Получите подробную презентацию в удобном формате!

БЕЗ КОМИССИИ ID: 1307996 Рейтинг9.0 КлассА

Москва, Автозаводская улица, 23 с85

Тульская → 1.26 км
~ 13 мин
Арендная плата в месяц 9 859 658 ₽ 36 600 ₽/м² в год С учётом НДС
Характеристики 3 234 м² 6 этаж Под отделку
Преимущества
  • Класс А
  • Пешком от метро
  • Новое строительство
  • Кондиционирование и вентиляция

Сдается в прямую аренду офисный блок класса А общей площадью 3234 кв.м в современном бизнес-центре "Технопарк Зил"... подробнее

Презентация по предложению

Собираете информацию? Получите подробную презентацию в удобном формате!

БЕЗ КОМИССИИ ID: 1303196 Рейтинг7.8 КлассB+

Москва, Автозаводская улица, 14

Автозаводская → 756 м
~ 8 мин
Арендная плата в месяц 8 305 500 ₽ 29 400 ₽/м² в год С учётом НДС
Характеристики 3 390 м² 2 - 4 этаж Готово к въезду
Преимущества
  • Класс B+
  • Пешком от метро
  • Кондиционирование и вентиляция
  • Свой паркинг

Предлагаем в долгосрочную прямую аренду офисный блок класса B площадью 3390 кв.м в бизнес-центре... подробнее

Презентация по предложению

Собираете информацию? Получите подробную презентацию в удобном формате!

БЕЗ КОМИССИИ ID: 1315365 Рейтинг8.4 КлассB+

Москва, Варшавское шоссе, 26

Нагатинская → 42 м
~ 1 мин
Арендная плата в месяц 7 630 875 ₽ 31 500 ₽/м² в год С учётом НДС
Характеристики 2 907 м² 5 этаж Готово к въезду
Преимущества
  • Класс B+
  • Пешком от метро
  • Кондиционирование и вентиляция
  • Свой паркинг
  • Развитая инфраструктура

Предлагается в долгосрочную прямую аренду офис класса B+ общей площадью 2907 кв.м в недавно отреконструированном бизнес-центре "Варшавская Плаза"... подробнее

Презентация по предложению

Собираете информацию? Получите подробную презентацию в удобном формате!

БЕЗ КОМИССИИ ID: 245338 Рейтинг8.6 КлассB+

Москва, улица Ленинская Слобода, 19

Автозаводская → 494 м
~ 5 мин
Арендная плата в месяц 8 040 000 ₽ 32 000 ₽/м² в год С учётом НДС
Характеристики 3 015 м² 3 этаж Готово к въезду
Преимущества
  • Класс B+
  • Пешком от метро
  • Кондиционирование и вентиляция
  • Свой паркинг
  • Несколько провайдеров связи
  • Развитая инфраструктура

Сдается в долгосрочную аренду офисный блок класса B+ общей площадью 3015 кв.м в бизнес-центре "Омега Плаза"... подробнее

Презентация по предложению

Собираете информацию? Получите подробную презентацию в удобном формате!

Посмотреть все похожие предложения
Отнеситесь рационально к процессу поиска нового офиса!

Просто ответьте на 3 вопроса, и наши специалисты сами предложат оптимальные варианты под ваш бюджет

.