8.2
Смотреть все фото
БЕЗ КОМИССИИ ID: 1381144 Рейтинг8.3 КлассB+

Москва, Варшавское шоссе, 9

Тульская → 959 м
~ 10 мин
Арендная плата в месяц 2 638 900 ₽ 43 900 ₽/м² в год С учётом НДС

Презентация по предложению

Собираете информацию? Получите подробную презентацию в удобном формате!

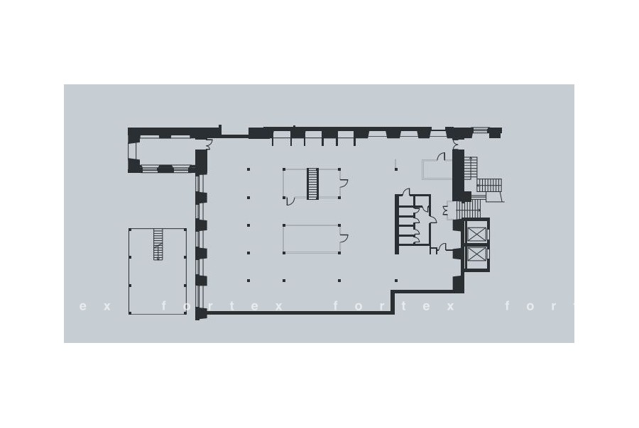
Площадь 721 м²
Состояние Готово к въезду
Планировка Смешанная
Этаж 1

Описание

Преимущества
  • Класс B+
  • Пешком от метро
  • Кондиционирование и вентиляция
  • Свой паркинг
  • Развитая инфраструктура
Предлагается в долгосрочную прямую аренду офис класса B+ площадью 721 кв.м в историческом недавно отреконструированном бизнес-центре "Даниловская Мануфактура".

Москва, ЮАО, Варшавское шоссе, 9

Удобная локация здания:
- Автомобиль: близость транспортных магистралей, таких как Севастопольский проспект, Варшавское шоссе, Третье Транспортное Кольцо и других.
- Возможность аренды парковочных мест.
- Ближайшее метро: от метро "Тульская" всего 10 мин пешком

Офис класса B+:
- Офис с отделкой, полностью готов к аренде
- Вентиляция: Приточно-вытяжная вентиляция
- Кондиционирование: сплит-системы
- Презентабельный центральный ресепшн
- Круглосуточная охрана и видеонаблюдение
- Развитая инфраструктура внутри здания


Если данное предложение подходит Вашему запросу:

1. Мы подготовили презентацию с информацией о помещении, фотографиями и планировкой, чтобы Вы могли поделиться ей с коллегами или руководством. Попросите об этом нашего менеджера по телефону в объявлении.
2. Мы готовы ответить на любые Ваши вопросы о помещении и коммерческих условиях аренды.
3. Проводим показы ежедневно, договоримся на удобное для Вас время. Можем организовать виртуальный тур по офисному блоку.

Вы можете позвонить нам в любое время. Мы ответим на Ваши вопросы по будням до 19:00, а поздно вечером или в выходные зафиксируем Ваш контакт и перезвоним в рабочее время.

Коммерческие условия

Арендная плата 2 638 860 ₽
Ставка арендной платы 30 000 ₽ м²/год
Эксплуатационные расходы 6 000 ₽
Налоги Без НДС
Тип договора Прямая аренда
Срок договора Краткосрочный
Размер платежей 1 месяц
Обеспечительный платеж 2 месяц
Статус Свободен

О бизнес-центре

Класс B+
Этажность 6
Лифты Есть
Общая площадь 106 000 м²
Год постройки 1867
Паркинг Наземный
Вентиляция приточно-вытяжная
Кондиционирование сплит-системы
Телекоммуникации Интернет/Телефония

Расположение

Подробная презентацию по предложению

Собираете информацию? Получите подробную презентацию в удобном формате, чтобы обсудить вариант с коллегами или переслать руководству!

Похожие предложения в других зданиях

БЕЗ КОМИССИИ ID: 303939 Рейтинг7.7 КлассB+

Москва, Варшавское шоссе, 9 с1

Тульская → 1.25 км
~ 13 мин
Арендная плата в месяц 1 820 000 ₽ 28 000 ₽/м² в год С учётом НДС
Характеристики 780 м² 2 этаж Готово к въезду
Преимущества
  • Класс B+
  • Пешком от метро
  • Кондиционирование и вентиляция

Сдается в долгосрочную аренду помещение под офис класса B+ площадью 780 кв. метров в бизнес-центре... подробнее

Презентация по предложению

Собираете информацию? Получите подробную презентацию в удобном формате!

БЕЗ КОМИССИИ ID: 1377815 Рейтинг8.4 КлассB+

Москва, Варшавское шоссе, 1

Тульская → 763 м
~ 8 мин
Арендная плата в месяц 2 818 759 ₽ 43 300 ₽/м² в год С учётом НДС
Характеристики 781 м² 4 этаж Готово к въезду
Преимущества
  • Класс B+
  • Пешком от метро
  • Кондиционирование и вентиляция
  • Свой паркинг
  • Развитая инфраструктура

Предлагаем в прямую аренду помещение под офис класса B+ общей площадью 781 кв. метров в бизнес-центре "W Plaza"... подробнее

Презентация по предложению

Собираете информацию? Получите подробную презентацию в удобном формате!

БЕЗ КОМИССИИ ID: 1376492 Рейтинг8.4 КлассB+

Москва, Варшавское шоссе, 1

Тульская → 763 м
~ 8 мин
Арендная плата в месяц 2 381 333 ₽ 38 000 ₽/м² в год С учётом НДС
Характеристики 752 м² 5 этаж Готово к въезду
Преимущества
  • Класс B+
  • Пешком от метро
  • Кондиционирование и вентиляция
  • Свой паркинг
  • Развитая инфраструктура

Предлагается в долгосрочную аренду помещение под офис класса B+ площадью 752 кв. метров в бизнес-центре "W Plaza"... подробнее

Презентация по предложению

Собираете информацию? Получите подробную презентацию в удобном формате!

БЕЗ КОМИССИИ ID: 1314465 Рейтинг8.4 КлассB+

Москва, Варшавское шоссе, 1

Тульская → 763 м
~ 8 мин
Арендная плата в месяц 2 013 028 ₽ 30 900 ₽/м² в год С учётом НДС
Характеристики 781 м² 4 этаж Готово к въезду
Преимущества
  • Класс B+
  • Пешком от метро
  • Кондиционирование и вентиляция
  • Свой паркинг
  • Развитая инфраструктура

Сдается в долгосрочную прямую аренду офис класса B+ площадью 781 квадратных метров в бизнес-центре "W Plaza"... подробнее

>

Виртуальный тур

Презентация по предложению

Собираете информацию? Получите подробную презентацию в удобном формате!

БЕЗ КОМИССИИ ID: 344216 Рейтинг6.5 КлассB

Москва, Новоданиловская набережная, 4 с3

Тульская → 1.35 км
~ 14 мин
Арендная плата в месяц 1 687 500 ₽ 27 000 ₽/м² в год С учётом НДС
Характеристики 750 м² 3 - 4 этаж Готово к въезду
Преимущества
  • Класс B
  • Пешком от метро
  • Кондиционирование и вентиляция
  • Свой паркинг
  • Развитая инфраструктура

Собственник сдает в долгосрочную аренду помещение под офис класса B площадью 750 квадр. метров в бизнес-центре... подробнее

Презентация по предложению

Собираете информацию? Получите подробную презентацию в удобном формате!

Посмотреть все похожие предложения
Отнеситесь рационально к процессу поиска нового офиса!

Просто ответьте на 3 вопроса, и наши специалисты сами предложат оптимальные варианты под ваш бюджет

.