8.2

Виртуальный тур

Виртуальный тур

Смотреть все фото
БЕЗ КОМИССИИ ID: 981452 Рейтинг8.7 КлассА
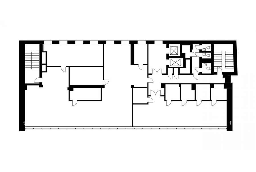
Бизнес-центр «Дом Брюса»

Аренда офиса 925 м²

Москва, Брюсов переулок, 2/14 с9

Охотный Ряд → 899 м
~ 9 мин
Арендная плата в месяц 3 414 800 ₽ 44 300 ₽/м² в год С учётом НДС

Презентация по предложению

Собираете информацию? Получите подробную презентацию в удобном формате!

Площадь 925 м²
Состояние Готово к въезду
Планировка Смешанная
Этаж 3 - 4

Описание

Преимущества
  • Класс А
  • Пешком от метро
  • Кондиционирование и вентиляция
  • Свой паркинг
Собственник сдает в аренду офис класса А общей площадью 925 квадратных метров в историческом недавно отреконструированном бизнес-центре "Дом Брюса".

Москва, ЦАО, Брюсов переулок, 2/14 с9

Удобное расположение в пределах Садового кольца:
- Возможность аренды парковочных мест.
- Ближайшее метро: от метро "Арбатская" всего 11 мин пешком

Офис класса А:
- Помещение готово к въезду
- Вентиляция: Приточно-вытяжная вентиляция
- Кондиционирование: центральное

Возможность заключения контракта в соответствии с 44ФЗ по госзакупкам.

Что еще можно узнать о предложении:

1. Мы подготовили презентацию с информацией о помещении, фотографиями и планировкой, чтобы Вы могли поделиться ей с коллегами или руководством. Попросите об этом нашего менеджера по телефону в объявлении.
2. Ответим на любые Ваши вопросы, готовы обсуждать любые предложения по коммерческим условиям аренды помещения.
3. Оперативно организуем просмотр помещения с менеджерами на объекте или подготовим виртуальный тур.

Звоните нам в любое время. По будням мы сможем ответить на Ваши вопросы до 19:00. В выходные или вечернее время мы передадим Ваш контакт нашему менеджеру по аренде.

Коммерческие условия

Арендная плата 4 066 920 ₽
Ставка арендной платы 44 300 ₽ м²/год
Эксплуатационные расходы Включены в ставку
Налоги С учётом НДС
Тип договора Субаренда
Срок договора Долгосрочный
Размер платежей 1 месяц
Обеспечительный платеж 1 месяц
Статус Сдан

О бизнес-центре

Класс А
Этажность 6
Лифты Есть
Общая площадь 2 860 м²
Год постройки 1775
Паркинг Наземный
Вентиляция приточно-вытяжная
Кондиционирование центральное
Телекоммуникации Интернет/Телефония

Расположение

Подробная презентацию по предложению

Собираете информацию? Получите подробную презентацию в удобном формате, чтобы обсудить вариант с коллегами или переслать руководству!

Похожие предложения в других зданиях

БЕЗ КОМИССИИ ID: 114733 Рейтинг8.5 КлассА

Москва, Вознесенский переулок, 11 с1

Охотный Ряд → 956 м
~ 10 мин
Арендная плата в месяц 2 666 667 ₽ 40 000 ₽/м² в год С учётом НДС
Характеристики 800 м² 2 этаж Готово к въезду
Преимущества
  • Класс А
  • Пешком от метро
  • Кондиционирование и вентиляция
  • Свой паркинг

Предлагается в прямую аренду офисное помещение класса А площадью 800 квадратных метров в бизнес-центре... подробнее

Презентация по предложению

Собираете информацию? Получите подробную презентацию в удобном формате!

БЕЗ КОМИССИИ ID: 57030 Рейтинг7.8 КлассB+

Москва, Нижний Кисловский переулок, 5 с1

Арбатская → 284 м
~ 4 мин
Арендная плата в месяц 3 680 000 ₽ 46 000 ₽/м² в год С учётом НДС
Характеристики 960 м² 3 - 4 этаж Готово к въезду
Преимущества
  • Класс B+
  • Пешком от метро
  • Кондиционирование и вентиляция

Предлагаем в прямую аренду офисный блок класса B+ общей площадью 960 квадр. метров в историческом недавно отреконструированном бизнес-центре "Слобода"... подробнее

Презентация по предложению

Собираете информацию? Получите подробную презентацию в удобном формате!

ВОЗМОЖНО ОСВОБОЖДЕНИЕ ID: 481604 Рейтинг7.7 КлассB+

Москва, Тверская улица, 9

Охотный Ряд → 453 м
~ 5 мин
Арендная плата в месяц 3 500 000 ₽ 42 000 ₽/м² в год С учётом НДС
Характеристики 1 000 м² 1 этаж Готово к въезду
Преимущества
  • Класс B+
  • Пешком от метро
  • Кондиционирование и вентиляция
  • Свой паркинг
  • Развитая инфраструктура

Сдаем в долгосрочную аренду помещение под офис класса B+ площадью 1000 квадр. метров в бизнес-центре "Галерея Самсунг"... подробнее

Презентация по предложению

Собираете информацию? Получите подробную презентацию в удобном формате!

ВОЗМОЖНО ОСВОБОЖДЕНИЕ ID: 1068467 Рейтинг9.5 КлассА

Москва, улица Воздвиженка, 10

Арбатская → 195 м
~ 2 мин
Арендная плата в месяц 3 150 000 ₽ 42 000 ₽/м² в год С учётом НДС
Характеристики 900 м² 7 этаж Готово к въезду
Преимущества
  • Класс А
  • Пешком от метро
  • Кондиционирование и вентиляция
  • Свой паркинг
  • Развитая инфраструктура

Сдаем в долгосрочную прямую аренду помещение под офис класса А площадью 900 квадратных метров в историческом бизнес-центре "Военторг"... подробнее

Презентация по предложению

Собираете информацию? Получите подробную презентацию в удобном формате!

БЕЗ КОМИССИИ ID: 280297 Рейтинг7.8 КлассB

Москва, Мерзляковский переулок, 20 с1

Арбатская → 688 м
~ 7 мин
Арендная плата в месяц 3 483 333 ₽ 41 800 ₽/м² в год С учётом НДС
Характеристики 1 000 м² 1 - 3 этаж Готово к въезду
Преимущества
  • Класс B
  • Пешком от метро
  • Кондиционирование и вентиляция
  • Свой паркинг

Предлагаем в долгосрочную аренду офисное помещение класса B общей площадью 1000 квадр. метров в историческом недавно отреконструированном бизнес-центре... подробнее

Презентация по предложению

Собираете информацию? Получите подробную презентацию в удобном формате!

Посмотреть все похожие предложения
Отнеситесь рационально к процессу поиска нового офиса!

Просто ответьте на 3 вопроса, и наши специалисты сами предложат оптимальные варианты под ваш бюджет

.