8.2
Смотреть все фото
БЕЗ КОМИССИИ ID: 240335 Рейтинг8.2 КлассB+

Москва, Большая Садовая улица, 10

Маяковская → 328 м
~ 3 мин
Арендная плата в месяц 870 600 ₽ 31 000 ₽/м² в год С учётом НДС

Презентация по предложению

Собираете информацию? Получите подробную презентацию в удобном формате!

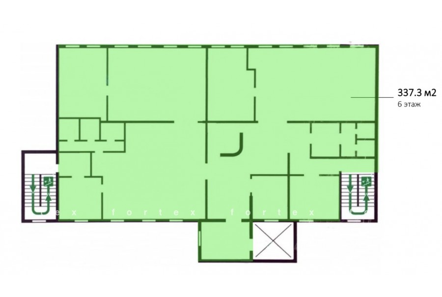
Площадь 337 м²
Состояние Готово к въезду
Планировка Смешанная
Этаж 6

Описание

Преимущества
  • Класс B+
  • Пешком от метро
  • Кондиционирование и вентиляция
  • Развитая инфраструктура
Предлагаем в долгосрочную прямую аренду офисный блок класса B+ общей площадью 337 кв. метров в историческом недавно отреконструированном бизнес-центре "Дом Булгакова".

Москва, ЦАО, Большая Садовая улица, 10

Удобное расположение в пределах Садового кольца:
- Ближайшее метро: от метро "Маяковская" всего 4 мин пешком

Офис класса B+:
- Помещение с отделкой, готово к въезду
- Вентиляция: Приточно-вытяжная вентиляция
- Кондиционирование: центральное
- Круглосуточная охрана и видеонаблюдение
- Развитая инфраструктура внутри здания


Что еще можно узнать о предложении:

1. Мы отправим Вам подробную презентацию с планировкой и фотографиями в течение 10 минут после звонка, чтобы Вы могли поделиться информацией с руководством или с коллегами.
2. Задайте любые вопросы менеджеру по телефону, готовы обсуждать любые предложения по финансовым условиям договора аренды.
3. Проводим показы ежедневно, договоримся на удобное для Вас время. Можем организовать виртуальный тур по офисному блоку.

Звоните нам в любое время. По будням мы сможем ответить на Ваши вопросы до 19:00. В выходные или вечернее время мы передадим Ваш контакт нашему менеджеру по аренде.

Коммерческие условия

Арендная плата 870 580 ₽
Ставка арендной платы 31 000 ₽ м²/год
Эксплуатационные расходы Включены в ставку
Налоги С учётом НДС
Тип договора Прямая аренда
Срок договора от 11 месяцев
Размер платежей 1 месяц
Обеспечительный платеж 2 месяц
Статус Сдан

О бизнес-центре

Класс B+
Этажность 6
Лифты Есть
Общая площадь 8 000 м²
Год постройки 1890
Паркинг Стихийный
Вентиляция приточно-вытяжная
Кондиционирование центральное
Телекоммуникации Интернет/Телефония

Расположение

Подробная презентацию по предложению

Собираете информацию? Получите подробную презентацию в удобном формате, чтобы обсудить вариант с коллегами или переслать руководству!

Похожие предложения в других зданиях

БЕЗ КОМИССИИ ID: 1285578 Рейтинг8.0 КлассB+

Москва, Садовая-Кудринская улица, 25

Маяковская → 630 м
~ 6 мин
Арендная плата в месяц 940 485 ₽ 28 900 ₽/м² в год С учётом НДС
Характеристики 390 м² 7 - 8 этаж Готово к въезду
Преимущества
  • Класс B+
  • Пешком от метро
  • Кондиционирование и вентиляция
  • Свой паркинг

Предлагаем в прямую аренду офис класса B+ общей площадью 390 квадр. метров в бизнес-центре... подробнее

Презентация по предложению

Собираете информацию? Получите подробную презентацию в удобном формате!

БЕЗ КОМИССИИ ID: 269072 Рейтинг7.7 КлассB

Москва, Благовещенский переулок, 3 с1

Маяковская → 292 м
~ 3 мин
Арендная плата в месяц 724 500 ₽ 27 000 ₽/м² в год С учётом НДС
Характеристики 322 м² 5 этаж Готово к въезду
Преимущества
  • Класс B
  • Пешком от метро
  • Кондиционирование и вентиляция
  • Свой паркинг

Предлагается в долгосрочную аренду помещение под офис класса B площадью 322 квадратных метров в историческом бизнес-центре... подробнее

Презентация по предложению

Собираете информацию? Получите подробную презентацию в удобном формате!

БЕЗ КОМИССИИ ID: 6063 Рейтинг6.9 КлассА

Москва, Большой Палашевский переулок, 5/1

Тверская → 588 м
~ 7 мин
Арендная плата в месяц 785 000 ₽ 30 000 ₽/м² в год С учётом НДС
Характеристики 314 м² 3 этаж Готово к въезду
Преимущества
  • Класс А
  • Пешком от метро
  • Кондиционирование и вентиляция
  • Свой паркинг
  • Несколько провайдеров связи

Собственник сдает в долгосрочную прямую аренду офис класса А общей площадью 314 кв.м в недавно отреконструированном бизнес-центре... подробнее

Презентация по предложению

Собираете информацию? Получите подробную презентацию в удобном формате!

БЕЗ КОМИССИИ ID: 304686 Рейтинг7.8 КлассB

Москва, Большой Палашёвский переулок, 11 с2

Тверская → 742 м
~ 7 мин
Арендная плата в месяц 773 333 ₽ 32 000 ₽/м² в год С учётом НДС
Характеристики 290 м² 2 этаж Готово к въезду
Преимущества
  • Класс B
  • Пешком от метро
  • Кондиционирование и вентиляция
  • Свой паркинг

Предлагаем в долгосрочную аренду офисный блок класса B общей площадью 290 кв.м в бизнес-центре... подробнее

Презентация по предложению

Собираете информацию? Получите подробную презентацию в удобном формате!

БЕЗ КОМИССИИ ID: 481592 Рейтинг8.3 КлассB+

Москва, Большой Палашёвский переулок, 15 с1

Чеховская → 632 м
~ 6 мин
Арендная плата в месяц 725 000 ₽ 29 000 ₽/м² в год С учётом НДС
Характеристики 300 м² 1 этаж Готово к въезду
Преимущества
  • Класс B+
  • Пешком от метро
  • Кондиционирование и вентиляция

Предлагается в долгосрочную аренду офисное помещение класса B+ площадью 300 квадр. метров в бизнес-центре... подробнее

>

Виртуальный тур

Презентация по предложению

Собираете информацию? Получите подробную презентацию в удобном формате!

Посмотреть все похожие предложения
Отнеситесь рационально к процессу поиска нового офиса!

Просто ответьте на 3 вопроса, и наши специалисты сами предложат оптимальные варианты под ваш бюджет

.