8.2
Смотреть все фото
БЕЗ КОМИССИИ ID: 1283615 Рейтинг8.2 КлассB+

Москва, Большая Садовая улица, 10

Маяковская → 328 м
~ 3 мин
Арендная плата в месяц 1 733 700 ₽ 40 400 ₽/м² в год С учётом НДС

Презентация по предложению

Собираете информацию? Получите подробную презентацию в удобном формате!

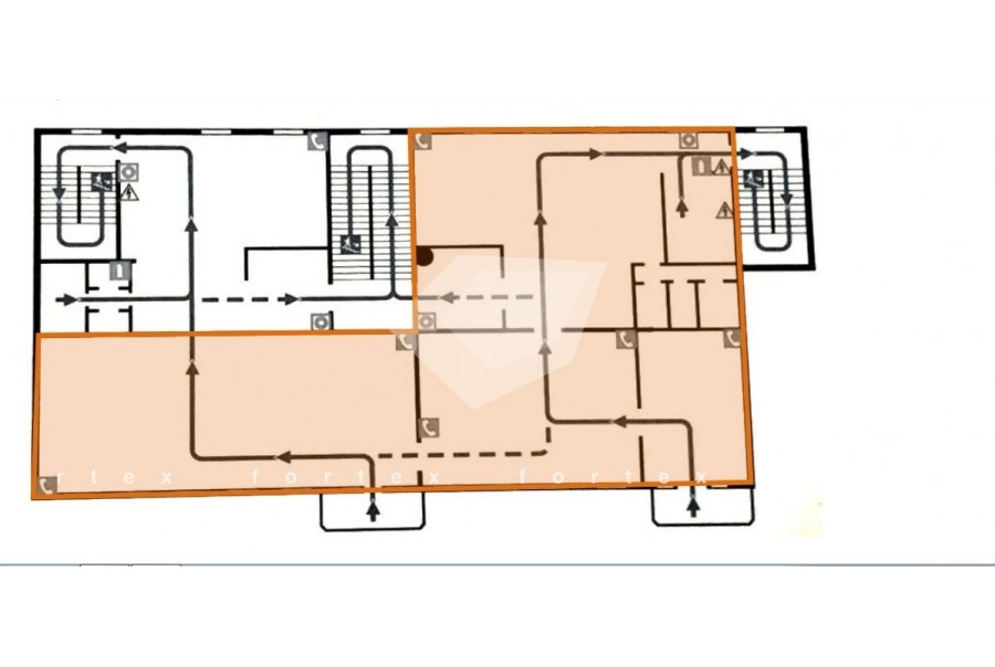
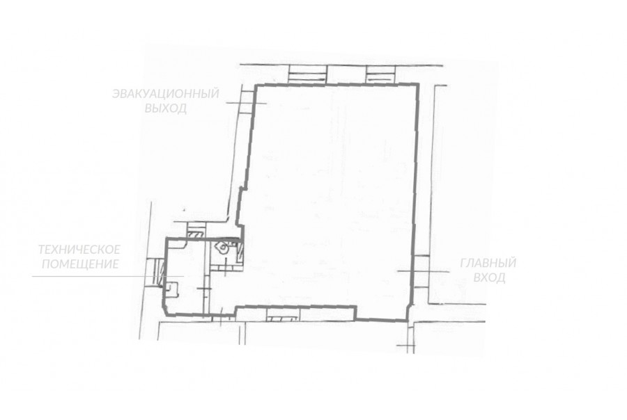
Площадь 515 м²
Состояние Готово к въезду
Планировка Смешанная
Этаж 5

Описание

Преимущества
  • Класс B+
  • Пешком от метро
  • Кондиционирование и вентиляция
  • Развитая инфраструктура
Предлагается в прямую аренду офисный блок класса B+ площадью 515 квадратных метров в историческом недавно отреконструированном бизнес-центре "Дом Булгакова".

Москва, ЦАО, Большая Садовая улица, 10

Удобное расположение в пределах Садового кольца:
- Ближайшее метро: от метро "Маяковская" всего 4 мин пешком

Офис класса B+:
- Офис с отделкой, полностью готов к аренде
- Вентиляция: Приточно-вытяжная вентиляция
- Кондиционирование: центральное
- Круглосуточная охрана и видеонаблюдение
- Развитая инфраструктура внутри здания


Что еще можно узнать о предложении:

1. Мы подготовили презентацию с информацией о помещении, фотографиями и планировкой, чтобы Вы могли поделиться ей с коллегами или руководством. Попросите об этом нашего менеджера по телефону в объявлении.
2. Ответим на любые Ваши вопросы, готовы обсуждать любые предложения по коммерческим условиям аренды помещения.
3. Покажем помещение в удобное для Вас время с менеджером в здании, при необходимости подготовим виртуальный тур.

Вы можете позвонить нам в любое время. Мы ответим на Ваши вопросы по будням до 19:00, а поздно вечером или в выходные сможем передать Ваш контакт нашему менеджеру.

Коммерческие условия

Арендная плата 1 576 160 ₽
Ставка арендной платы 40 400 ₽ м²/год
Эксплуатационные расходы Включены в ставку
Налоги С учётом НДС
Тип договора Прямая аренда
Срок договора от 11 месяцев
Размер платежей 1 месяц
Обеспечительный платеж 2 месяц
Статус Сдан

О бизнес-центре

Класс B+
Этажность 6
Лифты Есть
Общая площадь 8 000 м²
Год постройки 1890
Паркинг Стихийный
Вентиляция приточно-вытяжная
Кондиционирование центральное
Телекоммуникации Интернет/Телефония

Расположение

Подробная презентацию по предложению

Собираете информацию? Получите подробную презентацию в удобном формате, чтобы обсудить вариант с коллегами или переслать руководству!

Похожие предложения в других зданиях

БЕЗ КОМИССИИ ID: 2877 Рейтинг9.5 КлассА

Москва, 1-я Тверская-Ямская улица, 5

Маяковская → 412 м
~ 4 мин
Арендная плата в месяц 1 682 917 ₽ 35 000 ₽/м² в год С учётом НДС
Характеристики 577 м² 1 этаж Под отделку
Преимущества
  • Класс А
  • Пешком от метро
  • Кондиционирование и вентиляция
  • Свой паркинг
  • Несколько провайдеров связи

Предлагается в долгосрочную прямую аренду помещение под офис класса А общей площадью 577 квадратных метров в бизнес-центре "Галс Тауэр"... подробнее

Презентация по предложению

Собираете информацию? Получите подробную презентацию в удобном формате!

БЕЗ КОМИССИИ ID: 1285138 Рейтинг9.0 КлассА

Москва, 1-я Брестская улица, 29

Маяковская → 394 м
~ 4 мин
Арендная плата в месяц 1 713 250 ₽ 38 500 ₽/м² в год С учётом НДС
Характеристики 534 м² 1 - 7 этаж Готово к въезду
Преимущества
  • Класс А
  • Пешком от метро
  • Кондиционирование и вентиляция
  • Свой паркинг
  • Несколько провайдеров связи

Собственник сдает в долгосрочную аренду офис класса А общей площадью 534 кв. метров в бизнес-центре "Капитал Тауэр"... подробнее

Презентация по предложению

Собираете информацию? Получите подробную презентацию в удобном формате!

БЕЗ КОМИССИИ ID: 1264796 Рейтинг6.9 КлассB+

Москва, Настасьинский переулок, 7

Чеховская → 389 м
~ 4 мин
Арендная плата в месяц 1 757 525 ₽ 36 300 ₽/м² в год С учётом НДС
Характеристики 581 м² 3 этаж Готово к въезду
Преимущества
  • Класс B+
  • Пешком от метро
  • Кондиционирование и вентиляция

Предлагаем в долгосрочную аренду офис класса B+ общей площадью 581 квадратных метров в бизнес-центре... подробнее

>

Виртуальный тур

Презентация по предложению

Собираете информацию? Получите подробную презентацию в удобном формате!

БЕЗ КОМИССИИ ID: 1264798 Рейтинг6.9 КлассB+

Москва, Настасьинский переулок, 7

Чеховская → 389 м
~ 4 мин
Арендная плата в месяц 1 694 000 ₽ 36 300 ₽/м² в год С учётом НДС
Характеристики 560 м² 4 этаж Готово к въезду
Преимущества
  • Класс B+
  • Пешком от метро
  • Кондиционирование и вентиляция

Собственник сдает в долгосрочную прямую аренду офисное помещение класса B+ общей площадью 560 квадратных метров в бизнес-центре... подробнее

>

Виртуальный тур

Презентация по предложению

Собираете информацию? Получите подробную презентацию в удобном формате!

БЕЗ КОМИССИИ ID: 290366 Рейтинг6.8 КлассB+

Москва, Большая Бронная улица, 10 с1

Тверская → 932 м
~ 9 мин
Арендная плата в месяц 1 608 000 ₽ 36 000 ₽/м² в год С учётом НДС
Характеристики 536 м² 1 - 2 этаж Готово к въезду
Преимущества
  • Класс B+
  • Пешком от метро
  • Кондиционирование и вентиляция
  • Свой паркинг

Собственник сдает в прямую аренду офисное помещение класса B+ площадью 536 квадратных метров в бизнес-центре... подробнее

Презентация по предложению

Собираете информацию? Получите подробную презентацию в удобном формате!

Посмотреть все похожие предложения
Отнеситесь рационально к процессу поиска нового офиса!

Просто ответьте на 3 вопроса, и наши специалисты сами предложат оптимальные варианты под ваш бюджет

.