8.2
Смотреть все фото
БЕЗ КОМИССИИ ID: 1378141 Рейтинг8.4 КлассB+
Бизнес-центр «Дом Шервудов»

Аренда офиса 113 м²

Москва, Малая Калужская улица, 15 с5

Шаболовская → 1.07 км
~ 11 мин
Арендная плата в месяц 920 000 ₽ 97 700 ₽/м² в год С учётом НДС

Презентация по предложению

Собираете информацию? Получите подробную презентацию в удобном формате!

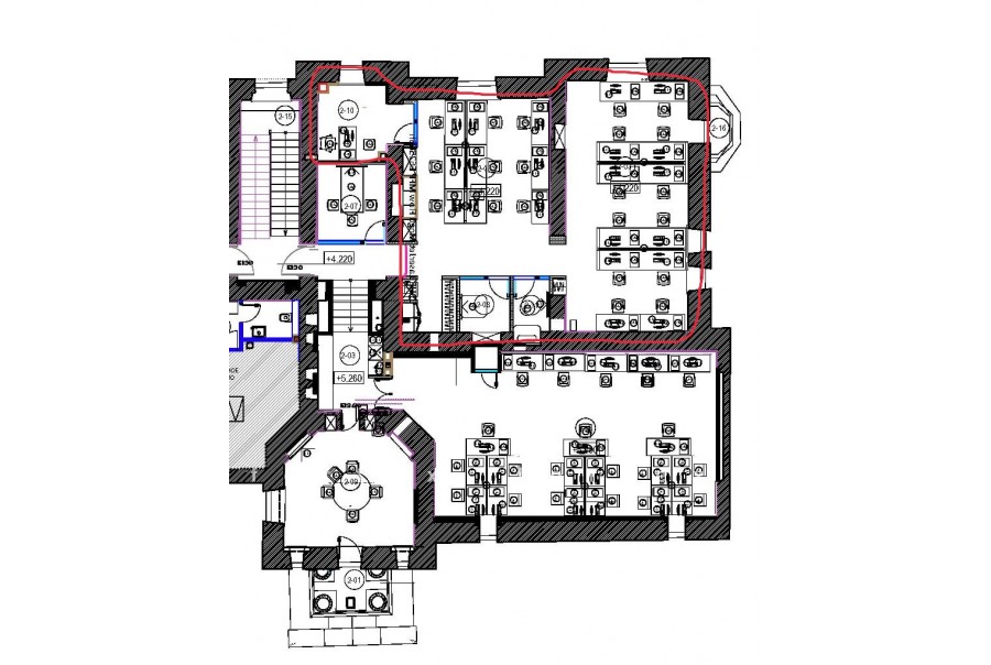
Площадь 113 м²
Состояние Готово к въезду
Планировка Смешанная
Этаж 2

Описание

Преимущества
  • Класс B+
  • Пешком от метро
  • Свежая реконструкция
  • Кондиционирование и вентиляция
Предлагаем в прямую аренду комфортабельный сервисный офис на 23 рабочих места в историческом недавно отреконструированном бизнес-центре "Дом Шервудов".

Сервисный офис - это современное офисное решение. Высококлассная дизайнерская отделка, полностью укомплектованные рабочие места, мягкие зоны отдыха, переговорные комнаты - это готовый к работе офис. Ежедневная уборка, обеспечение расходными материалами, включая кухни и санузлы, любая АХО-поддержка - это сервис, который уже включен в стоимость.

Услуги, включенные в арендную плату:
- Качественная мебель для комфортной работы
- Бронирование переговорных комнат
- Печать, IT-услуги и техническое обслуживание офиса
- Зоны отдыха, чай, кофе, вода
- Пополнение расходных материалов
- Ежедневная уборка офиса
- Высокоскоростной интернет

Офис класса B+:
- Офис с отделкой, полностью готов к аренде
- Вентиляция: Приточно-вытяжная вентиляция
- Кондиционирование: центральное

О особняке "Дом Шервудов" :
Москва, ЮАО, Малая Калужская улица, 15 с5

Удобная локация здания:
- Автомобиль: близость транспортных магистралей, таких как Ленинский проспект и других.
- Ближайшее метро: от метро "Шаболовская" всего 11 мин пешком


Что еще можно узнать о предложении:

1. Получите презентацию в течение 10 минут в Whatsapp или на почту с фотографиями и планировкой, чтобы обсудить данный вариант с коллегами или переслать руководству. Для этого позвоните по телефону, указанному в объявлении.
2. Ответим на любые Ваши вопросы, готовы обсуждать любые предложения по коммерческим условиям аренды помещения.
3. Оперативно организуем просмотр помещения с менеджерами на объекте или подготовим виртуальный тур.

Вы можете позвонить нам в любое время. Мы ответим на Ваши вопросы по будням до 19:00, а поздно вечером или в выходные зафиксируем Ваш контакт и перезвоним в рабочее время.

Коммерческие условия

Арендная плата 920 010 ₽
Ставка арендной платы 97 700 ₽ м²/год
Эксплуатационные расходы Включены в ставку
Налоги С учётом НДС
Тип договора Прямая аренда
Срок договора от 11 месяцев
Размер платежей 1 месяц
Обеспечительный платеж 1 месяц
Статус Свободен

О бизнес-центре

Класс B+
Этажность 3
Лифты Нет
Общая площадь 1 055 м²
Год постройки 1880
Паркинг Наземный
Вентиляция приточно-вытяжная
Кондиционирование центральное
Телекоммуникации Интернет/Телефония

Расположение

Подробная презентацию по предложению

Собираете информацию? Получите подробную презентацию в удобном формате, чтобы обсудить вариант с коллегами или переслать руководству!

Похожие предложения в других зданиях

БЕЗ КОМИССИИ ID: 1376837 Рейтинг8.7 КлассB

Москва, Трубецкая улица, 12

Фрунзенская → 647 м
~ 6 мин
Арендная плата в месяц 1 000 003 ₽ 92 300 ₽/м² в год Упрощённая система налогообложения
Характеристики 130 м² 1 - 2 этаж Готово к въезду
Преимущества
  • Класс B
  • Пешком от метро
  • Кондиционирование и вентиляция

Предлагается в прямую аренду офис класса B площадью 130 квадр. метров в жилом комплексе... подробнее

Презентация по предложению

Собираете информацию? Получите подробную презентацию в удобном формате!

БЕЗ КОМИССИИ ID: 1282961 Рейтинг8.4 КлассB

Москва, Олсуфьевский переулок, 8 с1

Фрунзенская → 812 м
~ 8 мин
Арендная плата в месяц 1 195 712 ₽ 112 100 ₽/м² в год С учётом НДС
Характеристики 128 м² 1 этаж Готово к въезду
Преимущества
  • Класс B
  • Пешком от метро
  • Кондиционирование и вентиляция
  • Свой паркинг

Предлагается в аренду помещение под офис класса B площадью 128 квадр. метров в бизнес-центре... подробнее

Презентация по предложению

Собираете информацию? Получите подробную презентацию в удобном формате!

Посмотреть все похожие предложения
Отнеситесь рационально к процессу поиска нового офиса!

Просто ответьте на 3 вопроса, и наши специалисты сами предложат оптимальные варианты под ваш бюджет

.