8.2
Смотреть все фото
БЕЗ КОМИССИИ ID: 248394 Рейтинг9.4 КлассА
Бизнес-центр «Dominion Tower»

Аренда офиса 5461 м²

Москва, Шарикоподшипниковская улица, 5

Дубровка → 937 м
~ 9 мин
Арендная плата в месяц 12 105 200 ₽ 26 600 ₽/м² в год С учётом НДС

Презентация по предложению

Собираете информацию? Получите подробную презентацию в удобном формате!

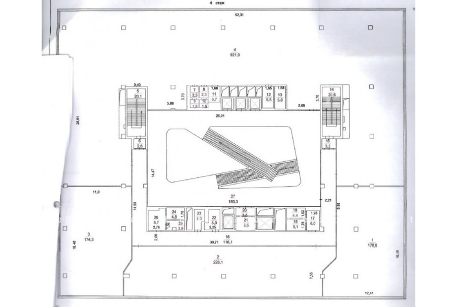
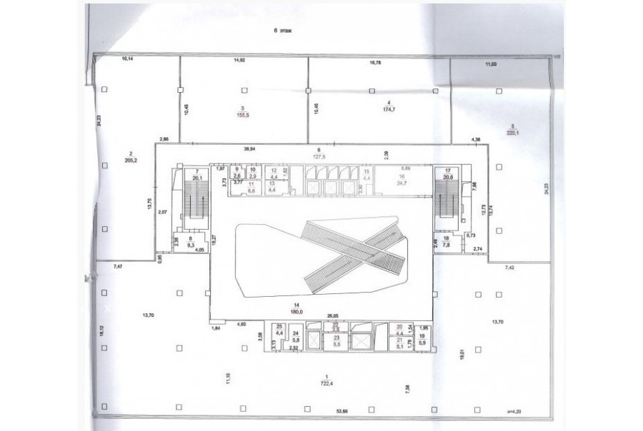
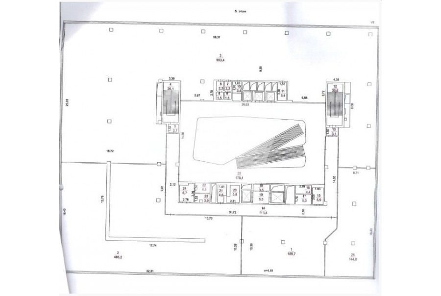
Площадь 5 461 м²
Состояние Под отделку
Планировка Открытая
Этаж 4 - 6

Описание

Преимущества
  • Класс А
  • Пешком от метро
  • Кондиционирование и вентиляция
  • Свой паркинг
Предлагаем в долгосрочную аренду офисный блок класса А общей площадью 5461 квадратных метров в бизнес-центре "Dominion Tower".

Москва, ЮВАО, Шарикоподшипниковская улица, 5

Удобная локация здания:
- Автомобиль: близость транспортных магистралей, таких как Волгоградский проспект и других.
- Возможность аренды парковочных мест.
- Ближайшее метро: от метро "Дубровка" всего 9 мин пешком

Офис класса А:
- Офис без отделки
- Вентиляция: Приточно-вытяжная вентиляция
- Кондиционирование: центральное
- Презентабельный центральный ресепшн
- Круглосуточная охрана и видеонаблюдение

Возможность заключения контракта в соответствии с 44ФЗ по госзакупкам.

Что еще можно узнать о предложении:

1. Мы отправим Вам подробную презентацию с планировкой и фотографиями в течение 10 минут после звонка, чтобы Вы могли поделиться информацией с руководством или с коллегами.
2. Ответим на любые Ваши вопросы, готовы обсуждать любые предложения по коммерческим условиям аренды помещения.
3. Покажем помещение в удобное для Вас время с менеджером в здании, при необходимости подготовим виртуальный тур.

Звоните нам в любое время. По будням мы сможем ответить на Ваши вопросы до 19:00. В выходные или вечернее время мы передадим Ваш контакт нашему менеджеру по аренде.

Коммерческие условия

Арендная плата 13 820 880 ₽
Ставка арендной платы 26 600 ₽ м²/год
Эксплуатационные расходы Включены в ставку
Налоги С учётом НДС
Тип договора Прямая аренда
Срок договора от 11 месяцев
Размер платежей 1 месяц
Обеспечительный платеж 1 месяц
Статус Сдан

О бизнес-центре

Класс А
Этажность 7
Лифты Есть
Общая площадь 21 950 м²
Год постройки 2014
Паркинг Подземный
Вентиляция приточно-вытяжная
Кондиционирование центральное
Телекоммуникации Интернет/Телефония

Расположение

Подробная презентацию по предложению

Собираете информацию? Получите подробную презентацию в удобном формате, чтобы обсудить вариант с коллегами или переслать руководству!

Похожие предложения в других зданиях

БЕЗ КОМИССИИ ID: 68862 Рейтинг8.4 КлассB+

Москва, Дербеневская улица, 15Б

Павелецкая → 1.81 км
~ 18 мин
Арендная плата в месяц 12 000 000 ₽ 24 000 ₽/м² в год С учётом НДС
Характеристики 6 000 м² 1 - 5 этаж Под отделку
Преимущества
  • Класс B+
  • Пешком от метро
  • Кондиционирование и вентиляция
  • Свой паркинг

Сдаем в прямую аренду помещение под офис класса B+ общей площадью 6000 квадратных метров в бизнес-центре "Свежий ветер"... подробнее

Презентация по предложению

Собираете информацию? Получите подробную презентацию в удобном формате!

БЕЗ КОМИССИИ ID: 6995 Рейтинг7.8 КлассB+

Москва, Воронцовская улица, 35б к1

Пролетарская → 446 м
~ 4 мин
Арендная плата в месяц 11 291 083 ₽ 23 000 ₽/м² в год С учётом НДС
Характеристики 5 891 м² 1 этаж Готово к въезду
Преимущества
  • Класс B+
  • Пешком от метро
  • Кондиционирование и вентиляция
  • Свой паркинг
  • Несколько провайдеров связи
  • Развитая инфраструктура

Сдаем в прямую аренду офисное помещение класса B+ площадью 5891 кв.м в историческом недавно отреконструированном бизнес-центре "Тайм центр"... подробнее

Презентация по предложению

Собираете информацию? Получите подробную презентацию в удобном формате!

БЕЗ КОМИССИИ ID: 1306688 Рейтинг7.8 КлассB+

Москва, Автозаводская улица, 14

Автозаводская → 756 м
~ 8 мин
Арендная плата в месяц 14 673 050 ₽ 29 400 ₽/м² в год С учётом НДС
Характеристики 5 989 м² 5 - 9 этаж Готово к въезду
Преимущества
  • Класс B+
  • Пешком от метро
  • Кондиционирование и вентиляция
  • Свой паркинг

Предлагаем в прямую аренду помещение под офис класса B общей площадью 5989 квадратных метров в бизнес-центре... подробнее

Презентация по предложению

Собираете информацию? Получите подробную презентацию в удобном формате!

БЕЗ КОМИССИИ ID: 1303023 Рейтинг7.8 КлассB+

Москва, Автозаводская улица, 14

Автозаводская → 756 м
~ 8 мин
Арендная плата в месяц 11 368 000 ₽ 29 400 ₽/м² в год С учётом НДС
Характеристики 4 640 м² 3 - 6 этаж Готово к въезду
Преимущества
  • Класс B+
  • Пешком от метро
  • Кондиционирование и вентиляция
  • Свой паркинг

Предлагается в прямую аренду помещение под офис класса B площадью 4640 квадратных метров в бизнес-центре... подробнее

Презентация по предложению

Собираете информацию? Получите подробную презентацию в удобном формате!

ВОЗМОЖНО ОСВОБОЖДЕНИЕ ID: 80842 Рейтинг7.9 КлассB+

Москва, 2-й Южнопортовый проезд, 16 с1

Кожуховская → 611 м
~ 6 мин
Арендная плата в месяц 12 647 250 ₽ 27 000 ₽/м² в год С учётом НДС
Характеристики 5 621 м² 1 - 5 этаж Готово к въезду
Преимущества
  • Класс B+
  • Пешком от метро
  • Кондиционирование и вентиляция
  • Свой паркинг
  • Несколько провайдеров связи

Предлагается в прямую аренду помещение под офис класса B+ общей площадью 5621 квадратных метров в бизнес-центре "Южный Порт"... подробнее

Презентация по предложению

Собираете информацию? Получите подробную презентацию в удобном формате!

Посмотреть все похожие предложения
Отнеситесь рационально к процессу поиска нового офиса!

Просто ответьте на 3 вопроса, и наши специалисты сами предложат оптимальные варианты под ваш бюджет

.