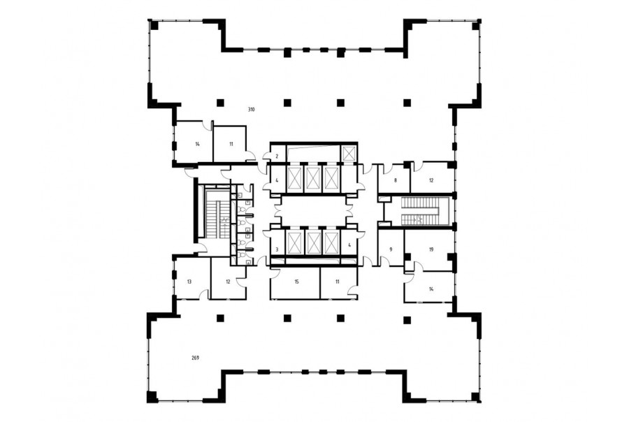
Аренда офиса 1149 м²
Москва, улица Маши Порываевой, 34
Хотите узнать больше о предложении?
Изучите предложение в подробной презентации и делитесь с коллегам для обсуждения! Введите Ваши данные, мы пришлем ее в течение нескольких минут!
Презентация по предложению
Собираете информацию? Получите подробную презентацию в удобном формате!
Описание
- Класс А
- Пешком от метро
- Кондиционирование и вентиляция
- Свой паркинг
- Развитая инфраструктура
Москва, ЦАО, улица Маши Порываевой, 34
Удобное расположение здания для всех видов транспорта:
- Автомобиль: близость транспортных магистралей, таких как Садовое Кольцо и других.
- Возможность аренды парковочных мест.
- Ближайшее метро: от метро "Красные Ворота" всего 7 мин пешком
Офис класса А:
- Помещение готово к въезду
- Вентиляция: Приточно-вытяжная вентиляция
- Кондиционирование: центральное
- Презентабельный центральный рецепшн
- Круглосуточная охрана и видеонаблюдение
- Развитая инфраструктура внутри здания
Возможность заключения контракта в соответствии с 44ФЗ по госзакупкам.
Что еще можно узнать о предложении:
1. Мы отправим Вам подробную презентацию с планировкой и фотографиями в течение 10 минут после звонка, чтобы Вы могли поделиться информацией с руководством или с коллегами.
2. Мы готовы ответить на любые Ваши вопросы о помещении и коммерческих условиях аренды.
3.
Вы можете позвонить нам в любое время. Мы ответим на Ваши вопросы по будням до 19:00, а поздно вечером или в выходные сможем передать Ваш контакт нашему менеджеру.
Коммерческие условия
О бизнес-центре
Расположение
Подробная презентацию по предложению
Собираете информацию? Получите подробную презентацию в удобном формате, чтобы обсудить вариант с коллегами или переслать руководству!
Похожие предложения в других зданиях
Москва, Новорязанская улица, 8А с2
- Класс B
- Пешком от метро
- Кондиционирование и вентиляция
- Свой паркинг
Сдаем в долгосрочную аренду офисный блок класса B общей площадью 1248 квадратных метров в бизнес-центре "Новорязанская 8А c2"... подробнее
Презентация по предложению
Собираете информацию? Получите подробную презентацию в удобном формате!
Хотите узнать больше о предложении?
Изучите предложение в подробной презентации и делитесь с коллегам для обсуждения! Введите Ваши данные, мы пришлем ее в течение нескольких минут!
Москва, Новорязанская улица, 8А с1
- Класс B+
- Пешком от метро
- Кондиционирование и вентиляция
- Свой паркинг
Предлагается в долгосрочную аренду помещение под офис класса B+ площадью 1258 кв. метров в историческом недавно отреконструированном бизнес-центре... подробнее
Презентация по предложению
Собираете информацию? Получите подробную презентацию в удобном формате!
Хотите узнать больше о предложении?
Изучите предложение в подробной презентации и делитесь с коллегам для обсуждения! Введите Ваши данные, мы пришлем ее в течение нескольких минут!
Москва, Новорязанская улица, 8А с1
- Класс B+
- Пешком от метро
- Кондиционирование и вентиляция
- Свой паркинг
Предлагается в долгосрочную прямую аренду офисное помещение класса B+ площадью 1164 кв. метров в историческом недавно отреконструированном бизнес-центре... подробнее
Презентация по предложению
Собираете информацию? Получите подробную презентацию в удобном формате!
Хотите узнать больше о предложении?
Изучите предложение в подробной презентации и делитесь с коллегам для обсуждения! Введите Ваши данные, мы пришлем ее в течение нескольких минут!
Москва, Новорязанская улица, 8А с1
- Класс B+
- Пешком от метро
- Кондиционирование и вентиляция
- Свой паркинг
Предлагается в долгосрочную аренду помещение под офис класса B+ площадью 1000 кв.м в историческом недавно отреконструированном бизнес-центре... подробнее
Презентация по предложению
Собираете информацию? Получите подробную презентацию в удобном формате!
Хотите узнать больше о помещении?
Получите больше информации о помещении и коммерческих условиях у нашего специалиста. Введите ваши данные, мы пришлем ее в течение нескольких минут!
Москва, улица Чаплыгина, 9 с1
- Класс B
- Пешком от метро
- Кондиционирование и вентиляция
- Свой паркинг
Предлагается в прямую аренду помещение под офис класса B площадью 1126 квадратных метров в бизнес-центре... подробнее
Презентация по предложению
Собираете информацию? Получите подробную презентацию в удобном формате!
Хотите узнать больше о предложении?
Изучите предложение в подробной презентации и делитесь с коллегам для обсуждения! Введите Ваши данные, мы пришлем ее в течение нескольких минут!
Просто ответьте на 3 вопроса, и наши специалисты сами предложат оптимальные варианты под ваш бюджет