8.2
Смотреть все фото
ВОЗМОЖНО ОСВОБОЖДЕНИЕ ID: 868026 Рейтинг8.1 КлассА
Бизнес-центр «Домус»

Аренда офиса 1305 м²

Москва, 1-й Голутвинский переулок, 1

Полянка → 633 м
~ 6 мин
Арендная плата в месяц по запросу потенциального арендатора Срок освобождение в течение 3 месяцев

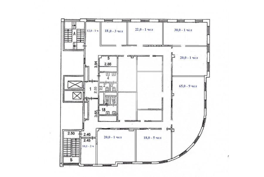
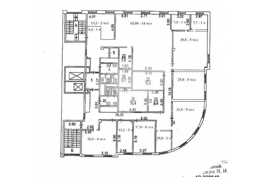
Информация по помещению

Ознакомьтесь с дополнительной информацией по помещению и коммерческим условиям!

Площадь 1 305 м²
Планировка Смешанная
Этаж 2 - 5

Описание

Преимущества
  • Класс А
  • Пешком от метро
  • Кондиционирование и вентиляция
  • Свой паркинг

Коммерческие условия

Арендная плата по запросу
Ставка арендной платы по запросу
Эксплуатационные расходы Включены в ставку
Налоги С учётом НДС
Тип договора Прямая аренда
Срок договора от 11 месяцев
Размер платежей 1 месяц
Обеспечительный платеж 1 месяц
Статус Сдан

О бизнес-центре

Класс А
Этажность 7
Лифты Есть
Общая площадь 3 253 м²
Год постройки 2008
Паркинг Подземный
Вентиляция приточно-вытяжная
Кондиционирование центральное
Телекоммуникации Интернет/Телефония

Расположение

Информация по помещению

Получите дополнительную информацию по помещению и коммерческом условиям!

Похожие предложения в других зданиях

БЕЗ КОМИССИИ ID: 20639 Рейтинг8.8 КлассB+

Москва, 4-й Голутвинский переулок, 1/8 с5

Полянка → 781 м
~ 8 мин
Арендная плата в месяц 3 779 667 ₽ 34 000 ₽/м² в год С учётом НДС
Характеристики 1 334 м² 4 этаж Готово к въезду
Преимущества
  • Класс B+
  • Пешком от метро
  • Кондиционирование и вентиляция
  • Свой паркинг

Предлагается в долгосрочную аренду офисный блок класса B+ площадью 1334 кв. метров в недавно отреконструированном бизнес-центре "Старый Двор"... подробнее

Презентация по предложению

Собираете информацию? Получите подробную презентацию в удобном формате!

БЕЗ КОМИССИИ ID: 188066 Рейтинг6.0 КлассB

Москва, улица Большая Якиманка, 23

Полянка → 349 м
~ 3 мин
Арендная плата в месяц 3 230 000 ₽ 30 000 ₽/м² в год С учётом НДС
Характеристики 1 292 м² 2 - 3 этаж Готово к въезду
Преимущества
  • Класс B
  • Пешком от метро
  • Свой паркинг

Сдаем в долгосрочную аренду помещение под офис класса B общей площадью 1292 кв.м в недавно отреконструированном бизнес-центре... подробнее

Презентация по предложению

Собираете информацию? Получите подробную презентацию в удобном формате!

БЕЗ КОМИССИИ ID: 1376358 Рейтинг7.2 КлассB

Москва, Берсеневская набережная, 6 с1

Полянка → 1.01 км
~ 10 мин
Арендная плата в месяц 3 520 839 ₽ 28 700 ₽/м² в год С учётом НДС
Характеристики 1 471 м² 3 - 5 этаж Готово к въезду
Преимущества
  • Класс B
  • Пешком от метро
  • Кондиционирование и вентиляция
  • Свой паркинг

Предлагается в долгосрочную прямую аренду помещение под офис класса B площадью 1471 кв.м в бизнес-центре "Красный Октябрь"... подробнее

Презентация по предложению

Собираете информацию? Получите подробную презентацию в удобном формате!

БЕЗ КОМИССИИ ID: 242115 Рейтинг8.5 КлассB+

Москва, улица Малая Полянка, 2

Полянка → 118 м
~ 1 мин
Арендная плата в месяц 3 281 875 ₽ 29 500 ₽/м² в год С учётом НДС
Характеристики 1 335 м² 2 этаж Готово к въезду
Преимущества
  • Класс B+
  • Пешком от метро
  • Кондиционирование и вентиляция
  • Свой паркинг
  • Несколько провайдеров связи

Предлагаем в долгосрочную аренду помещение под офис класса B+ общей площадью 1335 квадр. метров в бизнес-центре "Онегин"... подробнее

Презентация по предложению

Собираете информацию? Получите подробную презентацию в удобном формате!

БЕЗ КОМИССИИ ID: 1319763 Рейтинг8.8 КлассА

Москва, Пречистенская набережная, 17-19

Кропоткинская → 840 м
~ 8 мин
Арендная плата в месяц 3 334 800 ₽ 33 300 ₽/м² в год С учётом НДС
Характеристики 1 200 м² 2 этаж Готово к въезду
Преимущества
  • Класс А
  • Пешком от метро
  • Кондиционирование и вентиляция
  • Свой паркинг
  • Развитая инфраструктура

Предлагается в долгосрочную аренду помещение под офис класса А общей площадью 1200 квадратных метров в бизнес-центре "Баркли Плаза"... подробнее

>

Виртуальный тур

Презентация по предложению

Собираете информацию? Получите подробную презентацию в удобном формате!

Посмотреть все похожие предложения
Отнеситесь рационально к процессу поиска нового офиса!

Просто ответьте на 3 вопроса, и наши специалисты сами предложат оптимальные варианты под ваш бюджет

.