8.2
Смотреть все фото
БЕЗ КОМИССИИ ID: 301328 Рейтинг7.0 КлассB
Бизнес-центр «Донская 29/9»

Аренда офиса 640 м²

Москва, Донская улица, 29/9

Шаболовская → 340 м
~ 3 мин
Арендная плата в месяц 1 866 700 ₽ 35 000 ₽/м² в год С учётом НДС

Презентация по предложению

Собираете информацию? Получите подробную презентацию в удобном формате!

Площадь 640 м²
Состояние Готово к въезду
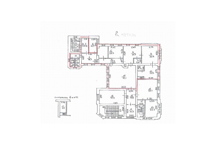
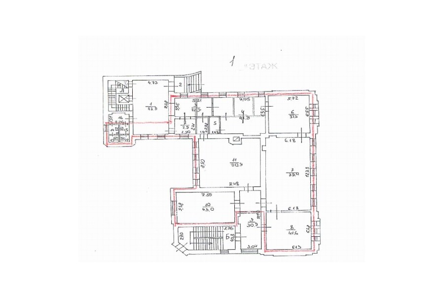
Планировка Кабинетная
Этаж 1 - 2

Описание

Преимущества
  • Класс B
  • Пешком от метро
  • Кондиционирование и вентиляция
Сдается в долгосрочную прямую аренду помещение под офис класса B площадью 640 кв. метров в бизнес-центре.

Москва, ЦАО, Донская улица, 29/9

Удобное расположение здания для всех видов транспорта:
- Автомобиль: близость транспортных магистралей, таких как Ленинский проспект и других.
- Ближайшее метро: от метро "Шаболовская" всего 6 мин пешком

Офис класса B:
- Офис с отделкой, полностью готов к аренде
- Вентиляция: Приточно-вытяжная вентиляция
- Кондиционирование: сплит-системы

Возможность заключения контракта в соответствии с 44ФЗ по госзакупкам.

Если данное предложение подходит Вашему запросу:

1. Получите презентацию в течение 10 минут в Whatsapp или на почту с фотографиями и планировкой, чтобы обсудить данный вариант с коллегами или переслать руководству. Для этого позвоните по телефону, указанному в объявлении.
2. Ответим на любые Ваши вопросы, готовы обсуждать любые предложения по коммерческим условиям аренды помещения.
3. Проводим показы ежедневно, договоримся на удобное для Вас время. Можем организовать виртуальный тур по офисному блоку.

Звоните нам в любое время. По будням мы сможем ответить на Ваши вопросы до 19:00. В выходные или вечернее время мы передадим Ваш контакт нашему менеджеру по аренде.

Коммерческие условия

Арендная плата 1 866 670 ₽
Ставка арендной платы 35 000 ₽ м²/год
Эксплуатационные расходы Включены в ставку
Налоги С учётом НДС
Тип договора Прямая аренда
Срок договора Долгосрочный
Размер платежей 1 месяц
Обеспечительный платеж 2 месяц
Статус Сдан

О бизнес-центре

Класс B
Этажность 3
Лифты Есть
Общая площадь 0 м²
Паркинг Наземный
Вентиляция приточно-вытяжная
Кондиционирование сплит-системы
Телекоммуникации Интернет/Телефония

Расположение

Подробная презентацию по предложению

Собираете информацию? Получите подробную презентацию в удобном формате, чтобы обсудить вариант с коллегами или переслать руководству!

Похожие предложения в других зданиях

БЕЗ КОМИССИИ ID: 1270297 Рейтинг8.1 КлассB+

Москва, улица Шухова, 14

Шаболовская → 559 м
~ 6 мин
Арендная плата в месяц 1 837 500 ₽ 36 800 ₽/м² в год С учётом НДС
Характеристики 600 м² 1 этаж Готово к въезду
Преимущества
  • Класс B+
  • Пешком от метро
  • Кондиционирование и вентиляция
  • Свой паркинг
  • Развитая инфраструктура

Предлагается в прямую аренду офисное помещение класса B+ площадью 600 квадр. метров в историческом недавно отреконструированном бизнес-центре "Шухова Плаза"... подробнее

Презентация по предложению

Собираете информацию? Получите подробную презентацию в удобном формате!

БЕЗ КОМИССИИ ID: 1128733 Рейтинг8.3 КлассB+

Москва, Люсиновская улица, 38

Серпуховская → 726 м
~ 7 мин
Арендная плата в месяц 1 547 500 ₽ 30 000 ₽/м² в год С учётом НДС
Характеристики 619 м² 1 - 4 этаж Готово к въезду
Преимущества
  • Класс B+
  • Пешком от метро
  • Новое строительство
  • Кондиционирование и вентиляция
  • Свой паркинг

Сдается в прямую аренду офис класса B+ общей площадью 619 кв. метров в современном бизнес-центре... подробнее

Презентация по предложению

Собираете информацию? Получите подробную презентацию в удобном формате!

БЕЗ КОМИССИИ ID: 186832 Рейтинг7.4 КлассB+

Москва, улица Коровий Вал, 1

Добрынинская → 27 м
~ 0 мин
Арендная плата в месяц 1 753 167 ₽ 31 400 ₽/м² в год С учётом НДС
Характеристики 670 м² 1 этаж Готово к въезду
Преимущества
  • Класс B+
  • Пешком от метро
  • Кондиционирование и вентиляция
  • Свой паркинг
  • Развитая инфраструктура

Предлагается в долгосрочную аренду офисное помещение класса B+ общей площадью 670 квадр. метров в бизнес-центре "Добрынинский"... подробнее

Презентация по предложению

Собираете информацию? Получите подробную презентацию в удобном формате!

ВОЗМОЖНО ОСВОБОЖДЕНИЕ ID: 217155 Рейтинг8.9 КлассА

Москва, Павловская улица, 7 с1

Серпуховская → 960 м
~ 10 мин
Арендная плата в месяц 2 065 000 ₽ 35 000 ₽/м² в год С учётом НДС
Характеристики 708 м² 5 этаж Готово к въезду
Преимущества
  • Класс А
  • Пешком от метро
  • Кондиционирование и вентиляция
  • Свой паркинг
  • Несколько провайдеров связи
  • Развитая инфраструктура

Сдается в прямую аренду офисное помещение класса А площадью 708 квадратных метров в бизнес-центре "Павловский 2"... подробнее

Презентация по предложению

Собираете информацию? Получите подробную презентацию в удобном формате!

БЕЗ КОМИССИИ ID: 1379504 Рейтинг7.4 КлассB

Москва, улица Орджоникидзе, 11 с1

Ленинский проспект → 712 м
~ 7 мин
Арендная плата в месяц 1 840 020 ₽ 32 800 ₽/м² в год С учётом НДС
Характеристики 674 м² 1 - 4 этаж Готово к въезду
Преимущества
  • Класс B
  • Пешком от метро
  • Кондиционирование и вентиляция
  • Свой паркинг
  • Несколько провайдеров связи
  • Развитая инфраструктура

Предлагается в долгосрочную прямую аренду офис класса B площадью 674 кв. метров в бизнес-центре... подробнее

Презентация по предложению

Собираете информацию? Получите подробную презентацию в удобном формате!

Посмотреть все похожие предложения
Отнеситесь рационально к процессу поиска нового офиса!

Просто ответьте на 3 вопроса, и наши специалисты сами предложат оптимальные варианты под ваш бюджет

.