8.2
Смотреть все фото
БЕЗ КОМИССИИ ID: 1215424 Рейтинг7.8 КлассB

Москва, улица Стасовой, 4

Ленинский проспект → 1.04 км
~ 10 мин
Арендная плата в месяц 419 600 ₽ 19 000 ₽/м² в год С учётом НДС

Презентация по предложению

Собираете информацию? Получите подробную презентацию в удобном формате!

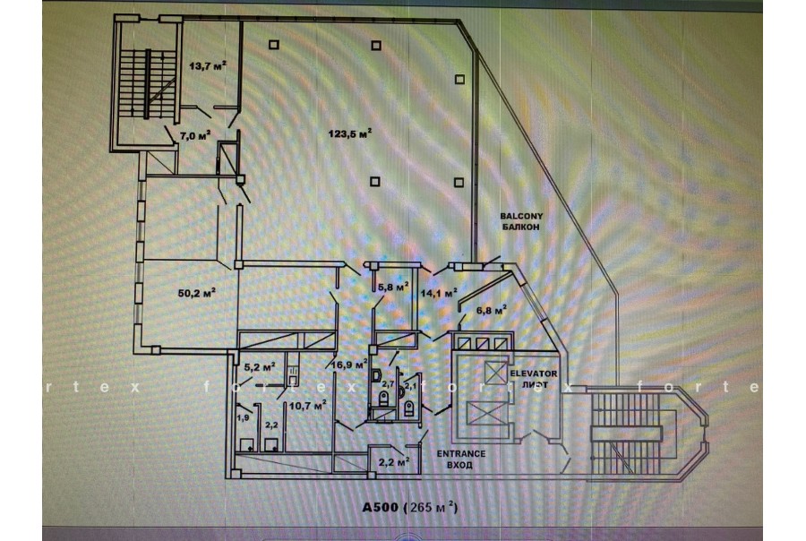
Площадь 265 м²
Состояние Готово к въезду
Планировка Смешанная
Этаж 6

Описание

Преимущества
  • Класс B
  • Пешком от метро
  • Кондиционирование и вентиляция
  • Свой паркинг
  • Развитая инфраструктура
Предлагаем в долгосрочную аренду офисный блок класса B площадью 265 квадратных метров в бизнес-центре "Донской Посад".

Москва, ЮАО, улица Стасовой, 4

Удобная локация здания:
- Автомобиль: близость транспортных магистралей, таких как Ленинский проспект, Третье Транспортное Кольцо и других.
- Возможность аренды парковочных мест.
- Ближайшее метро: от метро "Ленинский проспект" всего 10 мин пешком

Офис класса B:
- Помещение с отделкой, готово к въезду
- Вентиляция: Приточно-вытяжная вентиляция
- Кондиционирование: центральное
- Развитая инфраструктура внутри здания


Если предложение предварительно Вам подходит:

1. Мы отправим Вам подробную презентацию с планировкой и фотографиями в течение 10 минут после звонка, чтобы Вы могли поделиться информацией с руководством или с коллегами.
2. Ответим на любые Ваши вопросы, готовы обсуждать любые предложения по коммерческим условиям аренды помещения.
3. Покажем помещение в удобное для Вас время с менеджером в здании, при необходимости подготовим виртуальный тур.

Звоните нам в любое время. По будням мы сможем ответить на Ваши вопросы до 19:00. В выходные или вечернее время мы передадим Ваш контакт нашему менеджеру по аренде.

Коммерческие условия

Арендная плата 511 890 ₽
Ставка арендной платы 19 000 ₽ м²/год
Эксплуатационные расходы Включены в ставку
Налоги С учётом НДС
Тип договора Прямая аренда
Срок договора от 11 месяцев
Размер платежей 1 месяц
Обеспечительный платеж 1 месяц
Статус Сдан

О бизнес-центре

Класс B
Этажность 10
Лифты Есть
Общая площадь 2 535 м²
Паркинг Подземный
Вентиляция приточно-вытяжная
Кондиционирование центральное
Телекоммуникации Интернет/Телефония

Расположение

Подробная презентацию по предложению

Собираете информацию? Получите подробную презентацию в удобном формате, чтобы обсудить вариант с коллегами или переслать руководству!

Похожие предложения в других зданиях

БЕЗ КОМИССИИ ID: 287630 Рейтинг4.8 КлассB

Москва, улица Шаболовка, 34 с5

Шаболовская → 554 м
~ 6 мин
Арендная плата в месяц 520 000 ₽ 20 800 ₽/м² в год С учётом НДС
Характеристики 300 м² 1 этаж Готово к въезду
Преимущества
  • Класс B
  • Пешком от метро
  • Развитая инфраструктура

Сдается в прямую аренду офисное помещение класса B общей площадью 300 квадр. метров в историческом бизнес-центре... подробнее

Презентация по предложению

Собираете информацию? Получите подробную презентацию в удобном формате!

БЕЗ КОМИССИИ ID: 78072 Рейтинг6.1 КлассB+

Москва, улица Шаболовка, 12

Шаболовская → 546 м
~ 5 мин
Арендная плата в месяц 507 500 ₽ 21 000 ₽/м² в год С учётом НДС
Характеристики 290 м² 1 - 2 этаж Готово к въезду
Преимущества
  • Класс B+
  • Пешком от метро
  • Кондиционирование и вентиляция

Предлагаем в долгосрочную аренду офисный блок класса B+ общей площадью 290 кв.м в историческом бизнес-центре... подробнее

Презентация по предложению

Собираете информацию? Получите подробную презентацию в удобном формате!

БЕЗ КОМИССИИ ID: 109451 Рейтинг5.6 КлассB

Москва, 4-й Рощинский проезд, 19 с3

Тульская → 971 м
~ 10 мин
Арендная плата в месяц 512 500 ₽ 20 500 ₽/м² в год С учётом НДС
Характеристики 300 м² 3 этаж Готово к въезду
Преимущества
  • Класс B
  • Пешком от метро
  • Кондиционирование и вентиляция
  • Свой паркинг

Сдается в прямую аренду офис класса B общей площадью 300 квадр. метров в бизнес-центре... подробнее

Презентация по предложению

Собираете информацию? Получите подробную презентацию в удобном формате!

БЕЗ КОМИССИИ ID: 5492 Рейтинг9.0 КлассB+

Москва, 4-й Добрынинский переулок, 8

Добрынинская → 587 м
~ 6 мин
Арендная плата в месяц 488 333 ₽ 20 000 ₽/м² в год С учётом НДС
Характеристики 293 м² 1 этаж Готово к въезду
Преимущества
  • Класс B+
  • Пешком от метро
  • Кондиционирование и вентиляция
  • Свой паркинг
  • Несколько провайдеров связи
  • Развитая инфраструктура

Сдается в долгосрочную аренду помещение под офис класса B+ общей площадью 293 квадр. метров в бизнес-центре "Добрыня"... подробнее

Презентация по предложению

Собираете информацию? Получите подробную презентацию в удобном формате!

Посмотреть все похожие предложения
Отнеситесь рационально к процессу поиска нового офиса!

Просто ответьте на 3 вопроса, и наши специалисты сами предложат оптимальные варианты под ваш бюджет

.