8.2

Виртуальный тур

Смотреть все фото
БЕЗ КОМИССИИ ID: 504977 Рейтинг8.7 КлассА
Бизнес-центр «Дукат Плейс 2»

Аренда офиса 187 м²

Москва, улица Гашека, 7 с1

Маяковская → 770 м
~ 8 мин
Арендная плата в месяц 498 700 ₽ 32 000 ₽/м² в год С учётом НДС

Презентация по предложению

Собираете информацию? Получите подробную презентацию в удобном формате!

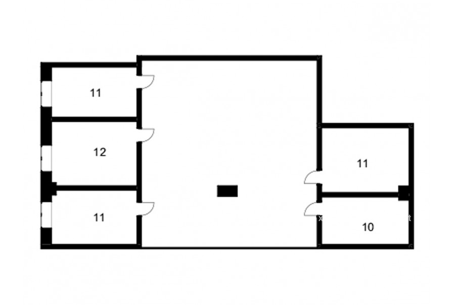
Площадь 187 м²
Состояние Готово к въезду
Планировка Смешанная
Этаж 6

Описание

Преимущества
  • Класс А
  • Пешком от метро
  • Кондиционирование и вентиляция
  • Свой паркинг
  • Несколько провайдеров связи
  • Развитая инфраструктура
Сдается в долгосрочную прямую аренду помещение под офис класса А площадью 187 квадратных метров в бизнес-центре "Дукат Плейс 2".

Москва, ЦАО, улица Гашека, 7 с1

Удобная локация здания:
- Автомобиль: близость транспортных магистралей, таких как Садовое Кольцо и других.
- Возможность аренды парковочных мест.
- Ближайшее метро: от метро "Маяковская" всего 8 мин пешком

Офис класса А:
- Помещение готово к въезду
- Вентиляция: Приточно-вытяжная вентиляция
- Кондиционирование: центральное
- Презентабельный центральный ресепшн
- Круглосуточная охрана и видеонаблюдение
- Развитая инфраструктура внутри здания


Если предложение предварительно Вам подходит:

1. Мы отправим Вам подробную презентацию с планировкой и фотографиями в течение 10 минут после звонка, чтобы Вы могли поделиться информацией с руководством или с коллегами.
2. Задайте любые вопросы менеджеру по телефону, готовы обсуждать любые предложения по финансовым условиям договора аренды.
3.

Звоните нам в любое время. По будням мы сможем ответить на Ваши вопросы до 19:00. В выходные или вечернее время мы передадим Ваш контакт нашему менеджеру по аренде.

Коммерческие условия

Арендная плата 789 270 ₽
Ставка арендной платы 32 000 ₽ м²/год
Эксплуатационные расходы Включены в ставку
Налоги С учётом НДС
Тип договора Прямая аренда
Срок договора от 11 месяцев
Размер платежей 1 месяц
Обеспечительный платеж 3 месяц
Статус Сдан

О бизнес-центре

Класс А
Этажность 10
Лифты Есть
Общая площадь 19 207 м²
Год постройки 1997
Паркинг Подземный
Вентиляция приточно-вытяжная
Кондиционирование центральное
Телекоммуникации Интернет/Телефония

Расположение

Подробная презентацию по предложению

Собираете информацию? Получите подробную презентацию в удобном формате, чтобы обсудить вариант с коллегами или переслать руководству!

Похожие предложения в других зданиях

БЕЗ КОМИССИИ ID: 1290193 Рейтинг6.8 КлассB

Москва, 2-я Брестская улица, 5

Маяковская → 646 м
~ 6 мин
Арендная плата в месяц 605 000 ₽ 33 000 ₽/м² в год С учётом НДС
Характеристики 220 м² 3 этаж Готово к въезду
Преимущества
  • Класс B
  • Пешком от метро
  • Кондиционирование и вентиляция
  • Свой паркинг

Сдаем в долгосрочную аренду офисный блок класса B площадью 1400 кв. метров в бизнес-центре... подробнее

Презентация по предложению

Собираете информацию? Получите подробную презентацию в удобном формате!

БЕЗ КОМИССИИ ID: 1290464 Рейтинг8.2 КлассB+

Москва, 1-я Брестская улица, 22

Маяковская → 408 м
~ 4 мин
Арендная плата в месяц 557 333 ₽ 35 200 ₽/м² в год С учётом НДС
Характеристики 190 м² 7 этаж Готово к въезду
Преимущества
  • Класс B+
  • Пешком от метро
  • Кондиционирование и вентиляция
  • Свой паркинг

Предлагается в долгосрочную прямую аренду офис класса B+ общей площадью 190 кв.м в бизнес-центре "На Брестской"... подробнее

Презентация по предложению

Собираете информацию? Получите подробную презентацию в удобном формате!

ВОЗМОЖНО ОСВОБОЖДЕНИЕ ID: 72396 Рейтинг8.2 КлассB+

Москва, 1-я Брестская улица, 22

Маяковская → 408 м
~ 4 мин
Арендная плата в месяц 517 500 ₽ 30 000 ₽/м² в год С учётом НДС
Характеристики 207 м² 6 этаж Готово к въезду
Преимущества
  • Класс B+
  • Пешком от метро
  • Кондиционирование и вентиляция
  • Свой паркинг

Предлагаем в долгосрочную аренду помещение под офис класса B+ площадью 207 квадр. метров в бизнес-центре "На Брестской"... подробнее

Презентация по предложению

Собираете информацию? Получите подробную презентацию в удобном формате!

БЕЗ КОМИССИИ ID: 1302556 Рейтинг6.7 КлассB

Москва, Ермолаевский переулок, 5 с2

Маяковская → 793 м
~ 8 мин
Арендная плата в месяц 525 000 ₽ 31 500 ₽/м² в год С учётом НДС
Характеристики 200 м² 5 этаж Готово к въезду
Преимущества
  • Класс B
  • Пешком от метро
  • Кондиционирование и вентиляция

Предлагается в прямую аренду офис класса B площадью 200 квадр. метров в бизнес-центре... подробнее

Презентация по предложению

Собираете информацию? Получите подробную презентацию в удобном формате!

БЕЗ КОМИССИИ ID: 128438 Рейтинг7.3 КлассB

Москва, Большая Грузинская улица, 38 с1

Краснопресненская → 1.11 км
~ 11 мин
Арендная плата в месяц 583 333 ₽ 35 000 ₽/м² в год С учётом НДС
Характеристики 200 м² 1 этаж Готово к въезду
Преимущества
  • Класс B
  • Пешком от метро
  • Кондиционирование и вентиляция
  • Свой паркинг

Сдается в долгосрочную прямую аренду офис класса B общей площадью 200 квадр. метров в недавно отреконструированном бизнес-центре... подробнее

Презентация по предложению

Собираете информацию? Получите подробную презентацию в удобном формате!

Посмотреть все похожие предложения
Отнеситесь рационально к процессу поиска нового офиса!

Просто ответьте на 3 вопроса, и наши специалисты сами предложат оптимальные варианты под ваш бюджет

.