8.2

Виртуальный тур

Смотреть все фото
БЕЗ КОМИССИИ ID: 1200568 Рейтинг7.7 КлассB+
Бизнес-центр «Дукс»

Аренда офиса 541 м²

Москва, улица Правды, 8 к13

Савёловская → 1.44 км
~ 14 мин
Арендная плата в месяц 1 009 900 ₽ 22 400 ₽/м² в год С учётом НДС

Презентация по предложению

Собираете информацию? Получите подробную презентацию в удобном формате!

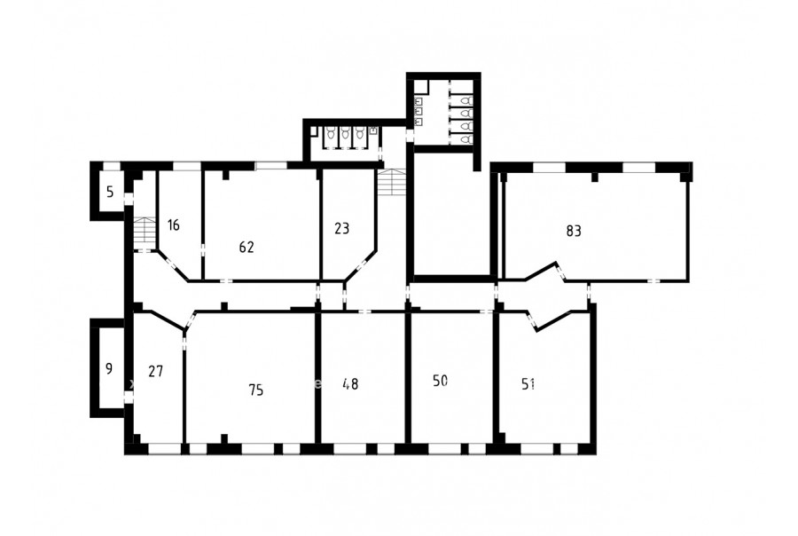
Площадь 541 м²
Состояние Готово к въезду
Планировка Кабинетная
Этаж 2

Описание

Преимущества
  • Класс B+
  • Пешком от метро
  • Кондиционирование и вентиляция
  • Несколько провайдеров связи
  • Развитая инфраструктура
Собственник сдает в долгосрочную прямую аренду офис класса B+ общей площадью 541 кв. метров в недавно отреконструированном бизнес-центре "Дукс".

Москва, САО, улица Правды, 8 к13

Удобная локация здания:
- Автомобиль: близость транспортных магистралей, таких как Ленинградский проспект, Третье Транспортное Кольцо, Бутырская улица и других.
- Возможность аренды парковочных мест.
- Ближайшее метро: от метро "Савёловская" всего 15 мин пешком

Офис класса B+:
- Офис с отделкой, полностью готов к аренде
- Вентиляция: Приточно-вытяжная вентиляция
- Кондиционирование: центральное
- Круглосуточная охрана и видеонаблюдение
- Развитая инфраструктура внутри здания

Возможность заключения контракта в соответствии с 44ФЗ по госзакупкам.

Если данное предложение подходит Вашему запросу:

1. Мы подготовили презентацию с информацией о помещении, фотографиями и планировкой, чтобы Вы могли поделиться ей с коллегами или руководством. Попросите об этом нашего менеджера по телефону в объявлении.
2. Задайте любые вопросы менеджеру по телефону, готовы обсуждать любые предложения по финансовым условиям договора аренды.
3.

Вы можете позвонить нам в любое время. Мы ответим на Ваши вопросы по будням до 19:00, а поздно вечером или в выходные сможем передать Ваш контакт нашему менеджеру.

Коммерческие условия

Арендная плата 1 009 870 ₽
Ставка арендной платы 22 400 ₽ м²/год
Эксплуатационные расходы Включены в ставку
Налоги С учётом НДС
Тип договора Прямая аренда
Срок договора от 11 месяцев
Размер платежей 1 месяц
Обеспечительный платеж 2 месяц
Статус Сдан

О бизнес-центре

Класс B+
Этажность 8
Лифты Есть
Общая площадь 20 717 м²
Год постройки 1999
Паркинг Наземный и подземный
Вентиляция приточно-вытяжная
Кондиционирование центральное
Телекоммуникации Интернет/Телефония

Расположение

Подробная презентацию по предложению

Собираете информацию? Получите подробную презентацию в удобном формате, чтобы обсудить вариант с коллегами или переслать руководству!

Похожие предложения в других зданиях

ВОЗМОЖНО ОСВОБОЖДЕНИЕ ID: 288657 Рейтинг7.5 КлассB

Москва, 3-я улица Ямского Поля, 20 с2

Белорусская → 963 м
~ 10 мин
Арендная плата в месяц 878 750 ₽ 19 000 ₽/м² в год С учётом НДС
Характеристики 555 м² 1 - 3 этаж Готово к въезду
Преимущества
  • Класс B
  • Пешком от метро
  • Кондиционирование и вентиляция
  • Свой паркинг

Сдается в долгосрочную прямую аренду офисный блок класса B площадью 555 квадр. метров в бизнес-центре... подробнее

Презентация по предложению

Собираете информацию? Получите подробную презентацию в удобном формате!

БЕЗ КОМИССИИ ID: 297653 Рейтинг5.2 КлассB

Москва, 1-я улица Ямского Поля, 17 к12

Белорусская → 909 м
~ 9 мин
Арендная плата в месяц 947 833 ₽ 22 000 ₽/м² в год С учётом НДС
Характеристики 517 м² 3 этаж Готово к въезду
Преимущества
  • Класс B
  • Пешком от метро

Предлагаем в долгосрочную аренду офис класса B общей площадью 517 кв. метров в бизнес-центре... подробнее

Презентация по предложению

Собираете информацию? Получите подробную презентацию в удобном формате!

БЕЗ КОМИССИИ ID: 303395 Рейтинг7.6 КлассB

Москва, улица Бутырский Вал, 68/70 с2

Савеловская → 633 м
~ 6 мин
Арендная плата в месяц 812 000 ₽ 21 000 ₽/м² в год С учётом НДС
Характеристики 464 м² 6 этаж Готово к въезду
Преимущества
  • Класс B
  • Пешком от метро
  • Кондиционирование и вентиляция

Предлагаем в долгосрочную аренду офис класса B площадью 464 квадр. метров в бизнес-центре... подробнее

>

Виртуальный тур

Презентация по предложению

Собираете информацию? Получите подробную презентацию в удобном формате!

ВОЗМОЖНО ОСВОБОЖДЕНИЕ ID: 46126 Рейтинг6.1 КлассB

Москва, Ленинградский проспект, 24 с3

Белорусская → 1.01 км
~ 10 мин
Арендная плата в месяц 1 035 000 ₽ 23 000 ₽/м² в год С учётом НДС
Характеристики 540 м² 1 этаж Готово к въезду
Преимущества
  • Класс B
  • Пешком от метро
  • Кондиционирование и вентиляция

Предлагается в долгосрочную аренду офисное помещение класса B площадью 540 кв.м в бизнес-центре... подробнее

Презентация по предложению

Собираете информацию? Получите подробную презентацию в удобном формате!

БЕЗ КОМИССИИ ID: 190574 Рейтинг7.7 КлассB

Москва, Ленинградский проспект, 14 к2

Белорусская → 669 м
~ 7 мин
Арендная плата в месяц 1 000 500 ₽ 20 700 ₽/м² в год С учётом НДС
Характеристики 580 м² 1 - 2 этаж Готово к въезду
Преимущества
  • Класс B
  • Пешком от метро
  • Свежая реконструкция
  • Кондиционирование и вентиляция
  • Свой паркинг

Сдается в долгосрочную прямую аренду помещение под офис класса B площадью 580 квадратных метров в историческом недавно отреконструированном бизнес-центре... подробнее

Презентация по предложению

Собираете информацию? Получите подробную презентацию в удобном формате!

Посмотреть все похожие предложения
Отнеситесь рационально к процессу поиска нового офиса!

Просто ответьте на 3 вопроса, и наши специалисты сами предложат оптимальные варианты под ваш бюджет

.