8.2
Смотреть все фото
ВОЗМОЖНО ОСВОБОЖДЕНИЕ ID: 163393 Рейтинг9.2 КлассА
Бизнес-центр «Двинцев»

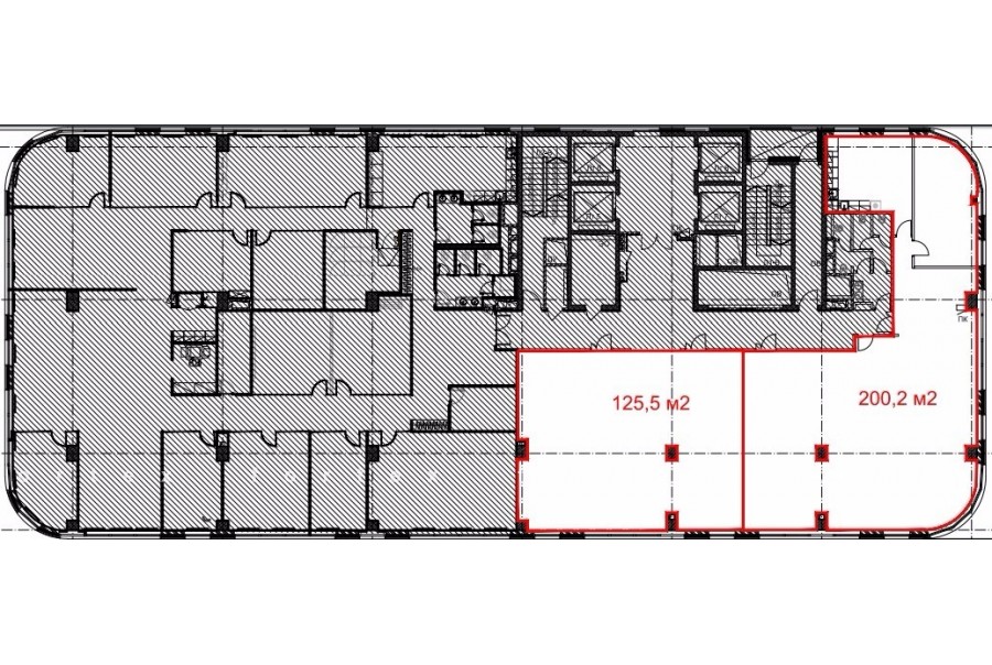
Аренда офиса 200 м²

Москва, улица Двинцев, 12 к1А

Савеловская → 846 м
~ 10 мин
Арендная плата в месяц по запросу потенциального арендатора Срок освобождение в течение 3 месяцев

Информация по помещению

Ознакомьтесь с дополнительной информацией по помещению и коммерческим условиям!

Площадь 200 м²
Планировка Открытая
Этаж 8

Описание

Преимущества
  • Класс А
  • Пешком от метро
  • Кондиционирование и вентиляция
  • Свой паркинг
  • Несколько провайдеров связи
  • Развитая инфраструктура

Коммерческие условия

Арендная плата по запросу
Ставка арендной платы по запросу
Эксплуатационные расходы Включены в ставку
Налоги С учётом НДС
Тип договора Прямая аренда
Срок договора Долгосрочный
Размер платежей 3 месяц
Обеспечительный платеж 3 месяц
Статус Сдан

О бизнес-центре

Класс А
Этажность 14
Лифты Есть
Общая площадь 57 848 м²
Год постройки 2008
Паркинг Подземный
Вентиляция приточно-вытяжная
Кондиционирование центральное
Телекоммуникации Интернет/Телефония

Расположение

Информация по помещению

Получите дополнительную информацию по помещению и коммерческом условиям!

Похожие предложения в других зданиях

БЕЗ КОМИССИИ ID: 1327934 Рейтинг8.8 КлассА

Москва, улица Сущёвский Вал, 18

Марьина Роща → 926 м
~ 9 мин
Арендная плата в месяц 1 120 006 ₽ 66 900 ₽/м² в год С учётом НДС
Характеристики 201 м² 4 этаж Готово к въезду
Преимущества
  • Класс А
  • Пешком от метро
  • Кондиционирование и вентиляция
  • Свой паркинг
  • Несколько провайдеров связи
  • Развитая инфраструктура

Предлагается в прямую аренду высококачественный сервисный офис на 28 рабочих мест в бизнес-центре "NOVO"... подробнее

Презентация по предложению

Собираете информацию? Получите подробную презентацию в удобном формате!

БЕЗ КОМИССИИ ID: 916896 Рейтинг7.8 КлассB+

Москва, Лесная улица, 43

Белорусская → 559 м
~ 6 мин
Арендная плата в месяц 1 047 075 ₽ 60 700 ₽/м² в год С учётом НДС
Характеристики 207 м² 4 этаж Готово к въезду
Преимущества
  • Класс B+
  • Пешком от метро
  • Кондиционирование и вентиляция
  • Свой паркинг
  • Несколько провайдеров связи
  • Развитая инфраструктура

Сдается в аренду офисное помещение класса B+ площадью 207 квадр. метров в историческом недавно отреконструированном бизнес-центре... подробнее

>

Виртуальный тур

Презентация по предложению

Собираете информацию? Получите подробную презентацию в удобном формате!

БЕЗ КОМИССИИ ID: 1378216 Рейтинг7.8 КлассB+

Москва, Лесная улица, 43

Белорусская → 559 м
~ 6 мин
Арендная плата в месяц 1 002 083 ₽ 65 000 ₽/м² в год С учётом НДС
Характеристики 185 м² 1 этаж Готово к въезду
Преимущества
  • Класс B+
  • Пешком от метро
  • Кондиционирование и вентиляция
  • Свой паркинг
  • Несколько провайдеров связи
  • Развитая инфраструктура

Предлагается в прямую аренду офисный блок класса B+ площадью 185 кв.м в историческом недавно отреконструированном бизнес-центре... подробнее

Презентация по предложению

Собираете информацию? Получите подробную презентацию в удобном формате!

ВОЗМОЖНО ОСВОБОЖДЕНИЕ ID: 110241 Рейтинг8.4 КлассА

Москва, улица Щепкина, 42 с2А

Проспект Мира → 448 м
~ 4 мин
Арендная плата в месяц 943 333 ₽ 56 600 ₽/м² в год С учётом НДС
Характеристики 200 м² 4 этаж Готово к въезду
Преимущества
  • Класс А
  • Пешком от метро
  • Кондиционирование и вентиляция
  • Свой паркинг
  • Несколько провайдеров связи
  • Развитая инфраструктура

Сдается в долгосрочную аренду офисный блок класса А общей площадью 200 квадратных метров в бизнес-центре "Чайка Плаза 4"... подробнее

Презентация по предложению

Собираете информацию? Получите подробную презентацию в удобном формате!

БЕЗ КОМИССИИ ID: 297933 Рейтинг8.2 КлассА

Москва, улица Малая Дмитровка, 20

Маяковская → 686 м
~ 7 мин
Арендная плата в месяц 1 125 000 ₽ 60 000 ₽/м² в год С учётом НДС
Характеристики 225 м² 1 этаж Готово к въезду
Преимущества
  • Класс А
  • Пешком от метро
  • Кондиционирование и вентиляция
  • Свой паркинг
  • Развитая инфраструктура

Сдаем в долгосрочную аренду помещение под офис класса А площадью 225 кв.м в бизнес-центре "Школа журналистов"... подробнее

Презентация по предложению

Собираете информацию? Получите подробную презентацию в удобном формате!

Посмотреть все похожие предложения
Отнеситесь рационально к процессу поиска нового офиса!

Просто ответьте на 3 вопроса, и наши специалисты сами предложат оптимальные варианты под ваш бюджет

.