8.2

Виртуальный тур

Смотреть все фото
ВОЗМОЖНО ОСВОБОЖДЕНИЕ ID: 281404 Рейтинг8.4 КлассB+
Бизнес-центр «ЕПК»

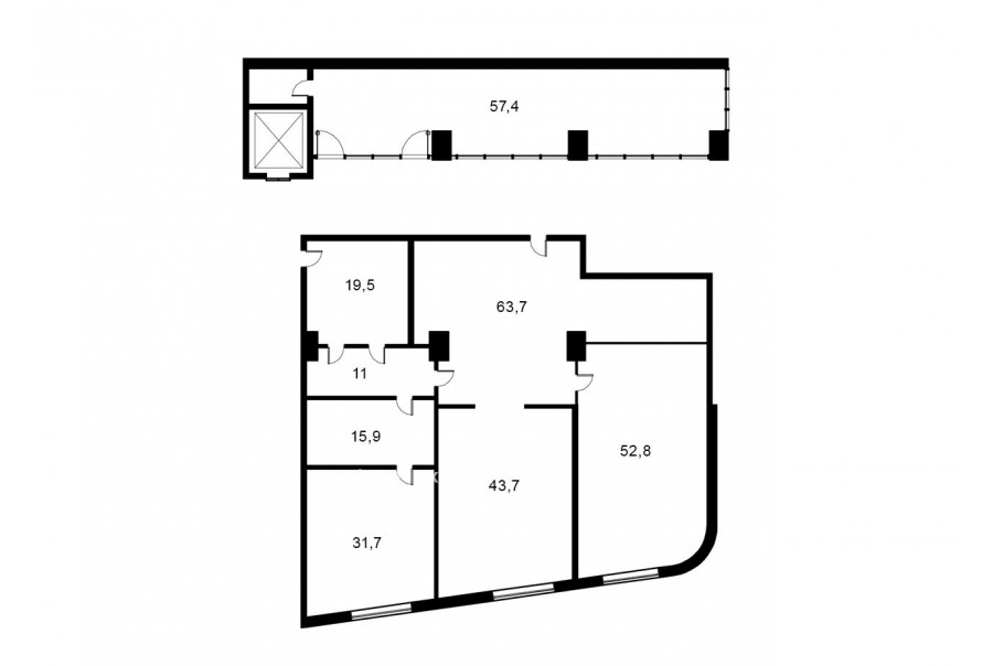
Аренда офиса 296 м²

Москва, Шарикоподшипниковская улица, 13 с2

Дубровка → 39 м
~ 0 мин
Арендная плата в месяц по запросу потенциального арендатора Срок освобождение в течение 3 месяцев

Информация по помещению

Ознакомьтесь с дополнительной информацией по помещению и коммерческим условиям!

Площадь 296 м²
Планировка Кабинетная
Этаж 1

Описание

Преимущества
  • Класс B+
  • Пешком от метро
  • Кондиционирование и вентиляция
  • Свой паркинг

Коммерческие условия

Арендная плата по запросу
Ставка арендной платы по запросу
Эксплуатационные расходы Включены в ставку
Налоги С учётом НДС
Тип договора Субаренда
Срок договора от 11 месяцев
Размер платежей 1 месяц
Обеспечительный платеж 2 месяц
Статус Сдан

О бизнес-центре

Класс B+
Этажность 7
Лифты Есть
Общая площадь 5 541 м²
Год постройки 1973
Паркинг Наземный
Вентиляция приточно-вытяжная
Кондиционирование центральное
Телекоммуникации Интернет/Телефония

Расположение

Информация по помещению

Получите дополнительную информацию по помещению и коммерческом условиям!

Похожие предложения в других зданиях

БЕЗ КОМИССИИ ID: 511332 Рейтинг6.8 КлассB

Москва, Шарикоподшипниковская улица, 13 с5

Дубровка → 319 м
~ 3 мин
Арендная плата в месяц 511 417 ₽ 19 000 ₽/м² в год С учётом НДС
Характеристики 323 м² 3 - 4 этаж Под отделку
Преимущества
  • Класс B
  • Пешком от метро
  • Кондиционирование и вентиляция

Предлагается в прямую аренду офисное помещение класса B площадью 323 квадр. метров в бизнес-центре... подробнее

Презентация по предложению

Собираете информацию? Получите подробную презентацию в удобном формате!

БЕЗ КОМИССИИ ID: 137140 Рейтинг8.1 КлассB

Москва, улица Ленинская Слобода, 26

Автозаводская → 550 м
~ 7 мин
Арендная плата в месяц 495 250 ₽ 21 000 ₽/м² в год С учётом НДС
Характеристики 283 м² 4 этаж Готово к въезду
Преимущества
  • Класс B
  • Пешком от метро
  • Кондиционирование и вентиляция
  • Свой паркинг
  • Развитая инфраструктура

Предлагается в долгосрочную аренду помещение под офис класса B площадью 283 квадратных метров в новом недавно отреконструированном бизнес-центре "Омега-2"... подробнее

Презентация по предложению

Собираете информацию? Получите подробную презентацию в удобном формате!

БЕЗ КОМИССИИ ID: 1378545 Рейтинг5.5 КлассB

Москва, Скотопрогонная улица, 29/1

Новохохловская → 1.95 км
~ 12 мин
Арендная плата в месяц 459 226 ₽ 17 800 ₽/м² в год Упрощённая система налогообложения
Характеристики 309 м² 1 - 5 этаж Готово к въезду
Преимущества
  • Класс B
  • Кондиционирование и вентиляция
  • Свой паркинг
  • Несколько провайдеров связи
  • Развитая инфраструктура

Сдается в прямую аренду помещение под офис класса B площадью 309 квадр. метров в историческом бизнес-центре... подробнее

Презентация по предложению

Собираете информацию? Получите подробную презентацию в удобном формате!

БЕЗ КОМИССИИ ID: 1378526 Рейтинг5.5 КлассB

Москва, Скотопрогонная улица, 29/1

Новохохловская → 1.95 км
~ 12 мин
Арендная плата в месяц 405 333 ₽ 19 000 ₽/м² в год Упрощённая система налогообложения
Характеристики 256 м² 1 этаж Готово к въезду
Преимущества
  • Класс B
  • Кондиционирование и вентиляция
  • Свой паркинг
  • Несколько провайдеров связи
  • Развитая инфраструктура

Сдается в долгосрочную аренду офис класса B общей площадью 256 кв. метров в историческом бизнес-центре... подробнее

>

Виртуальный тур

Презентация по предложению

Собираете информацию? Получите подробную презентацию в удобном формате!

ВОЗМОЖНО ОСВОБОЖДЕНИЕ ID: 269476 Рейтинг7.6 КлассB+

Москва, Павелецкая набережная, 8

Павелецкая → 3.81 км
~ 21 мин
Арендная плата в месяц 425 333 ₽ 16 000 ₽/м² в год С учётом НДС
Характеристики 319 м² 7 этаж Готово к въезду
Преимущества
  • Класс B+
  • Кондиционирование и вентиляция
  • Свой паркинг

Предлагаем в долгосрочную аренду офис класса B+ общей площадью 319 кв.м в бизнес-центре "AFI на Павелецкой"... подробнее

Презентация по предложению

Собираете информацию? Получите подробную презентацию в удобном формате!

Посмотреть все похожие предложения
Отнеситесь рационально к процессу поиска нового офиса!

Просто ответьте на 3 вопроса, и наши специалисты сами предложат оптимальные варианты под ваш бюджет

.