8.2

Виртуальный тур

Смотреть все фото
БЕЗ КОМИССИИ ID: 1251224 Рейтинг9.1 КлассА
Бизнес-центр «Эрмитаж Плаза»

Аренда офиса 1700 м²

Москва, Краснопролетарская улица, 4

Новослободская → 879 м
~ 9 мин
Арендная плата в месяц 6 464 000 ₽ 45 600 ₽/м² в год С учётом НДС

Презентация по предложению

Собираете информацию? Получите подробную презентацию в удобном формате!

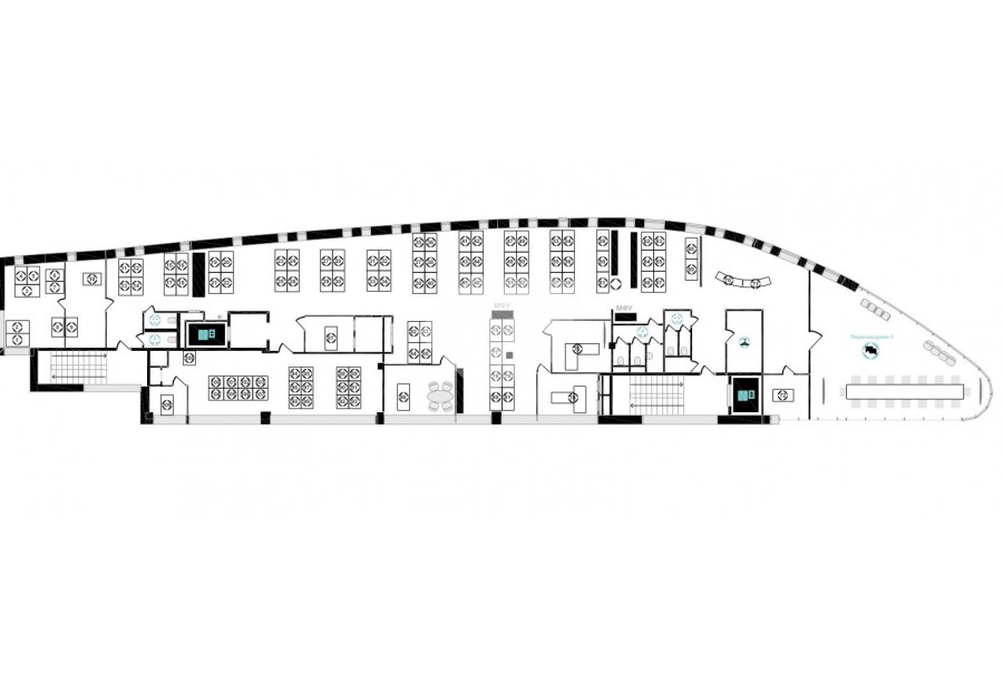
Площадь 1 700 м²
Состояние Готово к въезду
Планировка Смешанная
Этаж 2 - 3

Описание

Преимущества
  • Класс А
  • Пешком от метро
  • Кондиционирование и вентиляция
  • Свой паркинг
  • Развитая инфраструктура
Предлагается в прямую аренду офисное помещение класса А площадью 1700 кв.м в бизнес-центре "Эрмитаж Плаза".

Москва, ЦАО, Краснопролетарская улица, 4

Удобная локация здания:
- Автомобиль: близость транспортных магистралей, таких как Садовое Кольцо и других.
- Возможность аренды парковочных мест.
- Ближайшее метро: от метро "Новослободская" всего 9 мин пешком

Офис класса А:
- Помещение готово к въезду
- Вентиляция: Приточно-вытяжная вентиляция
- Кондиционирование: центральное
- Развитая инфраструктура внутри здания

Возможность заключения контракта в соответствии с 44ФЗ по госзакупкам.

Если предложение предварительно Вам подходит:

1. Получите презентацию в течение 10 минут в Whatsapp или на почту с фотографиями и планировкой, чтобы обсудить данный вариант с коллегами или переслать руководству. Для этого позвоните по телефону, указанному в объявлении.
2. Мы готовы ответить на любые Ваши вопросы о помещении и коммерческих условиях аренды.
3. Проводим показы ежедневно, договоримся на удобное для Вас время. Можем организовать виртуальный тур по офисному блоку.

Звоните нам в любое время. По будням мы сможем ответить на Ваши вопросы до 19:00. В выходные или вечернее время мы передадим Ваш контакт нашему менеджеру по аренде.

Коммерческие условия

Арендная плата 5 876 330 ₽
Ставка арендной платы 45 600 ₽ м²/год
Эксплуатационные расходы Включены в ставку
Налоги С учётом НДС
Тип договора Прямая аренда
Срок договора Долгосрочный
Размер платежей 1 месяц
Обеспечительный платеж 1 месяц
Статус Сдан

О бизнес-центре

Класс А
Этажность 8
Лифты Есть
Общая площадь 43 400 м²
Год постройки 2006
Паркинг Подземный
Вентиляция приточно-вытяжная
Кондиционирование центральное
Телекоммуникации Интернет/Телефония

Расположение

Подробная презентацию по предложению

Собираете информацию? Получите подробную презентацию в удобном формате, чтобы обсудить вариант с коллегами или переслать руководству!

Похожие предложения в других зданиях

БЕЗ КОМИССИИ ID: 1284603 Рейтинг7.7 КлассB

Москва, улица Каретный Ряд, 8

Маяковская → 946 м
~ 9 мин
Арендная плата в месяц 6 600 000 ₽ 44 000 ₽/м² в год С учётом НДС
Характеристики 1 800 м² 3 - 4 этаж Готово к въезду
Преимущества
  • Класс B
  • Пешком от метро
  • Кондиционирование и вентиляция

Сдаем в долгосрочную прямую аренду офисное помещение класса B площадью 1800 кв.м в бизнес-центре... подробнее

Презентация по предложению

Собираете информацию? Получите подробную презентацию в удобном формате!

БЕЗ КОМИССИИ ID: 1303305 Рейтинг8.9 КлассА

Москва, Долгоруковская улица, 7

Новослободская → 687 м
~ 7 мин
Арендная плата в месяц 5 614 621 ₽ 46 300 ₽/м² в год С учётом НДС
Характеристики 1 454 м² 3 - 10 этаж Готово к въезду
Преимущества
  • Класс А
  • Пешком от метро
  • Кондиционирование и вентиляция
  • Развитая инфраструктура

Сдается в прямую аренду помещение под офис класса А общей площадью 1454 кв. метров в бизнес-центре "Садовая Плаза"... подробнее

Презентация по предложению

Собираете информацию? Получите подробную презентацию в удобном формате!

БЕЗ КОМИССИИ ID: 1301553 Рейтинг4.0 КлассB

Москва, Малый Каретный переулок, 11

Цветной бульвар → 472 м
~ 5 мин
Арендная плата в месяц 6 689 550 ₽ 48 300 ₽/м² в год С учётом НДС
Характеристики 1 662 м² -1 - 4 этаж Готово к въезду
Преимущества
  • Класс B
  • Пешком от метро
  • Развитая инфраструктура

Предлагаем в долгосрочную прямую аренду здание под офис класса B площадью 1662 кв. метров. .. подробнее

Презентация по предложению

Собираете информацию? Получите подробную презентацию в удобном формате!

БЕЗ КОМИССИИ ID: 1373858 Рейтинг7.1 КлассB+

Москва, Большой Каретный переулок, 20 с3

Цветной бульвар → 312 м
~ 3 мин
Арендная плата в месяц 5 962 500 ₽ 45 000 ₽/м² в год С учётом НДС
Характеристики 1 590 м² -1 - 4 этаж Готово к въезду
Преимущества
  • Класс B+
  • Пешком от метро
  • Кондиционирование и вентиляция
  • Свой паркинг
  • Развитая инфраструктура

Сдается в долгосрочную прямую аренду помещение под офис класса B+ общей площадью 1590 кв.м в историческом недавно отреконструированном бизнес-центре... подробнее

Презентация по предложению

Собираете информацию? Получите подробную презентацию в удобном формате!

БЕЗ КОМИССИИ ID: 59567 Рейтинг8.3 КлассА

Москва, Тверская улица, 22/2 к1

Маяковская → 460 м
~ 5 мин
Арендная плата в месяц 5 310 500 ₽ 39 000 ₽/м² в год С учётом НДС
Характеристики 1 634 м² 5 - 6 этаж Готово к въезду
Преимущества
  • Класс А
  • Пешком от метро
  • Кондиционирование и вентиляция
  • Свой паркинг
  • Несколько провайдеров связи
  • Развитая инфраструктура

Сдаем в прямую аренду офисное помещение класса А общей площадью 1634 квадр. метров в бизнес-центре "Чайка Плаза 5"... подробнее

Презентация по предложению

Собираете информацию? Получите подробную презентацию в удобном формате!

Посмотреть все похожие предложения
Отнеситесь рационально к процессу поиска нового офиса!

Просто ответьте на 3 вопроса, и наши специалисты сами предложат оптимальные варианты под ваш бюджет

.