8.2
Смотреть все фото
БЕЗ КОМИССИИ ID: 253901 Рейтинг9.1 КлассА

Москва, Краснопролетарская улица, 4

Новослободская → 879 м
~ 9 мин
Арендная плата в месяц 758 300 ₽ 35 000 ₽/м² в год С учётом НДС

Презентация по предложению

Собираете информацию? Получите подробную презентацию в удобном формате!

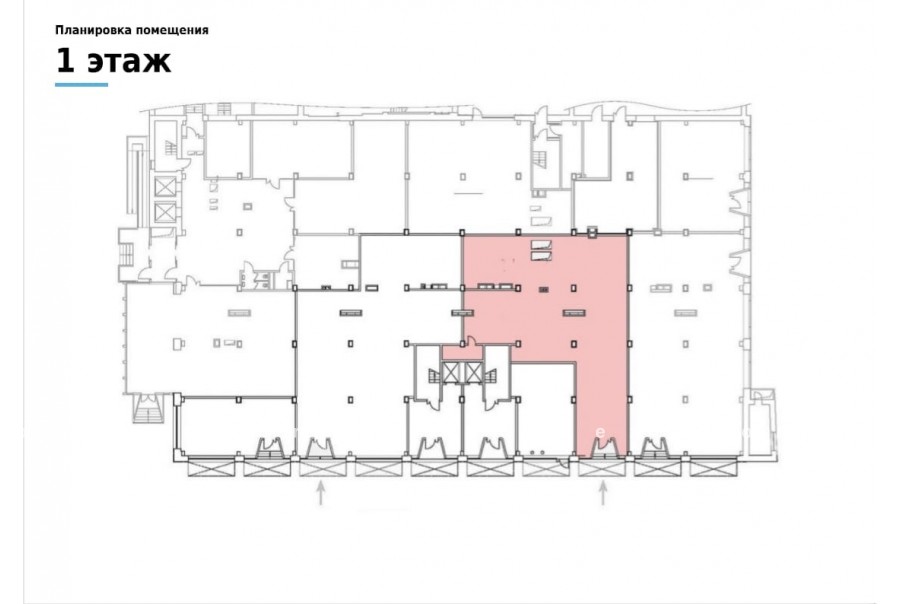
Площадь 260 м²
Состояние Готово к въезду
Планировка Открытая
Этаж 1

Описание

Преимущества
  • Класс А
  • Пешком от метро
  • Кондиционирование и вентиляция
  • Свой паркинг
  • Развитая инфраструктура
Сдается в долгосрочную аренду офисный блок класса А площадью 260 кв. метров в бизнес-центре "Эрмитаж Плаза".

Москва, ЦАО, Краснопролетарская улица, 4

Удобная локация здания:
- Автомобиль: близость транспортных магистралей, таких как Садовое Кольцо и других.
- Возможность аренды парковочных мест.
- Ближайшее метро: от метро "Новослободская" всего 9 мин пешком

Офис класса А:
- Помещение готово к въезду
- Вентиляция: Приточно-вытяжная вентиляция
- Кондиционирование: центральное
- Презентабельный центральный ресепшн
- Круглосуточная охрана и видеонаблюдение
- Развитая инфраструктура внутри здания

Возможность заключения контракта в соответствии с 44ФЗ по госзакупкам.

Что еще можно узнать о предложении:

1. Получите презентацию в течение 10 минут в Whatsapp или на почту с фотографиями и планировкой, чтобы обсудить данный вариант с коллегами или переслать руководству. Для этого позвоните по телефону, указанному в объявлении.
2. Мы готовы ответить на любые Ваши вопросы о помещении и коммерческих условиях аренды.
3. Проводим показы ежедневно, договоримся на удобное для Вас время. Можем организовать виртуальный тур по офисному блоку.

Вы можете позвонить нам в любое время. Мы ответим на Ваши вопросы по будням до 19:00, а поздно вечером или в выходные зафиксируем Ваш контакт и перезвоним в рабочее время.

Коммерческие условия

Арендная плата 1 136 630 ₽
Ставка арендной платы 35 000 ₽ м²/год
Эксплуатационные расходы Включены в ставку
Налоги С учётом НДС
Тип договора Прямая аренда
Срок договора от 11 месяцев
Размер платежей 3 месяц
Обеспечительный платеж 3 месяц
Статус Сдан

О бизнес-центре

Класс А
Этажность 8
Лифты Есть
Общая площадь 43 400 м²
Год постройки 2006
Паркинг Подземный
Вентиляция приточно-вытяжная
Кондиционирование центральное
Телекоммуникации Интернет/Телефония

Расположение

Подробная презентацию по предложению

Собираете информацию? Получите подробную презентацию в удобном формате, чтобы обсудить вариант с коллегами или переслать руководству!

Похожие предложения в других зданиях

БЕЗ КОМИССИИ ID: 1318921 Рейтинг7.4 КлассB+

Москва, Долгоруковская улица, 15с4-5

Новослободская → 677 м
~ 7 мин
Арендная плата в месяц 889 833 ₽ 38 000 ₽/м² в год С учётом НДС
Характеристики 281 м² 5 этаж Готово к въезду
Преимущества
  • Класс B+
  • Пешком от метро
  • Кондиционирование и вентиляция
  • Свой паркинг

Предлагаем в прямую аренду помещение под офис класса B+ общей площадью 281 квадратных метров в бизнес-центре... подробнее

>

Виртуальный тур

Презентация по предложению

Собираете информацию? Получите подробную презентацию в удобном формате!

БЕЗ КОМИССИИ ID: 1317991 Рейтинг5.4 КлассB

Москва, Долгоруковская улица, 11

Новослободская → 759 м
~ 8 мин
Арендная плата в месяц 682 496 ₽ 35 800 ₽/м² в год С учётом НДС
Характеристики 229 м² 3 этаж Готово к въезду
Преимущества
  • Класс B
  • Пешком от метро

Предлагаем в долгосрочную аренду офисное помещение класса B общей площадью 229 квадр. метров в историческом бизнес-центре... подробнее

Презентация по предложению

Собираете информацию? Получите подробную презентацию в удобном формате!

БЕЗ КОМИССИИ ID: 283128 Рейтинг7.9 КлассB+

Москва, улица Малая Дмитровка, 16 с6

Пушкинская → 722 м
~ 7 мин
Арендная плата в месяц 720 000 ₽ 30 000 ₽/м² в год С учётом НДС
Характеристики 288 м² 3 этаж Готово к въезду
Преимущества
  • Класс B+
  • Пешком от метро
  • Кондиционирование и вентиляция
  • Свой паркинг
  • Несколько провайдеров связи

Предлагается в долгосрочную прямую аренду помещение под офис класса B+ площадью 288 кв.м в бизнес-центре... подробнее

Презентация по предложению

Собираете информацию? Получите подробную презентацию в удобном формате!

БЕЗ КОМИССИИ ID: 1291518 Рейтинг6.1 КлассB

Москва, Малый Каретный переулок, 7 с1

Цветной бульвар → 571 м
~ 6 мин
Арендная плата в месяц 726 000 ₽ 36 300 ₽/м² в год С учётом НДС
Характеристики 240 м² 4 этаж Готово к въезду
Преимущества
  • Класс B
  • Пешком от метро
  • Свой паркинг
  • Развитая инфраструктура

Собственник сдает в прямую аренду офисный блок класса B площадью 240 квадратных метров в историческом бизнес-центре... подробнее

>

Виртуальный тур

Презентация по предложению

Собираете информацию? Получите подробную презентацию в удобном формате!

БЕЗ КОМИССИИ ID: 1314617 Рейтинг5.9 КлассB

Москва, улица Малая Дмитровка, 25 с2

Маяковская → 627 м
~ 6 мин
Арендная плата в месяц 766 903 ₽ 33 600 ₽/м² в год С учётом НДС
Характеристики 274 м² 4 этаж Готово к въезду
Преимущества
  • Класс B
  • Пешком от метро
  • Кондиционирование и вентиляция
  • Развитая инфраструктура

Сдается в долгосрочную аренду офис класса B площадью 274 кв. метров в бизнес-центре... подробнее

Презентация по предложению

Собираете информацию? Получите подробную презентацию в удобном формате!

Посмотреть все похожие предложения
Отнеситесь рационально к процессу поиска нового офиса!

Просто ответьте на 3 вопроса, и наши специалисты сами предложат оптимальные варианты под ваш бюджет

.