8.2
Смотреть все фото
БЕЗ КОМИССИИ ID: 265183 Рейтинг9.1 КлассА

Москва, Краснопролетарская улица, 4

Новослободская → 879 м
~ 9 мин
Арендная плата в месяц 1 262 900 ₽ 35 000 ₽/м² в год С учётом НДС

Презентация по предложению

Собираете информацию? Получите подробную презентацию в удобном формате!

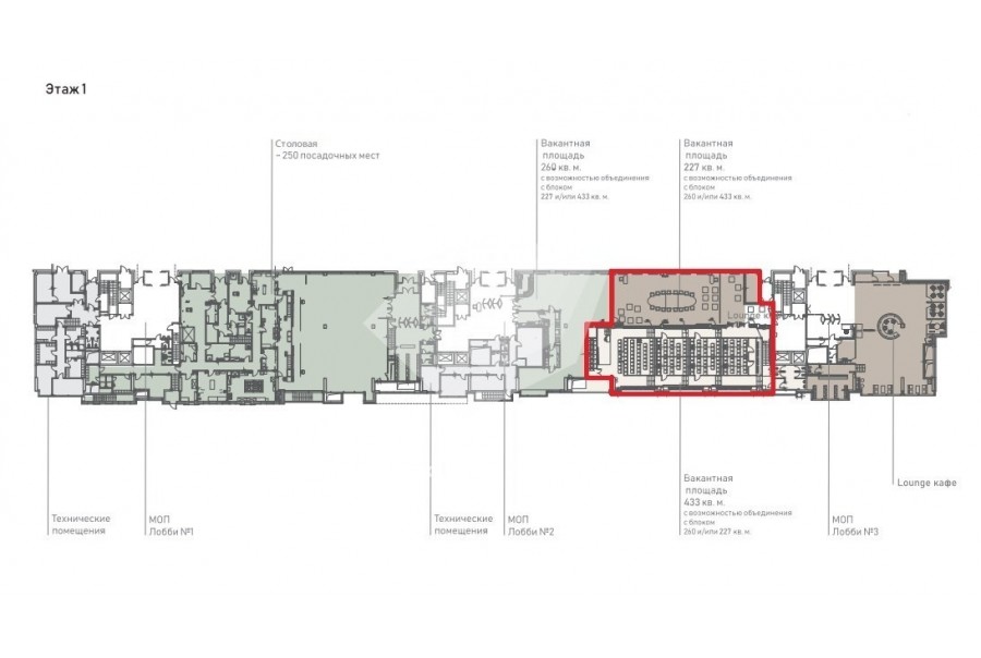
Площадь 433 м²
Состояние Готово к въезду
Планировка Открытая
Этаж 1

Описание

Преимущества
  • Класс А
  • Пешком от метро
  • Кондиционирование и вентиляция
  • Свой паркинг
  • Развитая инфраструктура
Собственник сдает в прямую аренду офис класса А общей площадью 433 квадратных метров в бизнес-центре "Эрмитаж Плаза".

Москва, ЦАО, Краснопролетарская улица, 4

Удобная локация здания:
- Автомобиль: близость транспортных магистралей, таких как Садовое Кольцо и других.
- Возможность аренды парковочных мест.
- Ближайшее метро: от метро "Достоевская" всего 14 мин пешком

Офис класса А:
- Помещение с отделкой, готово к въезду
- Вентиляция: Приточно-вытяжная вентиляция
- Кондиционирование: центральное
- Развитая инфраструктура внутри здания

Возможность заключения контракта в соответствии с 44ФЗ по госзакупкам.

Что еще можно узнать о предложении:

1. Мы подготовили презентацию с информацией о помещении, фотографиями и планировкой, чтобы Вы могли поделиться ей с коллегами или руководством. Попросите об этом нашего менеджера по телефону в объявлении.
2. Задайте любые вопросы менеджеру по телефону, готовы обсуждать любые предложения по финансовым условиям договора аренды.
3. Оперативно организуем просмотр помещения, договоримся на любое удобное время, подготовим виртуальный тур.

Вы можете позвонить нам в любое время. Мы ответим на Ваши вопросы по будням до 19:00, а поздно вечером или в выходные сможем передать Ваш контакт нашему менеджеру.

Коммерческие условия

Арендная плата 1 892 930 ₽
Ставка арендной платы 35 000 ₽ м²/год
Эксплуатационные расходы Включены в ставку
Налоги С учётом НДС
Тип договора Прямая аренда
Срок договора от 11 месяцев
Размер платежей 3 месяц
Обеспечительный платеж 3 месяц
Статус Сдан

О бизнес-центре

Класс А
Этажность 8
Лифты Есть
Общая площадь 43 400 м²
Год постройки 2006
Паркинг Подземный
Вентиляция приточно-вытяжная
Кондиционирование центральное
Телекоммуникации Интернет/Телефония

Расположение

Подробная презентацию по предложению

Собираете информацию? Получите подробную презентацию в удобном формате, чтобы обсудить вариант с коллегами или переслать руководству!

Похожие предложения в других зданиях

ВОЗМОЖНО ОСВОБОЖДЕНИЕ ID: 1288767 Рейтинг7.7 КлассB

Москва, улица Каретный Ряд, 8

Цветной бульвар → 932 м
~ 9 мин
Арендная плата в месяц 1 331 458 ₽ 38 500 ₽/м² в год С учётом НДС
Характеристики 415 м² 4 этаж Готово к въезду
Преимущества
  • Класс B
  • Пешком от метро
  • Кондиционирование и вентиляция

Предлагается в прямую аренду помещение под офис класса B площадью 415 кв. метров в бизнес-центре... подробнее

>

Виртуальный тур

Презентация по предложению

Собираете информацию? Получите подробную презентацию в удобном формате!

БЕЗ КОМИССИИ ID: 220590 Рейтинг4.5 КлассB

Москва, Долгоруковская улица, 19 с1

Новослободская → 559 м
~ 6 мин
Арендная плата в месяц 1 128 750 ₽ 35 000 ₽/м² в год С учётом НДС
Характеристики 387 м² 1 - 2 этаж Готово к въезду
Преимущества
  • Класс B
  • Пешком от метро

Предлагаем в долгосрочную прямую аренду офис класса B общей площадью 387 квадратных метров в недавно отреконструированном бизнес-центре... подробнее

Презентация по предложению

Собираете информацию? Получите подробную презентацию в удобном формате!

БЕЗ КОМИССИИ ID: 302119 Рейтинг7.9 КлассB

Москва, улица Малая Дмитровка, 27 с3

Маяковская → 598 м
~ 6 мин
Арендная плата в месяц 1 300 000 ₽ 37 500 ₽/м² в год С учётом НДС
Характеристики 416 м² 1 - 2 этаж Готово к въезду
Преимущества
  • Класс B
  • Пешком от метро
  • Кондиционирование и вентиляция

Предлагаем в прямую аренду офисное помещение класса B площадью 416 квадр. метров в бизнес-центре... подробнее

Презентация по предложению

Собираете информацию? Получите подробную презентацию в удобном формате!

ВОЗМОЖНО ОСВОБОЖДЕНИЕ ID: 1307912 Рейтинг6.4 КлассB

Москва, улица Малая Дмитровка, 23/15 с1

Пушкинская → 640 м
~ 6 мин
Арендная плата в месяц 1 168 650 ₽ 37 800 ₽/м² в год С учётом НДС
Характеристики 371 м² 2 - 3 этаж Готово к въезду
Преимущества
  • Класс B
  • Пешком от метро
  • Кондиционирование и вентиляция
  • Свой паркинг

Сдается в долгосрочную прямую аренду офис класса B общей площадью 371 квадратных метров в бизнес-центре... подробнее

Презентация по предложению

Собираете информацию? Получите подробную презентацию в удобном формате!

БЕЗ КОМИССИИ ID: 215548 Рейтинг8.0 КлассB

Москва, Цветной бульвар, 21 с2

Цветной бульвар → 89 м
~ 1 мин
Арендная плата в месяц 1 250 000 ₽ 30 000 ₽/м² в год С учётом НДС
Характеристики 500 м² 4 этаж Под отделку
Преимущества
  • Класс B
  • Пешком от метро
  • Кондиционирование и вентиляция

Собственник сдает в долгосрочную аренду офисное помещение класса B площадью 500 квадратных метров в историческом недавно отреконструированном бизнес-центре... подробнее

Презентация по предложению

Собираете информацию? Получите подробную презентацию в удобном формате!

Посмотреть все похожие предложения
Отнеситесь рационально к процессу поиска нового офиса!

Просто ответьте на 3 вопроса, и наши специалисты сами предложат оптимальные варианты под ваш бюджет

.