8.2

Виртуальный тур

Смотреть все фото
БЕЗ КОМИССИИ ID: 965498 Рейтинг8.3 КлассB+
Бизнес-центр «Фактория»

Аренда офиса 2053 м²

Москва, Вятская улица, 27 с4

Савеловская → 478 м
~ 6 мин
Арендная плата в месяц 10 692 700 ₽ 62 500 ₽/м² в год С учётом НДС

Презентация по предложению

Собираете информацию? Получите подробную презентацию в удобном формате!

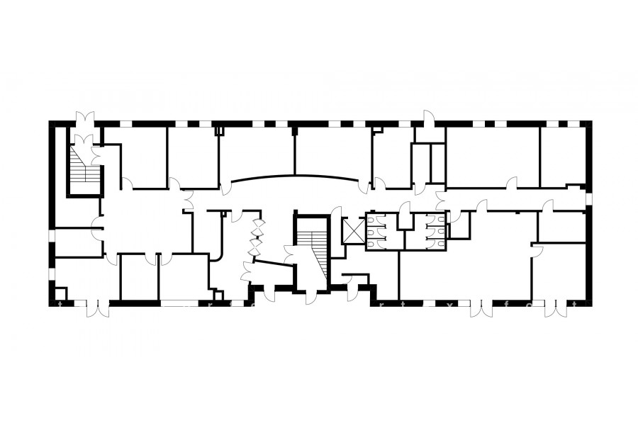
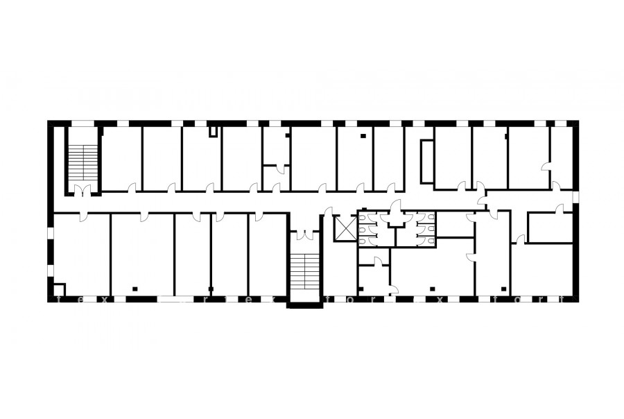
Площадь 2 053 м²
Состояние Готово к въезду
Планировка Смешанная
Этаж 1 - 3

Описание

Преимущества
  • Класс B+
  • Пешком от метро
  • Кондиционирование и вентиляция
  • Свой паркинг
Предлагаем в долгосрочную аренду офисное помещение класса B+ общей площадью 2053 кв.м в бизнес-центре "Фактория".

Москва, САО, Вятская улица, 27

Удобное расположение здания для всех видов транспорта:
- Автомобиль: близость транспортных магистралей, таких как Ленинградский проспект, Третье Транспортное Кольцо, Дмитровское шоссе, Бутырская улица и других.
- Возможность аренды парковочных мест.
- Ближайшее метро: от метро "Савеловская" всего 6 мин пешком

Офис класса B+:
- Помещение с отделкой, готово к въезду
- Вентиляция: Приточно-вытяжная вентиляция
- Кондиционирование: центральное
- Круглосуточная охрана и видеонаблюдение

Возможность заключения контракта в соответствии с 44ФЗ по госзакупкам.

Что еще можно узнать о предложении:

1. Мы отправим Вам подробную презентацию с планировкой и фотографиями в течение 10 минут после звонка, чтобы Вы могли поделиться информацией с руководством или с коллегами.
2. Задайте любые вопросы менеджеру по телефону, готовы обсуждать любые предложения по финансовым условиям договора аренды.
3.

Вы можете позвонить нам в любое время. Мы ответим на Ваши вопросы по будням до 19:00, а поздно вечером или в выходные зафиксируем Ваш контакт и перезвоним в рабочее время.

Коммерческие условия

Арендная плата 5 124 120 ₽
Ставка арендной платы 62 500 ₽ м²/год
Эксплуатационные расходы Включены в ставку
Налоги С учётом НДС
Тип договора Прямая аренда
Срок договора Долгосрочный
Размер платежей 1 месяц
Обеспечительный платеж 3 месяц
Статус Сдан

О бизнес-центре

Класс B+
Этажность 5
Лифты Есть
Общая площадь 7 500 м²
Год постройки 1999
Паркинг Подземный
Вентиляция приточно-вытяжная
Кондиционирование центральное
Телекоммуникации Интернет/Телефония

Расположение

Подробная презентацию по предложению

Собираете информацию? Получите подробную презентацию в удобном формате, чтобы обсудить вариант с коллегами или переслать руководству!

Похожие предложения в других зданиях

БЕЗ КОМИССИИ ID: 237645 Рейтинг9.0 КлассА

Москва, улица Правды, 26

Савёловская → 629 м
~ 6 мин
Арендная плата в месяц 10 038 767 ₽ 65 900 ₽/м² в год С учётом НДС
Характеристики 1 828 м² 6 - 7 этаж Готово к въезду
Преимущества
  • Класс А
  • Пешком от метро
  • Кондиционирование и вентиляция
  • Свой паркинг
  • Несколько провайдеров связи
  • Развитая инфраструктура

Сдаем в долгосрочную аренду офисное помещение класса А общей площадью 1828 кв. метров в недавно отреконструированном бизнес-центре "Северное сияние"... подробнее

Презентация по предложению

Собираете информацию? Получите подробную презентацию в удобном формате!

БЕЗ КОМИССИИ ID: 1179662 Рейтинг9.0 КлассА

Москва, Бумажный проезд, 19

Савёловская → 638 м
~ 6 мин
Арендная плата в месяц 10 101 667 ₽ 55 000 ₽/м² в год С учётом НДС
Характеристики 2 204 м² 7 - 8 этаж Под отделку
Преимущества
  • Класс А
  • Пешком от метро
  • Новое строительство
  • Кондиционирование и вентиляция

Собственник сдает в прямую аренду офис класса А площадью 2204 квадр. метров в бизнес-центре "STONE Towers"... подробнее

Презентация по предложению

Собираете информацию? Получите подробную презентацию в удобном формате!

БЕЗ КОМИССИИ ID: 1321751 Рейтинг9.0 КлассА

Москва, Бумажный проезд, 19

Савёловская → 638 м
~ 6 мин
Арендная плата в месяц 7 996 500 ₽ 54 000 ₽/м² в год С учётом НДС
Характеристики 1 777 м² 20 этаж Под отделку
Преимущества
  • Класс А
  • Пешком от метро
  • Новое строительство
  • Кондиционирование и вентиляция

Предлагаем в долгосрочную прямую аренду помещение под офис класса А площадью 1777 квадр. метров в современном бизнес-центре "STONE Towers"... подробнее

Презентация по предложению

Собираете информацию? Получите подробную презентацию в удобном формате!

БЕЗ КОМИССИИ ID: 1321752 Рейтинг9.0 КлассА

Москва, Бумажный проезд, 19

Савёловская → 638 м
~ 6 мин
Арендная плата в месяц 7 996 500 ₽ 54 000 ₽/м² в год С учётом НДС
Характеристики 1 777 м² 19 этаж Под отделку
Преимущества
  • Класс А
  • Пешком от метро
  • Новое строительство
  • Кондиционирование и вентиляция

Сдается в долгосрочную аренду офис класса А площадью 1777 кв. метров в современном бизнес-центре "STONE Towers"... подробнее

Презентация по предложению

Собираете информацию? Получите подробную презентацию в удобном формате!

БЕЗ КОМИССИИ ID: 228695 Рейтинг8.2 КлассB+

Москва, Бутырская улица, 76 с1

Дмитровская → 631 м
~ 6 мин
Арендная плата в месяц 9 721 250 ₽ 55 000 ₽/м² в год С учётом НДС
Характеристики 2 121 м² 2 - 3 этаж Готово к въезду
Преимущества
  • Класс B+
  • Пешком от метро
  • Кондиционирование и вентиляция
  • Свой паркинг
  • Развитая инфраструктура

Собственник сдает в прямую аренду офисный блок класса B+ общей площадью 2121 квадратных метров в бизнес-центре... подробнее

Презентация по предложению

Собираете информацию? Получите подробную презентацию в удобном формате!

Посмотреть все похожие предложения
Отнеситесь рационально к процессу поиска нового офиса!

Просто ответьте на 3 вопроса, и наши специалисты сами предложат оптимальные варианты под ваш бюджет

.