8.2
Смотреть все фото
БЕЗ КОМИССИИ ID: 1380563 Рейтинг8.3 КлассB+
Бизнес-центр «Фактория»

Аренда офиса 257 м²

Москва, Вятская улица, 27 с4

Савеловская → 478 м
~ 6 мин
Арендная плата в месяц 679 300 ₽ 31 700 ₽/м² в год С учётом НДС

Презентация по предложению

Собираете информацию? Получите подробную презентацию в удобном формате!

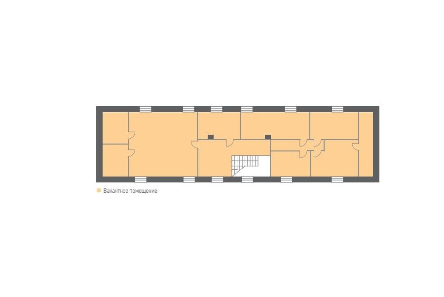
Площадь 257 м²
Состояние Готово к въезду
Планировка Смешанная
Этаж 4

Описание

Преимущества
  • Класс B+
  • Пешком от метро
  • Кондиционирование и вентиляция
  • Свой паркинг
Предлагается в долгосрочную аренду офисный блок класса B+ общей площадью 257 квадр. метров в бизнес-центре "Фактория".

Москва, САО, Вятская улица, 27

Удобное расположение здания для всех видов транспорта:
- Автомобиль: близость транспортных магистралей, таких как Дмитровское шоссе, Ленинградский проспект, Третье Транспортное Кольцо, Бутырская улица и других.
- Возможность аренды парковочных мест.
- Ближайшее метро: от метро "Савеловская" всего 6 мин пешком

Офис класса B+:
- Помещение готово к въезду
- Вентиляция: Приточно-вытяжная вентиляция
- Кондиционирование: центральное
- Круглосуточная охрана и видеонаблюдение


Если предложение предварительно Вам подходит:

1. Мы отправим Вам подробную презентацию с планировкой и фотографиями в течение 10 минут после звонка, чтобы Вы могли поделиться информацией с руководством или с коллегами.
2. Ответим на любые Ваши вопросы, готовы обсуждать любые предложения по коммерческим условиям аренды помещения.
3. Покажем помещение в удобное для Вас время с менеджером в здании, при необходимости подготовим виртуальный тур.

Звоните нам в любое время. По будням мы сможем ответить на Ваши вопросы до 19:00. В выходные или вечернее время мы передадим Ваш контакт нашему менеджеру по аренде.

Коммерческие условия

Арендная плата 679 340 ₽
Ставка арендной платы 18 000 ₽ м²/год
Эксплуатационные расходы 8 000 ₽
Налоги Без НДС
Тип договора Прямая аренда
Срок договора от 11 месяцев
Размер платежей 1 месяц
Обеспечительный платеж 2 месяц
Статус Свободен

О бизнес-центре

Класс B+
Этажность 5
Лифты Есть
Общая площадь 7 500 м²
Год постройки 1999
Паркинг Подземный
Вентиляция приточно-вытяжная
Кондиционирование центральное
Телекоммуникации Интернет/Телефония

Расположение

Подробная презентацию по предложению

Собираете информацию? Получите подробную презентацию в удобном формате, чтобы обсудить вариант с коллегами или переслать руководству!

Похожие предложения в других зданиях

БЕЗ КОМИССИИ ID: 168376 Рейтинг7.0 КлассB

Москва, Складочная улица, 1Б с1

Савеловская → 594 м
~ 6 мин
Арендная плата в месяц 500 000 ₽ 20 000 ₽/м² в год С учётом НДС
Характеристики 300 м² 2 этаж Готово к въезду
Преимущества
  • Класс B
  • Пешком от метро
  • Кондиционирование и вентиляция

Предлагаем в долгосрочную аренду офис класса B общей площадью 300 кв. метров в бизнес-центре... подробнее

Презентация по предложению

Собираете информацию? Получите подробную презентацию в удобном формате!

БЕЗ КОМИССИИ ID: 205272 Рейтинг5.2 КлассB

Москва, улица Правды, 23

Савеловская → 831 м
~ 8 мин
Арендная плата в месяц 420 000 ₽ 18 000 ₽/м² в год С учётом НДС
Характеристики 280 м² 5 этаж Готово к въезду
Преимущества
  • Класс B
  • Пешком от метро
  • Развитая инфраструктура

Предлагается в долгосрочную аренду офисный блок класса B площадью 280 кв. метров в историческом бизнес-центре... подробнее

Презентация по предложению

Собираете информацию? Получите подробную презентацию в удобном формате!

БЕЗ КОМИССИИ ID: 1375283 Рейтинг6.6 КлассB

Москва, улица Руставели, 14 с6

Бутырская → 338 м
~ 4 мин
Арендная плата в месяц 371 250 ₽ 19 800 ₽/м² в год Упрощённая система налогообложения
Характеристики 225 м² 3 - 4 этаж Готово к въезду
Преимущества
  • Класс B
  • Пешком от метро
  • Кондиционирование и вентиляция
  • Свой паркинг
  • Несколько провайдеров связи
  • Развитая инфраструктура

Предлагаем в долгосрочную прямую аренду помещение под офис класса B площадью 225 кв.м в бизнес-центре... подробнее

Презентация по предложению

Собираете информацию? Получите подробную презентацию в удобном формате!

БЕЗ КОМИССИИ ID: 1380059 Рейтинг7.3 КлассB+

Москва, Рабочая улица, 93 с1

Площадь Ильича → 1.58 км
~ 16 мин
Арендная плата в месяц 450 000 ₽ 18 000 ₽/м² в год С учётом НДС
Характеристики 300 м² 3 этаж Готово к въезду
Преимущества
  • Класс B+
  • Пешком от метро
  • Кондиционирование и вентиляция
  • Свой паркинг
  • Несколько провайдеров связи

Предлагаем в прямую аренду офисный блок класса B+ общей площадью 300 квадратных метров в бизнес-центре "Новорогожский"... подробнее

Презентация по предложению

Собираете информацию? Получите подробную презентацию в удобном формате!

БЕЗ КОМИССИИ ID: 1380070 Рейтинг7.3 КлассB+

Москва, Рабочая улица, 93 с1

Площадь Ильича → 1.58 км
~ 16 мин
Арендная плата в месяц 420 750 ₽ 17 000 ₽/м² в год С учётом НДС
Характеристики 297 м² 2 этаж Готово к въезду
Преимущества
  • Класс B+
  • Пешком от метро
  • Кондиционирование и вентиляция
  • Свой паркинг
  • Несколько провайдеров связи

Предлагаем в прямую аренду офис класса B+ площадью 297 кв.м в бизнес-центре "Новорогожский"... подробнее

Презентация по предложению

Собираете информацию? Получите подробную презентацию в удобном формате!

Посмотреть все похожие предложения
Отнеситесь рационально к процессу поиска нового офиса!

Просто ответьте на 3 вопроса, и наши специалисты сами предложат оптимальные варианты под ваш бюджет

.