8.2

Виртуальный тур

Смотреть все фото
БЕЗ КОМИССИИ ID: 306115 Рейтинг8.3 КлассB+
Бизнес-центр «Фактория»

Аренда офиса 2594 м²

Москва, Вятская улица, 27 с4

Савеловская → 478 м
~ 6 мин
Арендная плата в месяц 13 510 400 ₽ 62 500 ₽/м² в год С учётом НДС

Презентация по предложению

Собираете информацию? Получите подробную презентацию в удобном формате!

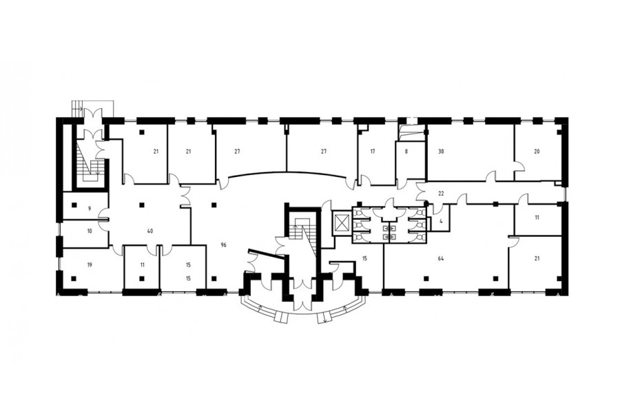
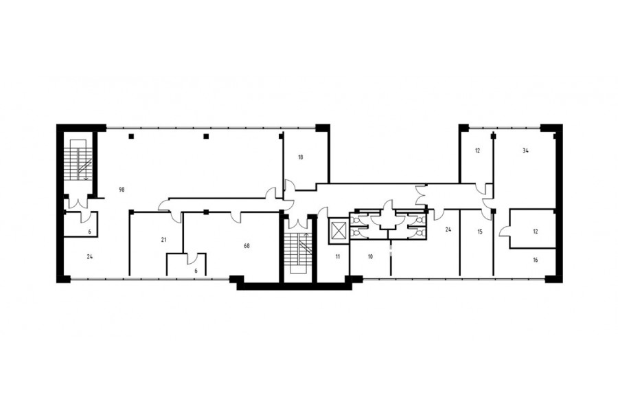
Площадь 2 594 м²
Состояние Готово к въезду
Планировка Смешанная
Этаж 1 - 4

Описание

Преимущества
  • Класс B+
  • Пешком от метро
  • Кондиционирование и вентиляция
  • Свой паркинг
Предлагаем в прямую аренду офис класса B+ общей площадью 2594 квадратных метров в бизнес-центре "Фактория".

Москва, САО, Вятская улица, 27

Удобное расположение здания для всех видов транспорта:
- Автомобиль: близость транспортных магистралей, таких как Третье Транспортное Кольцо, Бутырская улица, Дмитровское шоссе, Ленинградский проспект и других.
- Возможность аренды парковочных мест.
- Ближайшее метро: от метро "Савеловская" всего 6 мин пешком

Офис класса B+:
- Помещение с отделкой, готово к въезду
- Вентиляция: Приточно-вытяжная вентиляция
- Кондиционирование: центральное

Возможность заключения контракта в соответствии с 44ФЗ по госзакупкам.

Если предложение предварительно Вам подходит:

1. Мы подготовили презентацию с информацией о помещении, фотографиями и планировкой, чтобы Вы могли поделиться ей с коллегами или руководством. Попросите об этом нашего менеджера по телефону в объявлении.
2. Ответим на любые Ваши вопросы, готовы обсуждать любые предложения по коммерческим условиям аренды помещения.
3.

Звоните нам в любое время. По будням мы сможем ответить на Ваши вопросы до 19:00. В выходные или вечернее время мы передадим Ваш контакт нашему менеджеру по аренде.

Коммерческие условия

Арендная плата 6 474 410 ₽
Ставка арендной платы 62 500 ₽ м²/год
Эксплуатационные расходы Включены в ставку
Налоги С учётом НДС
Тип договора Прямая аренда
Срок договора Долгосрочный
Размер платежей 1 месяц
Обеспечительный платеж 3 месяц
Статус Сдан

О бизнес-центре

Класс B+
Этажность 5
Лифты Есть
Общая площадь 7 500 м²
Год постройки 1999
Паркинг Подземный
Вентиляция приточно-вытяжная
Кондиционирование центральное
Телекоммуникации Интернет/Телефония

Расположение

Подробная презентацию по предложению

Собираете информацию? Получите подробную презентацию в удобном формате, чтобы обсудить вариант с коллегами или переслать руководству!

Похожие предложения в других зданиях

БЕЗ КОМИССИИ ID: 255578 Рейтинг9.0 КлассА

Москва, улица Правды, 26

Савёловская → 629 м
~ 6 мин
Арендная плата в месяц 15 854 442 ₽ 65 900 ₽/м² в год С учётом НДС
Характеристики 2 887 м² 3 - 4 этаж Готово к въезду
Преимущества
  • Класс А
  • Пешком от метро
  • Кондиционирование и вентиляция
  • Свой паркинг
  • Несколько провайдеров связи
  • Развитая инфраструктура

Предлагается в прямую аренду офис класса А площадью 2887 кв.м в недавно отреконструированном бизнес-центре "Северное сияние"... подробнее

Презентация по предложению

Собираете информацию? Получите подробную презентацию в удобном формате!

БЕЗ КОМИССИИ ID: 1179662 Рейтинг9.0 КлассА

Москва, Бумажный проезд, 19

Савёловская → 638 м
~ 6 мин
Арендная плата в месяц 10 101 667 ₽ 55 000 ₽/м² в год С учётом НДС
Характеристики 2 204 м² 7 - 8 этаж Под отделку
Преимущества
  • Класс А
  • Пешком от метро
  • Новое строительство
  • Кондиционирование и вентиляция

Собственник сдает в прямую аренду офис класса А площадью 2204 квадр. метров в бизнес-центре "STONE Towers"... подробнее

Презентация по предложению

Собираете информацию? Получите подробную презентацию в удобном формате!

БЕЗ КОМИССИИ ID: 1373781 Рейтинг9.2 КлассА

Москва, улица Двинцев, 12 к1А

Савеловская → 846 м
~ 10 мин
Арендная плата в месяц 13 940 410 ₽ 63 100 ₽/м² в год С учётом НДС
Характеристики 2 653 м² 3 - 10 этаж Готово к въезду
Преимущества
  • Класс А
  • Пешком от метро
  • Кондиционирование и вентиляция
  • Свой паркинг
  • Несколько провайдеров связи
  • Развитая инфраструктура

Предлагается в прямую аренду офис класса А площадью 2653 квадратных метров в бизнес-центре "Двинцев"... подробнее

Презентация по предложению

Собираете информацию? Получите подробную презентацию в удобном формате!

БЕЗ КОМИССИИ ID: 261586 Рейтинг8.7 КлассА

Москва, Ленинградский проспект, 31А

Динамо → 818 м
~ 8 мин
Арендная плата в месяц 14 242 500 ₽ 63 300 ₽/м² в год С учётом НДС
Характеристики 2 700 м² 7 этаж Отделка под арендатора
Преимущества
  • Класс А
  • Пешком от метро
  • Кондиционирование и вентиляция
  • Свой паркинг
  • Развитая инфраструктура

Сдается в долгосрочную аренду офисный блок класса А общей площадью 2700 квадратных метров в бизнес-центре "Монарх"... подробнее

Презентация по предложению

Собираете информацию? Получите подробную презентацию в удобном формате!

БЕЗ КОМИССИИ ID: 1378213 Рейтинг9.1 КлассА

Москва, Ленинградский проспект, 37А к4

ЦСКА → 1.03 км
~ 10 мин
Арендная плата в месяц 17 883 584 ₽ 84 200 ₽/м² в год С учётом НДС
Характеристики 2 550 м² 8 этаж Готово к въезду
Преимущества
  • Класс А
  • Пешком от метро
  • Кондиционирование и вентиляция
  • Свой паркинг

Сдается в прямую аренду офисное помещение класса А площадью 2550 кв. метров в бизнес-центре "Аркус 3"... подробнее

>

Виртуальный тур

Презентация по предложению

Собираете информацию? Получите подробную презентацию в удобном формате!

Посмотреть все похожие предложения
Отнеситесь рационально к процессу поиска нового офиса!

Просто ответьте на 3 вопроса, и наши специалисты сами предложат оптимальные варианты под ваш бюджет

.