8.2
Смотреть все фото
ВОЗМОЖНО ОСВОБОЖДЕНИЕ ID: 1290131 Рейтинг8.3 КлассB+
Бизнес-центр «Фактория»

Аренда офиса 727 м²

Москва, Вятская улица, 27 с4

Савеловская → 478 м
~ 6 мин
Арендная плата в месяц по запросу потенциального арендатора Срок освобождение в течение 3 месяцев

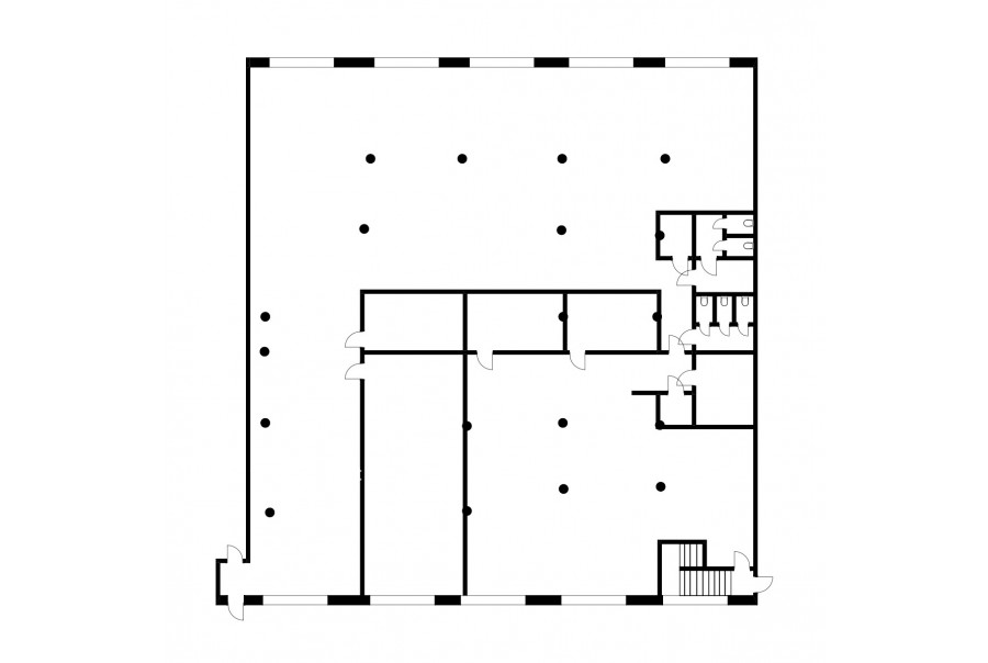
Информация по помещению

Ознакомьтесь с дополнительной информацией по помещению и коммерческим условиям!

Площадь 727 м²
Планировка Смешанная
Этаж 2

Описание

Преимущества
  • Класс B+
  • Пешком от метро
  • Кондиционирование и вентиляция
  • Свой паркинг

Коммерческие условия

Арендная плата по запросу
Ставка арендной платы по запросу
Эксплуатационные расходы Включены в ставку
Налоги С учётом НДС
Тип договора Прямая аренда
Срок договора от 11 месяцев
Размер платежей 1 месяц
Обеспечительный платеж 2 месяц
Статус Сдан

О бизнес-центре

Класс B+
Этажность 5
Лифты Есть
Общая площадь 7 500 м²
Год постройки 1999
Паркинг Подземный
Вентиляция приточно-вытяжная
Кондиционирование центральное
Телекоммуникации Интернет/Телефония

Расположение

Информация по помещению

Получите дополнительную информацию по помещению и коммерческом условиям!

Похожие предложения в других зданиях

БЕЗ КОМИССИИ ID: 892377 Рейтинг7.6 КлассB

Москва, Вятская улица, 35 с4

Савеловская → 817 м
~ 8 мин
Арендная плата в месяц 2 310 000 ₽ 39 600 ₽/м² в год С учётом НДС
Характеристики 700 м² 2 этаж Готово к въезду
Преимущества
  • Класс B
  • Пешком от метро
  • Кондиционирование и вентиляция
  • Свой паркинг
  • Развитая инфраструктура

Сдается в прямую аренду офисное помещение класса B площадью 700 квадр. метров в бизнес-центре "Вятка"... подробнее

Презентация по предложению

Собираете информацию? Получите подробную презентацию в удобном формате!

БЕЗ КОМИССИИ ID: 235286 Рейтинг5.0 КлассB

Москва, Бумажный проезд, 14 с2

Савёловская → 605 м
~ 6 мин
Арендная плата в месяц 3 131 250 ₽ 45 000 ₽/м² в год С учётом НДС
Характеристики 835 м² 1 этаж Готово к въезду
Преимущества
  • Класс B
  • Пешком от метро
  • Кондиционирование и вентиляция
  • Свой паркинг
  • Несколько провайдеров связи
  • Развитая инфраструктура

Собственник сдает в долгосрочную прямую аренду офисный блок класса B площадью 835 квадр. метров в бизнес-центре... подробнее

Презентация по предложению

Собираете информацию? Получите подробную презентацию в удобном формате!

БЕЗ КОМИССИИ ID: 1374809 Рейтинг5.0 КлассB

Москва, Бумажный проезд, 14 с2

Савёловская → 605 м
~ 6 мин
Арендная плата в месяц 2 486 250 ₽ 45 000 ₽/м² в год С учётом НДС
Характеристики 663 м² 8 этаж Отделка под арендатора
Преимущества
  • Класс B
  • Пешком от метро
  • Кондиционирование и вентиляция
  • Свой паркинг
  • Несколько провайдеров связи
  • Развитая инфраструктура

Сдается в долгосрочную аренду помещение под офис класса B общей площадью 663 квадратных метров в бизнес-центре... подробнее

Презентация по предложению

Собираете информацию? Получите подробную презентацию в удобном формате!

БЕЗ КОМИССИИ ID: 1179118 Рейтинг7.6 КлассB

Москва, Большая Новодмитровская улица, 36 с4

Дмитровская → 640 м
~ 6 мин
Арендная плата в месяц 2 520 000 ₽ 37 800 ₽/м² в год С учётом НДС
Характеристики 800 м² 2 этаж Готово к въезду
Преимущества
  • Класс B
  • Пешком от метро
  • Кондиционирование и вентиляция
  • Свой паркинг
  • Развитая инфраструктура

Собственник сдает в долгосрочную аренду офисное помещение класса B общей площадью 800 квадратных метров в бизнес-центре "Флакон"... подробнее

>

Виртуальный тур

Презентация по предложению

Собираете информацию? Получите подробную презентацию в удобном формате!

БЕЗ КОМИССИИ ID: 1379281 Рейтинг9.2 КлассА

Москва, улица Двинцев, 12 к1А

Савеловская → 846 м
~ 10 мин
Арендная плата в месяц 3 779 806 ₽ 66 400 ₽/м² в год С учётом НДС
Характеристики 683 м² 3 этаж Готово к въезду
Преимущества
  • Класс А
  • Пешком от метро
  • Кондиционирование и вентиляция
  • Свой паркинг
  • Несколько провайдеров связи
  • Развитая инфраструктура

Сдается в прямую аренду офисное помещение класса А общей площадью 683 квадр. метров в бизнес-центре "Двинцев"... подробнее

Презентация по предложению

Собираете информацию? Получите подробную презентацию в удобном формате!

Посмотреть все похожие предложения
Отнеситесь рационально к процессу поиска нового офиса!

Просто ответьте на 3 вопроса, и наши специалисты сами предложат оптимальные варианты под ваш бюджет

.