8.2

Виртуальный тур

Смотреть все фото
БЕЗ КОМИССИИ ID: 1328886 Рейтинг8.5 КлассB+
Бизнес-центр «Ферро-Плаза»

Аренда офиса 615 м²

Москва, улица Кржижановского, 14 к3

Профсоюзная → 252 м
~ 3 мин
Арендная плата в месяц 1 896 200 ₽ 37 000 ₽/м² в год С учётом НДС

Презентация по предложению

Собираете информацию? Получите подробную презентацию в удобном формате!

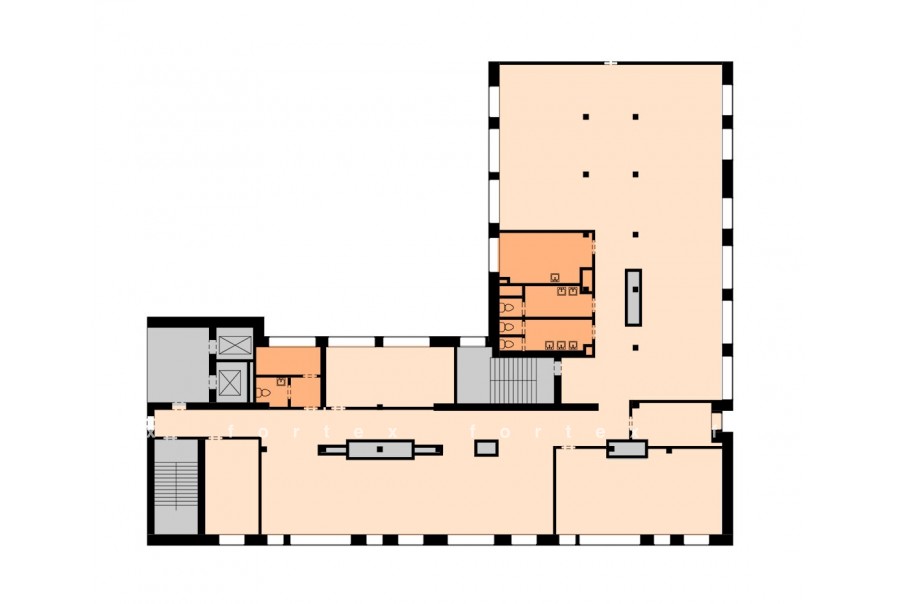
Площадь 615 м²
Состояние Готово к въезду
Планировка Кабинетная
Этаж 6

Описание

Преимущества
  • Класс B+
  • Пешком от метро
  • Кондиционирование и вентиляция
  • Свой паркинг
  • Развитая инфраструктура
Предлагаем в долгосрочную прямую аренду офисный блок класса B+ площадью 615 квадратных метров в бизнес-центре "Ферро-Плаза".

Москва, ЮЗАО, улица Кржижановского, 14 к3

Удобное расположение здания для всех видов транспорта:
- Автомобиль: близость транспортных магистралей, таких как Ленинский проспект, Севастопольский проспект, Профсоюзная улица и других.
- Возможность аренды парковочных мест.
- Ближайшее метро: буквально 3 мин пешком от метро "Профсоюзная"

Офис класса B+:
- Помещение с отделкой, готово к въезду
- Вентиляция: Приточно-вытяжная вентиляция
- Кондиционирование: центральное
- Презентабельный центральный ресепшн
- Круглосуточная охрана и видеонаблюдение
- Развитая инфраструктура внутри здания

Возможность заключения контракта в соответствии с 44ФЗ по госзакупкам.

Что еще можно узнать о предложении:

1. Мы подготовили презентацию с информацией о помещении, фотографиями и планировкой, чтобы Вы могли поделиться ей с коллегами или руководством. Попросите об этом нашего менеджера по телефону в объявлении.
2. Задайте любые вопросы менеджеру по телефону, готовы обсуждать любые предложения по финансовым условиям договора аренды.
3.

Вы можете позвонить нам в любое время. Мы ответим на Ваши вопросы по будням до 19:00, а поздно вечером или в выходные зафиксируем Ваш контакт и перезвоним в рабочее время.

Коммерческие условия

Арендная плата 1 896 250 ₽
Ставка арендной платы 37 000 ₽ м²/год
Эксплуатационные расходы Включены в ставку
Налоги С учётом НДС
Тип договора Прямая аренда
Срок договора от 11 месяцев
Размер платежей 1 месяц
Обеспечительный платеж 2 месяц
Статус Сдан

О бизнес-центре

Класс B+
Этажность 10
Лифты Есть
Общая площадь 20 450 м²
Год постройки 2006
Паркинг Подземный
Вентиляция приточно-вытяжная
Кондиционирование центральное
Телекоммуникации Интернет/Телефония

Расположение

Подробная презентацию по предложению

Собираете информацию? Получите подробную презентацию в удобном формате, чтобы обсудить вариант с коллегами или переслать руководству!

Похожие предложения в других зданиях

БЕЗ КОМИССИИ ID: 1320697 Рейтинг9.3 КлассА

Москва, Нахимовский проспект, 51

Профсоюзная → 337 м
~ 3 мин
Арендная плата в месяц 2 041 667 ₽ 35 000 ₽/м² в год С учётом НДС
Характеристики 700 м² 9 этаж Под отделку
Преимущества
  • Класс А
  • Пешком от метро
  • Новое строительство
  • Кондиционирование и вентиляция
  • Свой паркинг

Предлагаем в долгосрочную прямую аренду помещение под офис класса А площадью 700 квадратных метров в современном бизнес-центре... подробнее

Презентация по предложению

Собираете информацию? Получите подробную презентацию в удобном формате!

БЕЗ КОМИССИИ ID: 1320696 Рейтинг9.3 КлассА

Москва, Нахимовский проспект, 51

Профсоюзная → 337 м
~ 3 мин
Арендная плата в месяц 2 041 667 ₽ 35 000 ₽/м² в год С учётом НДС
Характеристики 700 м² 9 этаж Под отделку
Преимущества
  • Класс А
  • Пешком от метро
  • Новое строительство
  • Кондиционирование и вентиляция
  • Свой паркинг

Предлагается в долгосрочную прямую аренду офисный блок класса А общей площадью 700 кв. метров в современном бизнес-центре... подробнее

Презентация по предложению

Собираете информацию? Получите подробную презентацию в удобном формате!

БЕЗ КОМИССИИ ID: 1294481 Рейтинг9.0 КлассА

Москва, Нахимовский проспект, 58

Профсоюзная → 953 м
~ 10 мин
Арендная плата в месяц 2 251 988 ₽ 39 200 ₽/м² в год С учётом НДС
Характеристики 690 м² 1 - 2 этаж Готово к въезду
Преимущества
  • Класс А
  • Пешком от метро
  • Кондиционирование и вентиляция
  • Свой паркинг
  • Несколько провайдеров связи

Предлагаем в долгосрочную прямую аренду офис класса А площадью 688 кв. метров в бизнес-центре "iCube"... подробнее

Презентация по предложению

Собираете информацию? Получите подробную презентацию в удобном формате!

ВОЗМОЖНО ОСВОБОЖДЕНИЕ ID: 285592 Рейтинг7.5 КлассА

Москва, улица Дмитрия Ульянова, 7А

Академическая → 843 м
~ 8 мин
Арендная плата в месяц 1 653 333 ₽ 32 000 ₽/м² в год С учётом НДС
Характеристики 620 м² 3 этаж Готово к въезду
Преимущества
  • Класс А
  • Пешком от метро
  • Кондиционирование и вентиляция
  • Свой паркинг

Предлагается в прямую аренду офисное помещение класса А общей площадью 620 кв. метров в бизнес-центре "Май"... подробнее

>

Виртуальный тур

Презентация по предложению

Собираете информацию? Получите подробную презентацию в удобном формате!

БЕЗ КОМИССИИ ID: 1263827 Рейтинг7.7 КлассB+

Москва, улица Вавилова, 47А

Академическая → 1.04 км
~ 10 мин
Арендная плата в месяц 2 018 363 ₽ 34 600 ₽/м² в год С учётом НДС
Характеристики 699 м² 3 этаж Готово к въезду
Преимущества
  • Класс B+
  • Пешком от метро
  • Кондиционирование и вентиляция
  • Свой паркинг
  • Несколько провайдеров связи

Сдается в прямую аренду помещение под офис класса B+ площадью 699 кв.м в бизнес-центре... подробнее

>

Виртуальный тур

Презентация по предложению

Собираете информацию? Получите подробную презентацию в удобном формате!

Посмотреть все похожие предложения
Отнеситесь рационально к процессу поиска нового офиса!

Просто ответьте на 3 вопроса, и наши специалисты сами предложат оптимальные варианты под ваш бюджет