8.2
Смотреть все фото
БЕЗ КОМИССИИ ID: 281548 Рейтинг5.4 КлассB

Москва, Фестивальная улица, 39А с1

Речной вокзал → 820 м
~ 8 мин
Арендная плата в месяц 768 200 ₽ 7 000 ₽/м² в год С учётом НДС

Презентация по предложению

Собираете информацию? Получите подробную презентацию в удобном формате!

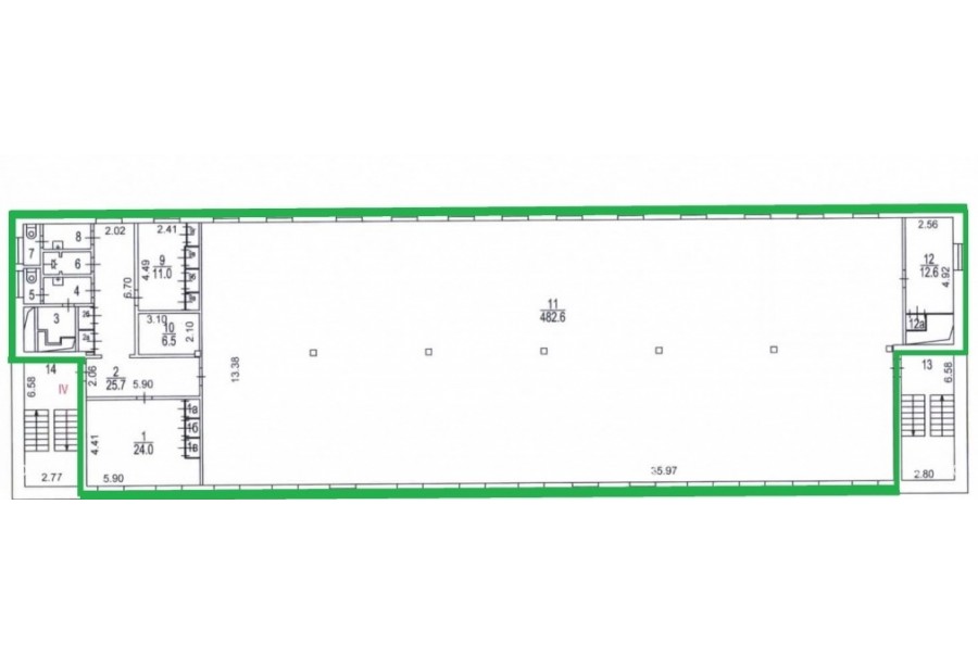
Площадь 1 317 м²
Состояние Под отделку
Планировка Открытая
Этаж 2 - 3

Описание

Преимущества
  • Класс B
  • Пешком от метро
  • Кондиционирование и вентиляция
Предлагаем в долгосрочную аренду помещение под офис класса B площадью 1317 кв.м в бизнес-центре.

Москва, САО, Фестивальная улица, 39А с1

Удобная локация здания:
- Автомобиль: близость транспортных магистралей, таких как Ленинградское шоссе и других.
- Ближайшее метро: от метро "Речной вокзал" всего 8 мин пешком

Офис класса B:
- Офис в состоянии shell & core
- Вентиляция: Приточно-вытяжная вентиляция


Если предложение предварительно Вам подходит:

1. Получите презентацию в течение 10 минут в Whatsapp или на почту с фотографиями и планировкой, чтобы обсудить данный вариант с коллегами или переслать руководству. Для этого позвоните по телефону, указанному в объявлении.
2. Задайте любые вопросы менеджеру по телефону, готовы обсуждать любые предложения по финансовым условиям договора аренды.
3. Оперативно организуем просмотр помещения с менеджерами на объекте или подготовим виртуальный тур.

Вы можете позвонить нам в любое время. Мы ответим на Ваши вопросы по будням до 19:00, а поздно вечером или в выходные зафиксируем Ваш контакт и перезвоним в рабочее время.

Коммерческие условия

Арендная плата 768 250 ₽
Ставка арендной платы 7 000 ₽ м²/год
Эксплуатационные расходы Включены в ставку
Налоги С учётом НДС
Тип договора Прямая аренда
Срок договора от 11 месяцев
Размер платежей 1 месяц
Обеспечительный платеж 1 месяц
Статус Сдан

О бизнес-центре

Класс B
Этажность 3
Лифты Нет
Общая площадь 2 622 м²
Год постройки 1965
Паркинг Стихийный
Вентиляция приточно-вытяжная
Кондиционирование возможность установки
Телекоммуникации Интернет/Телефония

Расположение

Подробная презентацию по предложению

Собираете информацию? Получите подробную презентацию в удобном формате, чтобы обсудить вариант с коллегами или переслать руководству!

Похожие предложения в других зданиях

БЕЗ КОМИССИИ ID: 125636 Рейтинг4.0 КлассB

Москва, Нарвская улица, 2

Водный стадион → 1.63 км
~ 16 мин
Арендная плата в месяц 725 083 ₽ 7 000 ₽/м² в год С учётом НДС
Характеристики 1 243 м² 5 - 8 этаж Готово к въезду
Преимущества
  • Класс B
  • Пешком от метро

Предлагаем в долгосрочную прямую аренду помещение под офис класса B общей площадью 1243 кв.м в бизнес-центре... подробнее

Презентация по предложению

Собираете информацию? Получите подробную презентацию в удобном формате!

БЕЗ КОМИССИИ ID: 248959 Рейтинг8.0 КлассА

город Химки, Вашутинское шоссе, дом 24

Ховрино → 15.38 км
~ 46 мин
Арендная плата в месяц 812 500 ₽ 6 500 ₽/м² в год С учётом НДС
Характеристики 1 500 м² 5 этаж Под отделку
Преимущества
  • Класс А
  • Кондиционирование и вентиляция

Сдается в долгосрочную аренду офисный блок класса А площадью 1500 кв. метров в бизнес-центре "BOSCH"... подробнее

Презентация по предложению

Собираете информацию? Получите подробную презентацию в удобном формате!

Посмотреть все похожие предложения
Отнеситесь рационально к процессу поиска нового офиса!

Просто ответьте на 3 вопроса, и наши специалисты сами предложат оптимальные варианты под ваш бюджет

.