8.2
Смотреть все фото
БЕЗ КОМИССИИ ID: 1327428 Рейтинг9.0 КлассА
Бизнес-центр «FILI RESIDENCE»

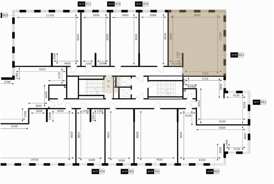
Продажа офиса 105 м²

Москва, Кастанаевская улица, 16 с1

Багратионовская → 714 м
~ 7 мин
Стоимость 54.3 млн ₽ 517 200 ₽/м²

Презентация по предложению

Собираете информацию? Получите подробную презентацию в удобном формате!

Площадь 105 м²
Состояние Под отделку
Планировка Кабинетная
Этаж 4

Описание

Преимущества
  • Класс А
  • Пешком от метро
  • Новое строительство
  • Кондиционирование и вентиляция
  • Свой паркинг
В продаже офисное помещение площадью 105 кв.м в бизнес-центре "FILI RESIDENCE".

Помещение можно адаптировать под любой бизнес благодаря функциональной планировке - идеальный баланс комфорта и экономической выгоды. Оптимальное решение для стабильного бизнеса или выгодных инвестиций.

Офис класса А:
- Помещение без отделки
- Вентиляция: Приточно-вытяжная вентиляция
- Кондиционирование: центральное

О офисном центре:
Москва, ЗАО, Кастанаевская улица, 16 с1

Удобная локация здания:
- Автомобиль: близость транспортных магистралей, таких как Кутузовский проспект и других.
- Возможность аренды парковочных мест.
- Ближайшее метро: от метро "Багратионовская" всего 7 мин пешком



Если данное предложение подходит Вашему запросу:

1. Мы подготовили презентацию с информацией о помещении, фотографиями и планировкой, чтобы Вы могли поделиться ей с коллегами или руководством. Попросите об этом нашего менеджера по телефону в объявлении.
2. Мы готовы ответить на любые Ваши вопросы о помещении и коммерческих условиях продажи.

Звоните нам в любое время. По будням мы сможем ответить на Ваши вопросы до 19:00. В выходные или вечернее время мы передадим Ваш контакт нашему менеджеру.

О бизнес-центре

Класс А
Этажность 9
Лифты Нет
Общая площадь 11 041 м²
Год постройки 2025
Паркинг Подземный
Вентиляция приточно-вытяжная
Кондиционирование центральное
Телекоммуникации Интернет/Телефония

Расположение

Подробная презентацию по предложению

Собираете информацию? Получите подробную презентацию в удобном формате, чтобы обсудить вариант с коллегами или переслать руководству!

Похожие предложения в других зданиях

БЕЗ КОМИССИИ ID: 1311995 Рейтинг8.5 КлассА

Москва, улица Василисы Кожиной, вл25/1

Филевский парк → 1.01 км
~ 10 мин
Стоимость 1 100 187 600 ₽ 525 400 ₽/м²
Характеристики 2 094 м² 5 этаж Под отделку
Преимущества
  • Класс А
  • Пешком от метро
  • Новое строительство
  • Кондиционирование и вентиляция
  • Свой паркинг

Продается офисный блок площадью 2094 кв.м в бизнес-центре "Ahead". .. подробнее

Презентация по предложению

Собираете информацию? Получите подробную презентацию в удобном формате!

БЕЗ КОМИССИИ ID: 1311994 Рейтинг8.5 КлассА

Москва, улица Василисы Кожиной, вл25/1

Филевский парк → 1.01 км
~ 10 мин
Стоимость 1 027 525 800 ₽ 490 700 ₽/м²
Характеристики 2 094 м² 4 этаж Под отделку
Преимущества
  • Класс А
  • Пешком от метро
  • Новое строительство
  • Кондиционирование и вентиляция
  • Свой паркинг

В продаже офисный блок площадью 2094 квадратных метров в бизнес-центре "Ahead". .. подробнее

Презентация по предложению

Собираете информацию? Получите подробную презентацию в удобном формате!

БЕЗ КОМИССИИ ID: 1311993 Рейтинг8.5 КлассА

Москва, улица Василисы Кожиной, вл25/1

Филевский парк → 1.01 км
~ 10 мин
Стоимость 1 010 351 300 ₽ 490 700 ₽/м²
Характеристики 2 059 м² 2 этаж Под отделку
Преимущества
  • Класс А
  • Пешком от метро
  • Новое строительство
  • Кондиционирование и вентиляция
  • Свой паркинг

Продается офис площадью 2059 кв.м в бизнес-центре "Ahead". .. подробнее

Презентация по предложению

Собираете информацию? Получите подробную презентацию в удобном формате!

БЕЗ КОМИССИИ ID: 1376748 Рейтинг8.5 КлассА

Москва, улица Василисы Кожиной, вл25/1

Филевский парк → 1.01 км
~ 10 мин
Стоимость 443 081 300 ₽ 676 500 ₽/м²
Характеристики 655 м² 6 этаж Под отделку
Преимущества
  • Класс А
  • Пешком от метро
  • Новое строительство
  • Кондиционирование и вентиляция
  • Свой паркинг

Продается офисное помещение общей площадью 655 кв. метров в бизнес-центре "Ahead". .. подробнее

Презентация по предложению

Собираете информацию? Получите подробную презентацию в удобном формате!

БЕЗ КОМИССИИ ID: 1311996 Рейтинг8.5 КлассА

Москва, улица Василисы Кожиной, вл25/1

Филевский парк → 1.01 км
~ 10 мин
Стоимость 400 092 000 ₽ 606 200 ₽/м²
Характеристики 660 м² 6 этаж Под отделку
Преимущества
  • Класс А
  • Пешком от метро
  • Новое строительство
  • Кондиционирование и вентиляция
  • Свой паркинг

В продаже офисный блок общей площадью 660 кв.м в бизнес-центре "Ahead". .. подробнее

Презентация по предложению

Собираете информацию? Получите подробную презентацию в удобном формате!

Посмотреть все похожие предложения
Отнеситесь рационально к процессу поиска нового офиса!

Просто ответьте на 3 вопроса, и наши специалисты сами предложат оптимальные варианты под ваш бюджет

.