8.2

Виртуальный тур

Смотреть все фото
БЕЗ КОМИССИИ ID: 960710 Рейтинг7.6 КлассB
Бизнес-центр «Флакон»

Аренда офиса 238 м²

Москва, Большая Новодмитровская улица, 36 с4

Дмитровская → 640 м
~ 6 мин
Арендная плата в месяц 749 700 ₽ 37 800 ₽/м² в год С учётом НДС

Презентация по предложению

Собираете информацию? Получите подробную презентацию в удобном формате!

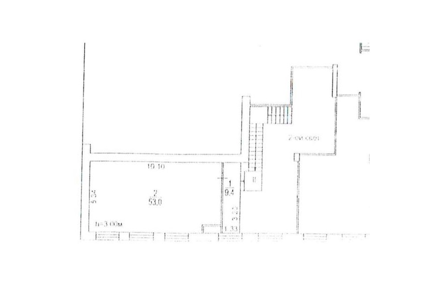
Площадь 238 м²
Состояние Готово к въезду
Планировка Смешанная
Этаж 2 - 3

Описание

Преимущества
  • Класс B
  • Пешком от метро
  • Кондиционирование и вентиляция
  • Свой паркинг
  • Развитая инфраструктура
Предлагаем в долгосрочную аренду помещение под офис класса B площадью 238 квадратных метров в бизнес-центре "Флакон".

Москва, СВАО, Большая Новодмитровская улица, 36 Удобная локация здания:
- Автомобиль: близость транспортных магистралей, таких как Дмитровское шоссе, Третье Транспортное Кольцо, Бутырская улица и других.
- Возможность аренды парковочных мест.
- Ближайшее метро: от метро "Дмитровская" всего 7 мин пешком

Офис класса B:
- Офис с отделкой, полностью готов к аренде
- Вентиляция: Приточно-вытяжная вентиляция
- Кондиционирование: сплит-системы
- Презентабельный центральный ресепшн
- Круглосуточная охрана и видеонаблюдение
- Развитая инфраструктура внутри здания


Если данное предложение подходит Вашему запросу:

1. Мы отправим Вам подробную презентацию с планировкой и фотографиями в течение 10 минут после звонка, чтобы Вы могли поделиться информацией с руководством или с коллегами.
2. Ответим на любые Ваши вопросы, готовы обсуждать любые предложения по коммерческим условиям аренды помещения.
3.

Вы можете позвонить нам в любое время. Мы ответим на Ваши вопросы по будням до 19:00, а поздно вечером или в выходные зафиксируем Ваш контакт и перезвоним в рабочее время.

Коммерческие условия

Арендная плата 571 780 ₽
Ставка арендной платы 37 800 ₽ м²/год
Эксплуатационные расходы Включены в ставку
Налоги С учётом НДС
Тип договора Прямая аренда
Срок договора от 11 месяцев
Размер платежей 1 месяц
Обеспечительный платеж 1 месяц
Статус Сдан

О бизнес-центре

Класс B
Этажность 5
Лифты Нет
Общая площадь 21 000 м²
Год постройки 1970
Паркинг Наземный
Вентиляция приточно-вытяжная
Кондиционирование сплит-системы
Телекоммуникации Интернет/Телефония

Расположение

Подробная презентацию по предложению

Собираете информацию? Получите подробную презентацию в удобном формате, чтобы обсудить вариант с коллегами или переслать руководству!

Похожие предложения в других зданиях

БЕЗ КОМИССИИ ID: 1375229 Рейтинг8.2 КлассB+

Москва, Новодмитровская улица, 2 к1

Дмитровская → 864 м
~ 9 мин
Арендная плата в месяц 586 250 ₽ 35 000 ₽/м² в год С учётом НДС
Характеристики 201 м² 9 этаж Готово к въезду
Преимущества
  • Класс B+
  • Пешком от метро
  • Кондиционирование и вентиляция
  • Развитая инфраструктура

Предлагаем в долгосрочную прямую аренду офисное помещение класса B+ площадью 201 кв.м в бизнес-центре "Савеловский Сити"... подробнее

Презентация по предложению

Собираете информацию? Получите подробную презентацию в удобном формате!

БЕЗ КОМИССИИ ID: 1378914 Рейтинг6.4 КлассB

Москва, Складочная улица, 1 с1

Савеловская → 880 м
~ 9 мин
Арендная плата в месяц 670 049 ₽ 32 600 ₽/м² в год С учётом НДС
Характеристики 247 м² 2 - 3 этаж Готово к въезду
Преимущества
  • Класс B
  • Пешком от метро
  • Кондиционирование и вентиляция
  • Свой паркинг
  • Несколько провайдеров связи

Предлагается в прямую аренду офис класса B площадью 247 квадратных метров в бизнес-центре "Станколит"... подробнее

Презентация по предложению

Собираете информацию? Получите подробную презентацию в удобном формате!

БЕЗ КОМИССИИ ID: 68423 Рейтинг3.3 КлассB

Москва, 2-я Хуторская улица, 29

Дмитровская → 902 м
~ 9 мин
Арендная плата в месяц 551 667 ₽ 33 100 ₽/м² в год С учётом НДС
Характеристики 200 м² 2 этаж Готово к въезду
Преимущества
  • Класс B
  • Пешком от метро

Предлагаем в долгосрочную прямую аренду офис класса B площадью 200 кв. метров в историческом бизнес-центре... подробнее

Презентация по предложению

Собираете информацию? Получите подробную презентацию в удобном формате!

ВОЗМОЖНО ОСВОБОЖДЕНИЕ ID: 1291589 Рейтинг9.2 КлассА

Москва, улица Двинцев, 12 к1А

Савеловская → 846 м
~ 10 мин
Арендная плата в месяц 686 263 ₽ 38 000 ₽/м² в год С учётом НДС
Характеристики 217 м² 13 этаж Готово к въезду
Преимущества
  • Класс А
  • Пешком от метро
  • Кондиционирование и вентиляция
  • Свой паркинг
  • Несколько провайдеров связи
  • Развитая инфраструктура

Собственник сдает в прямую аренду офисное помещение класса А площадью 217 квадр. метров в бизнес-центре "Двинцев"... подробнее

Презентация по предложению

Собираете информацию? Получите подробную презентацию в удобном формате!

БЕЗ КОМИССИИ ID: 1324804 Рейтинг8.4 КлассB+

Москва, улица Бутырский Вал, 68/70 с1

Савёловская → 728 м
~ 7 мин
Арендная плата в месяц 709 333 ₽ 38 000 ₽/м² в год С учётом НДС
Характеристики 224 м² 2 этаж Готово к въезду
Преимущества
  • Класс B+
  • Пешком от метро
  • Кондиционирование и вентиляция
  • Свой паркинг
  • Несколько провайдеров связи

Предлагаем в долгосрочную аренду офис класса B+ общей площадью 224 кв.м в бизнес-центре "Бейкер Плаза"... подробнее

>

Виртуальный тур

Презентация по предложению

Собираете информацию? Получите подробную презентацию в удобном формате!

Посмотреть все похожие предложения
Отнеситесь рационально к процессу поиска нового офиса!

Просто ответьте на 3 вопроса, и наши специалисты сами предложат оптимальные варианты под ваш бюджет

.