8.2

Виртуальный тур

Смотреть все фото
БЕЗ КОМИССИИ ID: 1179118 Рейтинг7.6 КлассB
Бизнес-центр «Флакон»

Аренда офиса 800 м²

Москва, Большая Новодмитровская улица, 36 с4

Дмитровская → 640 м
~ 6 мин
Арендная плата в месяц 2 520 000 ₽ 37 800 ₽/м² в год С учётом НДС

Презентация по предложению

Собираете информацию? Получите подробную презентацию в удобном формате!

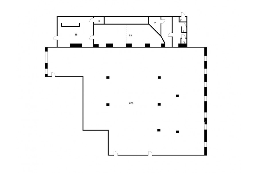
Площадь 800 м²
Состояние Готово к въезду
Планировка Смешанная
Этаж 2

Описание

Преимущества
  • Класс B
  • Пешком от метро
  • Кондиционирование и вентиляция
  • Свой паркинг
  • Развитая инфраструктура
Собственник сдает в долгосрочную аренду офисное помещение класса B общей площадью 800 квадратных метров в бизнес-центре "Флакон".

Москва, СВАО, Большая Новодмитровская улица, 36/4

Удобная локация здания:
- Автомобиль: близость транспортных магистралей, таких как Бутырская улица, Дмитровское шоссе, Третье Транспортное Кольцо и других.
- Возможность аренды парковочных мест.
- Ближайшее метро: от метро "Дмитровская" всего 8 мин пешком

Офис класса B:
- Офис с отделкой, полностью готов к аренде
- Вентиляция: Приточно-вытяжная вентиляция
- Кондиционирование: сплит-системы
- Круглосуточная охрана и видеонаблюдение
- Развитая инфраструктура внутри здания

Возможность заключения контракта в соответствии с 44ФЗ по госзакупкам.

Если данное предложение подходит Вашему запросу:

1. Мы подготовили презентацию с информацией о помещении, фотографиями и планировкой, чтобы Вы могли поделиться ей с коллегами или руководством. Попросите об этом нашего менеджера по телефону в объявлении.
2. Ответим на любые Ваши вопросы, готовы обсуждать любые предложения по коммерческим условиям аренды помещения.
3.

Звоните нам в любое время. По будням мы сможем ответить на Ваши вопросы до 19:00. В выходные или вечернее время мы передадим Ваш контакт нашему менеджеру по аренде.

Коммерческие условия

Арендная плата 1 866 670 ₽
Ставка арендной платы 37 800 ₽ м²/год
Эксплуатационные расходы Включены в ставку
Налоги С учётом НДС
Тип договора Прямая аренда
Срок договора от 11 месяцев
Размер платежей 1 месяц
Обеспечительный платеж 1 месяц
Статус Сдан

О бизнес-центре

Класс B
Этажность 5
Лифты Нет
Общая площадь 21 000 м²
Год постройки 1970
Паркинг Наземный
Вентиляция приточно-вытяжная
Кондиционирование сплит-системы
Телекоммуникации Интернет/Телефония

Расположение

Подробная презентацию по предложению

Собираете информацию? Получите подробную презентацию в удобном формате, чтобы обсудить вариант с коллегами или переслать руководству!

Похожие предложения в других зданиях

БЕЗ КОМИССИИ ID: 1327834 Рейтинг8.6 КлассB+

Москва, Новодмитровская улица, 2Б

Дмитровская → 805 м
~ 8 мин
Арендная плата в месяц 2 242 000 ₽ 38 000 ₽/м² в год С учётом НДС
Характеристики 708 м² 6 этаж Готово к въезду
Преимущества
  • Класс B+
  • Пешком от метро
  • Кондиционирование и вентиляция
  • Свой паркинг

Предлагается в долгосрочную прямую аренду офисный блок класса B+ площадью 708 кв. метров в бизнес-центре "Дмитровский"... подробнее

>

Виртуальный тур

Презентация по предложению

Собираете информацию? Получите подробную презентацию в удобном формате!

БЕЗ КОМИССИИ ID: 1319154 Рейтинг8.6 КлассB+

Москва, Новодмитровская улица, 2Б

Дмитровская → 805 м
~ 8 мин
Арендная плата в месяц 2 216 667 ₽ 38 000 ₽/м² в год С учётом НДС
Характеристики 700 м² 6 этаж Готово к въезду
Преимущества
  • Класс B+
  • Пешком от метро
  • Кондиционирование и вентиляция
  • Свой паркинг

Предлагается в прямую аренду офисное помещение класса B+ общей площадью 700 кв. метров в бизнес-центре "Дмитровский"... подробнее

>

Виртуальный тур

Презентация по предложению

Собираете информацию? Получите подробную презентацию в удобном формате!

БЕЗ КОМИССИИ ID: 1330169 Рейтинг8.7 КлассА

Москва, Бутырская улица, 77

Дмитровская → 464 м
~ 5 мин
Арендная плата в месяц 2 012 500 ₽ 35 000 ₽/м² в год С учётом НДС
Характеристики 690 м² 6 этаж Готово к въезду
Преимущества
  • Класс А
  • Пешком от метро
  • Кондиционирование и вентиляция
  • Свой паркинг
  • Развитая инфраструктура

Предлагаем в прямую аренду офисное помещение класса А площадью 690 квадр. метров в бизнес-центре "Диагональ Хаус"... подробнее

>

Виртуальный тур

Презентация по предложению

Собираете информацию? Получите подробную презентацию в удобном формате!

БЕЗ КОМИССИИ ID: 1375273 Рейтинг8.2 КлассB+

Москва, Новодмитровская улица, 2 к1

Дмитровская → 864 м
~ 9 мин
Арендная плата в месяц 2 836 525 ₽ 40 000 ₽/м² в год С учётом НДС
Характеристики 851 м² 9 - 13 этаж Готово к въезду
Преимущества
  • Класс B+
  • Пешком от метро
  • Кондиционирование и вентиляция
  • Развитая инфраструктура

Сдается в долгосрочную аренду офисный блок класса B+ площадью 851 кв.м в бизнес-центре "Савеловский Сити"... подробнее

Презентация по предложению

Собираете информацию? Получите подробную презентацию в удобном формате!

БЕЗ КОМИССИИ ID: 892377 Рейтинг7.6 КлассB

Москва, Вятская улица, 35 с4

Савеловская → 817 м
~ 8 мин
Арендная плата в месяц 2 310 000 ₽ 39 600 ₽/м² в год С учётом НДС
Характеристики 700 м² 2 этаж Готово к въезду
Преимущества
  • Класс B
  • Пешком от метро
  • Кондиционирование и вентиляция
  • Свой паркинг
  • Развитая инфраструктура

Сдается в прямую аренду офисное помещение класса B площадью 700 квадр. метров в бизнес-центре "Вятка"... подробнее

Презентация по предложению

Собираете информацию? Получите подробную презентацию в удобном формате!

Посмотреть все похожие предложения
Отнеситесь рационально к процессу поиска нового офиса!

Просто ответьте на 3 вопроса, и наши специалисты сами предложат оптимальные варианты под ваш бюджет

.