8.2
Смотреть все фото
БЕЗ КОМИССИИ ID: 253614 Рейтинг7.5 КлассB
Бизнес-центр «Гамма»

Аренда офиса 1373 м²

Москва, Гамсоновский переулок, 5

Тульская → 558 м
~ 6 мин
Арендная плата в месяц 2 860 400 ₽ 25 000 ₽/м² в год С учётом НДС

Презентация по предложению

Собираете информацию? Получите подробную презентацию в удобном формате!

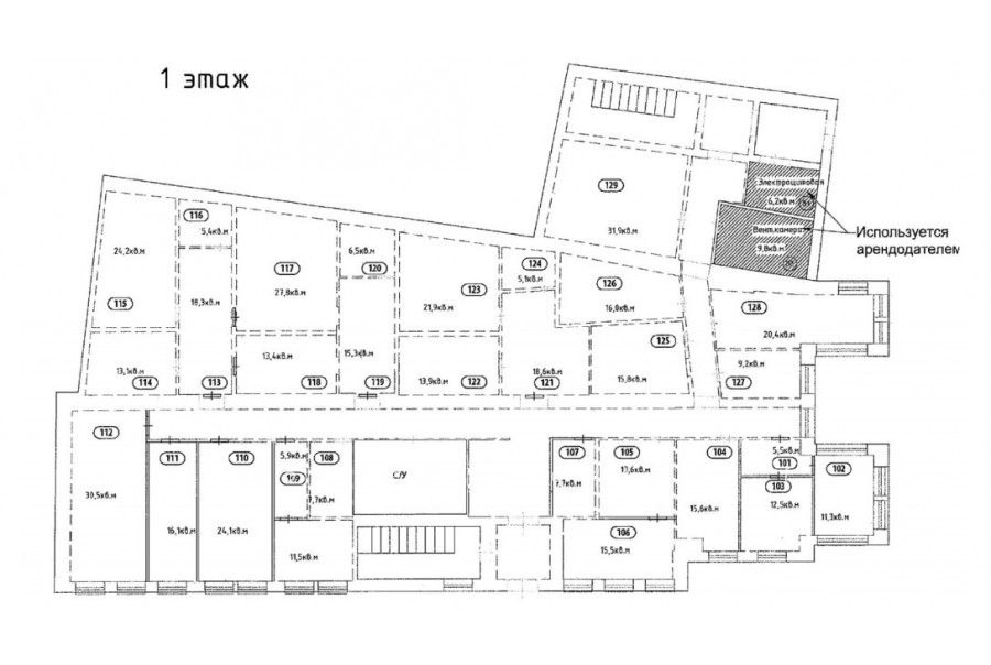
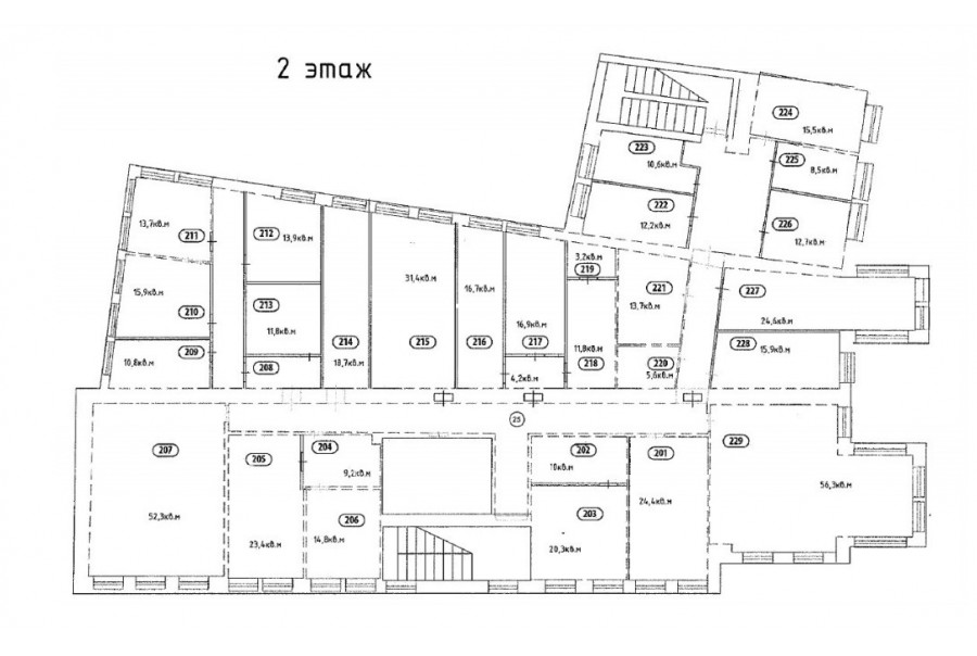
Площадь 1 373 м²
Состояние Готово к въезду
Планировка Смешанная
Этаж 1 - 2

Описание

Преимущества
  • Класс B
  • Пешком от метро
  • Кондиционирование и вентиляция
  • Свой паркинг
  • Несколько провайдеров связи
Предлагается в долгосрочную прямую аренду помещение под офис класса B площадью 1373 кв. метров в бизнес-центре "Гамма".

Москва, ЮАО, Гамсоновский переулок, 5

Удобное расположение здания для всех видов транспорта:
- Автомобиль: близость транспортных магистралей, таких как Севастопольский проспект, Третье Транспортное Кольцо, Варшавское шоссе и других.
- Возможность аренды парковочных мест.
- Ближайшее метро: от метро "Тульская" всего 5 мин пешком

Офис класса B:
- Офис с отделкой, полностью готов к аренде
- Вентиляция: Приточно-вытяжная вентиляция
- Кондиционирование: центральное

Возможность заключения контракта в соответствии с 44ФЗ по госзакупкам.

Если предложение предварительно Вам подходит:

1. Мы подготовили презентацию с информацией о помещении, фотографиями и планировкой, чтобы Вы могли поделиться ей с коллегами или руководством. Попросите об этом нашего менеджера по телефону в объявлении.
2. Ответим на любые Ваши вопросы, готовы обсуждать любые предложения по коммерческим условиям аренды помещения.
3. Проводим показы ежедневно, договоримся на удобное для Вас время. Можем организовать виртуальный тур по офисному блоку.

Вы можете позвонить нам в любое время. Мы ответим на Ваши вопросы по будням до 19:00, а поздно вечером или в выходные зафиксируем Ваш контакт и перезвоним в рабочее время.

Коммерческие условия

Арендная плата 2 860 420 ₽
Ставка арендной платы 25 000 ₽ м²/год
Эксплуатационные расходы Включены в ставку
Налоги С учётом НДС
Тип договора Прямая аренда
Срок договора от 11 месяцев
Размер платежей 2 месяц
Обеспечительный платеж 1 месяц
Статус Сдан

О бизнес-центре

Класс B
Этажность 12
Лифты Есть
Общая площадь 10 800 м²
Год постройки 2006
Паркинг Наземный
Вентиляция приточно-вытяжная
Кондиционирование центральное
Телекоммуникации Интернет/Телефония

Расположение

Подробная презентацию по предложению

Собираете информацию? Получите подробную презентацию в удобном формате, чтобы обсудить вариант с коллегами или переслать руководству!

Похожие предложения в других зданиях

БЕЗ КОМИССИИ ID: 279096 Рейтинг5.9 КлассB+

Москва, Большая Тульская улица, 10 с1

Тульская → 747 м
~ 7 мин
Арендная плата в месяц 2 420 000 ₽ 22 000 ₽/м² в год С учётом НДС
Характеристики 1 320 м² 1 - 3 этаж Готово к въезду
Преимущества
  • Класс B+
  • Пешком от метро
  • Кондиционирование и вентиляция
  • Свой паркинг
  • Несколько провайдеров связи

Сдается в долгосрочную прямую аренду офис класса B+ общей площадью 1320 квадр. метров в бизнес-центре "Серпуховский двор"... подробнее

Презентация по предложению

Собираете информацию? Получите подробную презентацию в удобном формате!

БЕЗ КОМИССИИ ID: 1309338 Рейтинг6.8 КлассB

Москва, Городская улица, 8

Тульская → 844 м
~ 8 мин
Арендная плата в месяц 3 307 500 ₽ 26 500 ₽/м² в год Упрощённая система налогообложения
Характеристики 1 500 м² 1 - 2 этаж Готово к въезду
Преимущества
  • Класс B
  • Пешком от метро
  • Кондиционирование и вентиляция
  • Свой паркинг

Сдается в долгосрочную прямую аренду офис класса B общей площадью 1500 кв. метров в бизнес-центре... подробнее

Презентация по предложению

Собираете информацию? Получите подробную презентацию в удобном формате!

БЕЗ КОМИССИИ ID: 241049 Рейтинг8.6 КлассА

Москва, 3-й Павловский переулок, 2

Серпуховская → 996 м
~ 10 мин
Арендная плата в месяц 3 318 750 ₽ 27 000 ₽/м² в год С учётом НДС
Характеристики 1 475 м² 4 - 5 этаж Готово к въезду
Преимущества
  • Класс А
  • Пешком от метро
  • Кондиционирование и вентиляция
  • Свой паркинг

Предлагаем в долгосрочную аренду офис класса А общей площадью 1475 квадратных метров в бизнес-центре "Ина"... подробнее

Презентация по предложению

Собираете информацию? Получите подробную презентацию в удобном формате!

БЕЗ КОМИССИИ ID: 1375604 Рейтинг6.9 КлассB+

Москва, Загородное шоссе, 1 к1

Тульская → 1.3 км
~ 13 мин
Арендная плата в месяц 3 120 000 ₽ 24 000 ₽/м² в год С учётом НДС
Характеристики 1 560 м² 8 - 10 этаж Готово к въезду
Преимущества
  • Класс B+
  • Пешком от метро
  • Кондиционирование и вентиляция
  • Свой паркинг
  • Несколько провайдеров связи

Предлагаем в прямую аренду помещение под офис класса B+ площадью 1560 квадратных метров в бизнес-центре "Загородный"... подробнее

Презентация по предложению

Собираете информацию? Получите подробную презентацию в удобном формате!

БЕЗ КОМИССИИ ID: 1044632 Рейтинг6.9 КлассB+

Москва, Загородное шоссе, 1 к1

Тульская → 1.3 км
~ 13 мин
Арендная плата в месяц 2 864 850 ₽ 26 900 ₽/м² в год С учётом НДС
Характеристики 1 278 м² 3 - 5 этаж Под отделку
Преимущества
  • Класс B+
  • Пешком от метро
  • Кондиционирование и вентиляция
  • Свой паркинг
  • Несколько провайдеров связи

Сдается в долгосрочную аренду офис класса B+ площадью 1278 кв.м в бизнес-центре "Загородный"... подробнее

Презентация по предложению

Собираете информацию? Получите подробную презентацию в удобном формате!

Посмотреть все похожие предложения
Отнеситесь рационально к процессу поиска нового офиса!

Просто ответьте на 3 вопроса, и наши специалисты сами предложат оптимальные варианты под ваш бюджет

.