8.2

Виртуальный тур

Смотреть все фото
БЕЗ КОМИССИИ ID: 1268780 Рейтинг8.9 КлассА
Бизнес-центр «Газетный 17 с2»

Аренда офиса 289 м²

Москва, Газетный переулок, 17 с2

Охотный Ряд → 398 м
~ 4 мин
Арендная плата в месяц 1 643 700 ₽ 68 200 ₽/м² в год С учётом НДС

Презентация по предложению

Собираете информацию? Получите подробную презентацию в удобном формате!

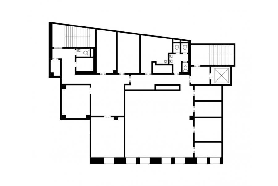
Площадь 289 м²
Состояние Готово к въезду
Планировка Кабинетная
Этаж 3

Описание

Преимущества
  • Класс А
  • Пешком от метро
  • Кондиционирование и вентиляция
  • Свой паркинг
  • Несколько провайдеров связи
Предлагается в прямую аренду помещение под офис класса А общей площадью 289 кв. метров в бизнес-центре.

Москва, ЦАО, Газетный переулок, 17 с2

Удобное расположение в пределах Садового кольца:
- Возможность аренды парковочных мест.
- Ближайшее метро: от метро "Охотный Ряд" всего 4 мин пешком

Офис класса А:
- Помещение готово к въезду
- Вентиляция: Приточно-вытяжная вентиляция
- Кондиционирование: центральное

Возможность заключения контракта в соответствии с 44ФЗ по госзакупкам.

Что еще можно узнать о предложении:

1. Получите презентацию в течение 10 минут в Whatsapp или на почту с фотографиями и планировкой, чтобы обсудить данный вариант с коллегами или переслать руководству. Для этого позвоните по телефону, указанному в объявлении.
2. Ответим на любые Ваши вопросы, готовы обсуждать любые предложения по коммерческим условиям аренды помещения.
3.

Звоните нам в любое время. По будням мы сможем ответить на Ваши вопросы до 19:00. В выходные или вечернее время мы передадим Ваш контакт нашему менеджеру по аренде.

Коммерческие условия

Арендная плата 1 565 420 ₽
Ставка арендной платы 68 200 ₽ м²/год
Эксплуатационные расходы Включены в ставку
Налоги С учётом НДС
Тип договора Прямая аренда
Срок договора Долгосрочный
Размер платежей 1 месяц
Обеспечительный платеж 2 месяц
Статус Сдан

О бизнес-центре

Класс А
Этажность 7
Лифты Есть
Общая площадь 2 106 м²
Год постройки 1998
Паркинг Наземный
Вентиляция приточно-вытяжная
Кондиционирование центральное
Телекоммуникации Интернет/Телефония

Расположение

Подробная презентацию по предложению

Собираете информацию? Получите подробную презентацию в удобном формате, чтобы обсудить вариант с коллегами или переслать руководству!

Похожие предложения в других зданиях

БЕЗ КОМИССИИ ID: 272925 Рейтинг9.0 КлассB+

Москва, улица Большая Дмитровка, 10/2 с4

Охотный Ряд → 349 м
~ 3 мин
Арендная плата в месяц 1 489 950 ₽ 69 300 ₽/м² в год С учётом НДС
Характеристики 258 м² -1 - 1 этаж Готово к въезду
Преимущества
  • Класс B+
  • Пешком от метро
  • Кондиционирование и вентиляция
  • Свой паркинг

Предлагается в долгосрочную аренду офисный блок класса B+ площадью 258 кв.м в бизнес-центре... подробнее

Презентация по предложению

Собираете информацию? Получите подробную презентацию в удобном формате!

ВОЗМОЖНО ОСВОБОЖДЕНИЕ ID: 277896 Рейтинг9.1 КлассА

Москва, Леонтьевский переулок, 25

Тверская → 396 м
~ 5 мин
Арендная плата в месяц 1 629 375 ₽ 71 100 ₽/м² в год С учётом НДС
Характеристики 275 м² 1 - 2 этаж Готово к въезду
Преимущества
  • Класс А
  • Пешком от метро
  • Кондиционирование и вентиляция
  • Свой паркинг
  • Несколько провайдеров связи

Предлагаем в прямую аренду офисное помещение класса А общей площадью 275 квадратных метров в недавно отреконструированном бизнес-центре... подробнее

Презентация по предложению

Собираете информацию? Получите подробную презентацию в удобном формате!

БЕЗ КОМИССИИ ID: 298016 Рейтинг8.6 КлассА

Москва, Большой Гнездниковский переулок, 1 с2

Тверская → 417 м
~ 6 мин
Арендная плата в месяц 1 445 167 ₽ 58 000 ₽/м² в год С учётом НДС
Характеристики 299 м² 1 этаж Готово к въезду
Преимущества
  • Класс А
  • Пешком от метро
  • Кондиционирование и вентиляция
  • Свой паркинг
  • Развитая инфраструктура

Предлагается в долгосрочную аренду офисный блок класса А общей площадью 299 квадр. метров в недавно отреконструированном бизнес-центре "Вознесенский"... подробнее

>

Виртуальный тур

Презентация по предложению

Собираете информацию? Получите подробную презентацию в удобном формате!

БЕЗ КОМИССИИ ID: 1378829 Рейтинг9.5 КлассА

Москва, Романов переулок, 4

Александровский сад → 392 м
~ 5 мин
Арендная плата в месяц 2 745 000 ₽ 109 800 ₽/м² в год С учётом НДС
Характеристики 300 м² 1 этаж Под отделку
Преимущества
  • Класс А
  • Пешком от метро
  • Кондиционирование и вентиляция
  • Свой паркинг
  • Развитая инфраструктура

Сдается в долгосрочную прямую аренду офисный блок класса А площадью 300 квадр. метров в бизнес-центре "Романов двор"... подробнее

Презентация по предложению

Собираете информацию? Получите подробную презентацию в удобном формате!

БЕЗ КОМИССИИ ID: 1286246 Рейтинг8.8 КлассB

Москва, Тверской бульвар, 14 с5

Пушкинская → 826 м
~ 8 мин
Арендная плата в месяц 1 594 336 ₽ 73 000 ₽/м² в год С учётом НДС
Характеристики 262 м² 2 - 4 этаж Готово к въезду
Преимущества
  • Класс B
  • Пешком от метро
  • Кондиционирование и вентиляция
  • Свой паркинг

Сдаем в прямую аренду офисный блок класса B площадью 262 кв.м в историческом бизнес-центре... подробнее

Презентация по предложению

Собираете информацию? Получите подробную презентацию в удобном формате!

Посмотреть все похожие предложения
Отнеситесь рационально к процессу поиска нового офиса!

Просто ответьте на 3 вопроса, и наши специалисты сами предложат оптимальные варианты под ваш бюджет

.