8.2
Смотреть все фото
БЕЗ КОМИССИИ ID: 1380031 Рейтинг8.4 КлассА
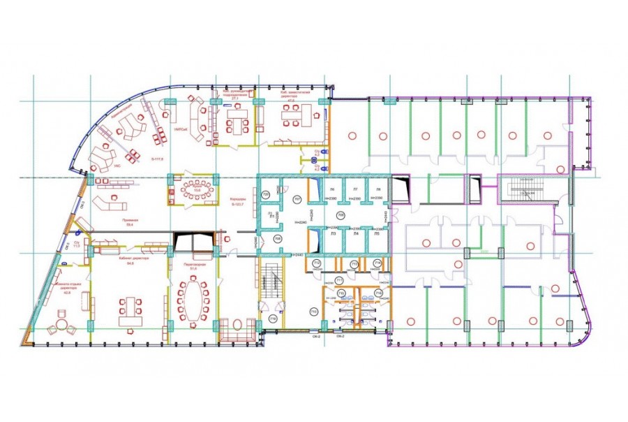
Бизнес-центр «Газойл Плаза»

Аренда офиса 2659 м²

Москва, улица Намёткина, 12А

Новые Черемушки → 1.15 км
~ 12 мин
Арендная плата в месяц 8 464 500 ₽ 38 200 ₽/м² в год С учётом НДС

Презентация по предложению

Собираете информацию? Получите подробную презентацию в удобном формате!

Площадь 2 659 м²
Состояние Готово к въезду
Планировка Смешанная
Этаж 20

Описание

Преимущества
  • Класс А
  • Пешком от метро
  • Кондиционирование и вентиляция
  • Свой паркинг
  • Развитая инфраструктура
Предлагается в долгосрочную прямую аренду офисный блок класса А площадью 2659 квадр. метров в бизнес-центре "Газойл Плаза".

Москва, ЮЗАО, улица Намёткина, 12А

Удобная локация здания:
- Автомобиль: близость транспортных магистралей, таких как Профсоюзная улица, Севастопольский проспект и других.
- Возможность аренды парковочных мест.
- Ближайшее метро: от метро "Калужская" всего 12 мин пешком

Офис класса А:
- Помещение с отделкой, готово к въезду
- Вентиляция: Приточно-вытяжная вентиляция
- Кондиционирование: центральное
- Презентабельный центральный ресепшн
- Круглосуточная охрана и видеонаблюдение
- Развитая инфраструктура внутри здания

Возможность заключения контракта в соответствии с 44ФЗ по госзакупкам.

Если данное предложение подходит Вашему запросу:

1. Мы отправим Вам подробную презентацию с планировкой и фотографиями в течение 10 минут после звонка, чтобы Вы могли поделиться информацией с руководством или с коллегами.
2. Задайте любые вопросы менеджеру по телефону, готовы обсуждать любые предложения по финансовым условиям договора аренды.
3. Покажем помещение в удобное для Вас время с менеджером в здании, при необходимости подготовим виртуальный тур.

Вы можете позвонить нам в любое время. Мы ответим на Ваши вопросы по будням до 19:00, а поздно вечером или в выходные зафиксируем Ваш контакт и перезвоним в рабочее время.

Коммерческие условия

Арендная плата 8 464 480 ₽
Ставка арендной платы 35 000 ₽ м²/год
Эксплуатационные расходы 3 200 ₽
Налоги С учётом НДС
Тип договора Прямая аренда
Срок договора от 11 месяцев
Размер платежей 1 месяц
Обеспечительный платеж 2 месяц
Статус Сдан

О бизнес-центре

Класс А
Этажность 25
Лифты Есть
Общая площадь 36 400 м²
Год постройки 2007
Паркинг Подземный
Вентиляция приточно-вытяжная
Кондиционирование центральное
Телекоммуникации Интернет/Телефония

Расположение

Подробная презентацию по предложению

Собираете информацию? Получите подробную презентацию в удобном формате, чтобы обсудить вариант с коллегами или переслать руководству!

Похожие предложения в других зданиях

ВОЗМОЖНО ОСВОБОЖДЕНИЕ ID: 278417 Рейтинг8.5 КлассА

Москва, Херсонская улица, 43 к3

Зюзино → 1.4 км
~ 14 мин
Арендная плата в месяц 7 000 000 ₽ 35 000 ₽/м² в год С учётом НДС
Характеристики 2 400 м² 4 этаж Готово к въезду
Преимущества
  • Класс А
  • Пешком от метро
  • Кондиционирование и вентиляция
  • Свой паркинг

Предлагаем в долгосрочную прямую аренду офисное помещение класса А общей площадью 2400 квадратных метров в бизнес-центре "Газойл Сити"... подробнее

Презентация по предложению

Собираете информацию? Получите подробную презентацию в удобном формате!

БЕЗ КОМИССИИ ID: 267412 Рейтинг8.2 КлассB+

Москва, Научный проезд, 17

Калужская → 1.34 км
~ 13 мин
Арендная плата в месяц 7 370 833 ₽ 30 500 ₽/м² в год С учётом НДС
Характеристики 2 900 м² 7 этаж Готово к въезду
Преимущества
  • Класс B+
  • Пешком от метро
  • Кондиционирование и вентиляция
  • Свой паркинг

Собственник сдает в долгосрочную прямую аренду офисное помещение класса B+ общей площадью 2900 квадр. метров в новом бизнес-центре "9 Акров | Фаза II"... подробнее

Презентация по предложению

Собираете информацию? Получите подробную презентацию в удобном формате!

БЕЗ КОМИССИИ ID: 1314839 Рейтинг9.1 КлассB+

Москва, Профсоюзная улица, 65 к1

Калужская → 309 м
~ 3 мин
Арендная плата в месяц 7 050 290 ₽ 33 700 ₽/м² в год С учётом НДС
Характеристики 2 509 м² 9 - 15 этаж Готово к въезду
Преимущества
  • Класс B+
  • Пешком от метро
  • Кондиционирование и вентиляция
  • Свой паркинг
  • Несколько провайдеров связи
  • Развитая инфраструктура

Сдается в долгосрочную прямую аренду помещение под офис класса B+ общей площадью 2509 квадратных метров в бизнес-центре "Лотте"... подробнее

Презентация по предложению

Собираете информацию? Получите подробную презентацию в удобном формате!

БЕЗ КОМИССИИ ID: 14767 Рейтинг8.5 КлассB+

Москва, улица Обручева, 23 к3

Калужская → 766 м
~ 8 мин
Арендная плата в месяц 8 400 000 ₽ 33 600 ₽/м² в год С учётом НДС
Характеристики 3 000 м² 2 этаж Готово к въезду
Преимущества
  • Класс B+
  • Пешком от метро
  • Кондиционирование и вентиляция
  • Свой паркинг
  • Несколько провайдеров связи
  • Развитая инфраструктура

Предлагаем в долгосрочную прямую аренду офис класса B+ площадью 3000 квадратных метров в бизнес-центре "Газфилд"... подробнее

Презентация по предложению

Собираете информацию? Получите подробную презентацию в удобном формате!

БЕЗ КОМИССИИ ID: 222963 Рейтинг8.5 КлассB+

Москва, улица Обручева, 23 к3

Калужская → 766 м
~ 8 мин
Арендная плата в месяц 6 941 200 ₽ 33 600 ₽/м² в год С учётом НДС
Характеристики 2 479 м² 10 - 14 этаж Готово к въезду
Преимущества
  • Класс B+
  • Пешком от метро
  • Кондиционирование и вентиляция
  • Свой паркинг
  • Несколько провайдеров связи
  • Развитая инфраструктура

Предлагается в прямую аренду офисное помещение класса B+ площадью 2479 кв.м в бизнес-центре "Газфилд"... подробнее

Презентация по предложению

Собираете информацию? Получите подробную презентацию в удобном формате!

Посмотреть все похожие предложения
Отнеситесь рационально к процессу поиска нового офиса!

Просто ответьте на 3 вопроса, и наши специалисты сами предложат оптимальные варианты под ваш бюджет

.