8.2
Смотреть все фото
БЕЗ КОМИССИИ ID: 1376636 Рейтинг9.3 КлассА
Бизнес-центр «Geolog 2»

Продажа офиса 194 м²

Москва, улица Обручева, 23

Калужская → 773 м
~ 8 мин
Стоимость 81.29 млн ₽ 419 000 ₽/м²

Презентация по предложению

Собираете информацию? Получите подробную презентацию в удобном формате!

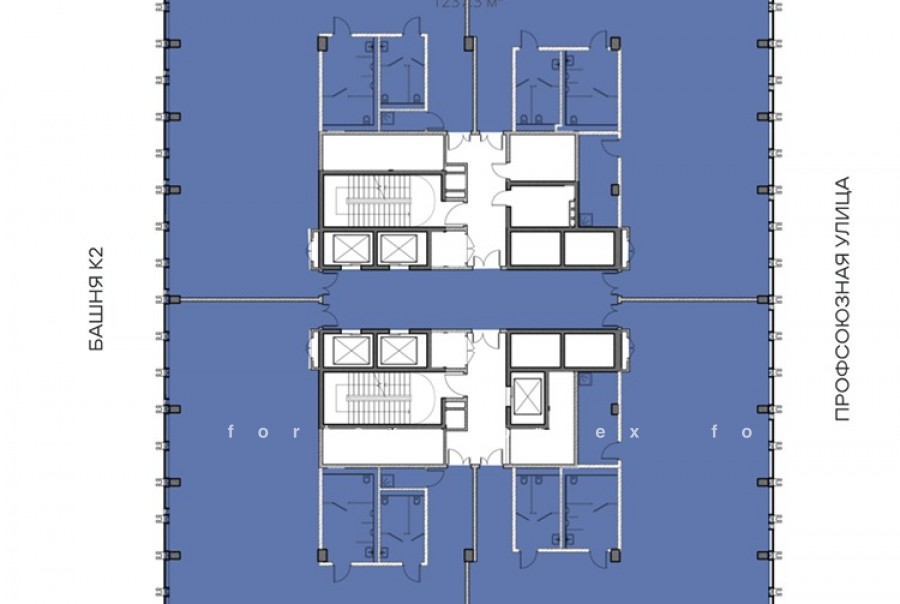
Площадь 194 м²
Состояние Под отделку
Планировка Смешанная
Этаж 11

Описание

Преимущества
  • Класс А
  • Пешком от метро
  • Новое строительство
  • Кондиционирование и вентиляция
  • Свой паркинг
В продаже офисное помещение площадью 194 кв.м в бизнес-центре "Geolog 2".

Помещение можно адаптировать под любой бизнес благодаря функциональной планировке - идеальный баланс комфорта и экономической выгоды. Оптимальное решение для стабильного бизнеса или выгодных инвестиций.

Офис класса А:
- Офис в состоянии shell & core
- Вентиляция: Приточно-вытяжная вентиляция
- Кондиционирование: сплит-системы

О офисном центре:
Москва, ЮЗАО, улица Обручева, 23

Удобная локация здания:
- Автомобиль: близость транспортных магистралей, таких как Профсоюзная улица, Ленинский проспект и других.
- Возможность аренды парковочных мест.
- Ближайшее метро: от метро "Калужская" всего 8 мин пешком



Если предложение предварительно Вам подходит:

1. Мы отправим Вам подробную презентацию с планировкой и фотографиями в течение 10 минут после звонка, чтобы Вы могли поделиться информацией с руководством или с коллегами.
2. Задайте любые вопросы менеджеру по телефону, готовы обсуждать любые предложения по финансовым условиям договора продажи.

Вы можете позвонить нам в любое время. Мы ответим на Ваши вопросы по будням до 19:00, а поздно вечером или в выходные сможем передать Ваш контакт нашему менеджеру.

О бизнес-центре

Класс А
Этажность 18
Лифты Есть
Общая площадь 27 117 м²
Год постройки 2026
Паркинг Подземный
Вентиляция приточно-вытяжная
Кондиционирование сплит-системы
Телекоммуникации Интернет/Телефония

Расположение

Подробная презентацию по предложению

Собираете информацию? Получите подробную презентацию в удобном формате, чтобы обсудить вариант с коллегами или переслать руководству!

Похожие предложения в других зданиях

БЕЗ КОМИССИИ ID: 1375533 Рейтинг9.0 КлассА

Москва, Старокалужское шоссе, 64

Воронцовская → 509 м
~ 5 мин
Стоимость 497 274 000 ₽ 402 000 ₽/м²
Характеристики 1 237 м² 13 этаж Под отделку
Преимущества
  • Класс А
  • Пешком от метро
  • Новое строительство
  • Кондиционирование и вентиляция
  • Свой паркинг

Продается офисное помещение площадью 1237 квадратных метров в строящемся бизнес-центре "STONE Калужская". Год ввода в экслуатацию 2028. .. подробнее

Презентация по предложению

Собираете информацию? Получите подробную презентацию в удобном формате!

БЕЗ КОМИССИИ ID: 1311581 Рейтинг9.0 КлассА

Москва, Старокалужское шоссе, 64

Воронцовская → 509 м
~ 5 мин
Стоимость 399 942 000 ₽ 306 000 ₽/м²
Характеристики 1 307 м² 10 этаж Под отделку
Преимущества
  • Класс А
  • Пешком от метро
  • Новое строительство
  • Кондиционирование и вентиляция
  • Свой паркинг

В продаже офис общей площадью 1307 кв. метров в строящемся бизнес-центре "STONE Калужская". Год ввода в экслуатацию 2028. .. подробнее

Презентация по предложению

Собираете информацию? Получите подробную презентацию в удобном формате!

БЕЗ КОМИССИИ ID: 1311578 Рейтинг9.0 КлассА

Москва, Старокалужское шоссе, 64

Воронцовская → 509 м
~ 5 мин
Стоимость 397 328 000 ₽ 304 000 ₽/м²
Характеристики 1 307 м² 9 этаж Под отделку
Преимущества
  • Класс А
  • Пешком от метро
  • Новое строительство
  • Кондиционирование и вентиляция
  • Свой паркинг

В продаже офис общей площадью 1307 кв.м в строящемся бизнес-центре "STONE Калужская". Год ввода в экслуатацию 2028. .. подробнее

Презентация по предложению

Собираете информацию? Получите подробную презентацию в удобном формате!

БЕЗ КОМИССИИ ID: 1311575 Рейтинг9.0 КлассА

Москва, Старокалужское шоссе, 64

Воронцовская → 509 м
~ 5 мин
Стоимость 394 714 000 ₽ 302 000 ₽/м²
Характеристики 1 307 м² 8 этаж Под отделку
Преимущества
  • Класс А
  • Пешком от метро
  • Новое строительство
  • Кондиционирование и вентиляция
  • Свой паркинг

Продается офисный блок площадью 1307 кв.м в строящемся бизнес-центре "STONE Калужская". Год ввода в экслуатацию 2028. .. подробнее

Презентация по предложению

Собираете информацию? Получите подробную презентацию в удобном формате!

БЕЗ КОМИССИИ ID: 1375529 Рейтинг9.0 КлассА

Москва, Старокалужское шоссе, 64

Воронцовская → 509 м
~ 5 мин
Стоимость 237 724 000 ₽ 412 000 ₽/м²
Характеристики 577 м² 7 этаж Под отделку
Преимущества
  • Класс А
  • Пешком от метро
  • Новое строительство
  • Кондиционирование и вентиляция
  • Свой паркинг

В продаже офисный блок общей площадью 577 кв.м в строящемся бизнес-центре "STONE Калужская". Год ввода в экслуатацию 2028. .. подробнее

Презентация по предложению

Собираете информацию? Получите подробную презентацию в удобном формате!

Посмотреть все похожие предложения
Отнеситесь рационально к процессу поиска нового офиса!

Просто ответьте на 3 вопроса, и наши специалисты сами предложат оптимальные варианты под ваш бюджет

.