8.2
Смотреть все фото
БЕЗ КОМИССИИ ID: 1376658 Рейтинг9.0 КлассА
Бизнес-центр «Geolog»

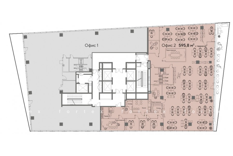
Аренда офиса 596 м²

Москва, улица Обручева, 23к2 с3

Калужская → 819 м
~ 8 мин
Арендная плата в месяц 1 948 900 ₽ 39 200 ₽/м² в год С учётом НДС

Презентация по предложению

Собираете информацию? Получите подробную презентацию в удобном формате!

Площадь 596 м²
Состояние Под отделку
Планировка Открытая
Этаж 10

Описание

Преимущества
  • Класс А
  • Пешком от метро
  • Кондиционирование и вентиляция
  • Свой паркинг
Предлагается в прямую аренду офисное помещение класса А площадью 596 кв. метров в бизнес-центре "Geolog".

Москва, ЮЗАО, улица Обручева, 23к2 с3

Удобная локация здания:
- Автомобиль: близость транспортных магистралей, таких как Ленинский проспект, Профсоюзная улица и других.
- Возможность аренды парковочных мест.
- Ближайшее метро: от метро "Калужская" всего 8 мин пешком

Офис класса А:
- Помещение без отделки
- Вентиляция: Приточно-вытяжная вентиляция
- Кондиционирование: центральное


Если предложение предварительно Вам подходит:

1. Мы отправим Вам подробную презентацию с планировкой и фотографиями в течение 10 минут после звонка, чтобы Вы могли поделиться информацией с руководством или с коллегами.
2. Ответим на любые Ваши вопросы, готовы обсуждать любые предложения по коммерческим условиям аренды помещения.
3. Проводим показы ежедневно, договоримся на удобное для Вас время. Можем организовать виртуальный тур по офисному блоку.

Вы можете позвонить нам в любое время. Мы ответим на Ваши вопросы по будням до 19:00, а поздно вечером или в выходные зафиксируем Ваш контакт и перезвоним в рабочее время.

Коммерческие условия

Арендная плата 1 948 920 ₽
Ставка арендной платы 32 600 ₽ м²/год
Эксплуатационные расходы 6 600 ₽
Налоги С учётом НДС
Тип договора Прямая аренда
Срок договора от 11 месяцев
Размер платежей 1 месяц
Обеспечительный платеж 1 месяц
Статус Свободен

О бизнес-центре

Класс А
Этажность 13
Лифты Есть
Общая площадь 17 072 м²
Паркинг Подземный
Вентиляция приточно-вытяжная
Кондиционирование центральное
Телекоммуникации Интернет/Телефония

Расположение

Подробная презентацию по предложению

Собираете информацию? Получите подробную презентацию в удобном формате, чтобы обсудить вариант с коллегами или переслать руководству!

Похожие предложения в других зданиях

БЕЗ КОМИССИИ ID: 1323412 Рейтинг9.0 КлассА

Москва, улица Обручева, 30/1 с1

Калужская → 799 м
~ 8 мин
Арендная плата в месяц 2 199 762 ₽ 47 000 ₽/м² в год С учётом НДС
Характеристики 562 м² 7 этаж Готово к въезду
Преимущества
  • Класс А
  • Пешком от метро
  • Кондиционирование и вентиляция
  • Свой паркинг
  • Несколько провайдеров связи
  • Развитая инфраструктура

Предлагаем в прямую аренду помещение под офис класса А общей площадью 562 квадр. метров в бизнес-центре "Кругозор"... подробнее

Презентация по предложению

Собираете информацию? Получите подробную презентацию в удобном формате!

БЕЗ КОМИССИИ ID: 1327097 Рейтинг9.1 КлассB+

Москва, Профсоюзная улица, 65 к1

Калужская → 309 м
~ 3 мин
Арендная плата в месяц 2 238 192 ₽ 42 700 ₽/м² в год С учётом НДС
Характеристики 629 м² 4 этаж Готово к въезду
Преимущества
  • Класс B+
  • Пешком от метро
  • Кондиционирование и вентиляция
  • Свой паркинг
  • Несколько провайдеров связи
  • Развитая инфраструктура

Предлагается в прямую аренду помещение под офис класса B+ общей площадью 629 квадратных метров в бизнес-центре "Лотте"... подробнее

Презентация по предложению

Собираете информацию? Получите подробную презентацию в удобном формате!

БЕЗ КОМИССИИ ID: 1377802 Рейтинг9.1 КлассB+

Москва, Профсоюзная улица, 65 к1

Калужская → 309 м
~ 3 мин
Арендная плата в месяц 2 217 960 ₽ 43 900 ₽/м² в год С учётом НДС
Характеристики 606 м² 2 этаж Готово к въезду
Преимущества
  • Класс B+
  • Пешком от метро
  • Кондиционирование и вентиляция
  • Свой паркинг
  • Несколько провайдеров связи
  • Развитая инфраструктура

Предлагаем в долгосрочную прямую аренду офисный блок класса B+ общей площадью 606 кв. метров в бизнес-центре "Лотте"... подробнее

Презентация по предложению

Собираете информацию? Получите подробную презентацию в удобном формате!

БЕЗ КОМИССИИ ID: 1377804 Рейтинг9.1 КлассB+

Москва, Профсоюзная улица, 65 к1

Калужская → 309 м
~ 3 мин
Арендная плата в месяц 2 002 020 ₽ 43 900 ₽/м² в год С учётом НДС
Характеристики 547 м² 2 этаж Готово к въезду
Преимущества
  • Класс B+
  • Пешком от метро
  • Кондиционирование и вентиляция
  • Свой паркинг
  • Несколько провайдеров связи
  • Развитая инфраструктура

Предлагается в долгосрочную прямую аренду офис класса B+ общей площадью 547 квадратных метров в бизнес-центре "Лотте"... подробнее

Презентация по предложению

Собираете информацию? Получите подробную презентацию в удобном формате!

БЕЗ КОМИССИИ ID: 1304579 Рейтинг9.0 КлассB+

Москва, улица Бутлерова, 17

Калужская → 840 м
~ 8 мин
Арендная плата в месяц 1 626 408 ₽ 33 200 ₽/м² в год С учётом НДС
Характеристики 588 м² 4 этаж Готово к въезду
Преимущества
  • Класс B+
  • Пешком от метро
  • Кондиционирование и вентиляция
  • Свой паркинг

Предлагаем в прямую аренду офис класса B+ площадью 588 квадр. метров в бизнес-центре "NEO GEO"... подробнее

>

Виртуальный тур

Презентация по предложению

Собираете информацию? Получите подробную презентацию в удобном формате!

Посмотреть все похожие предложения
Отнеситесь рационально к процессу поиска нового офиса!

Просто ответьте на 3 вопроса, и наши специалисты сами предложат оптимальные варианты под ваш бюджет

.